KN
Aylestone Lane, Wigston, Leicester
By Knightsbridge Estate Agents & Valuers
£ 315,000
Reviews
3 out of 5 stars
Knightsbridge Estate Agents & Valuers says ..
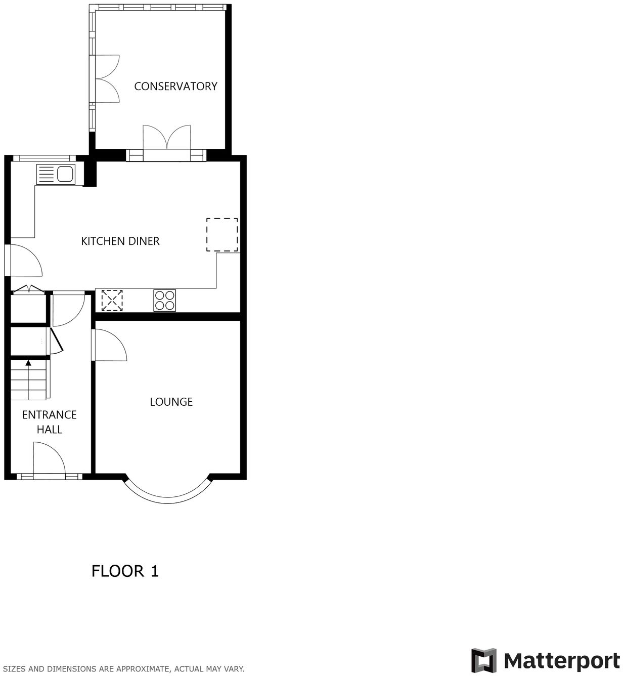
This THREE BEDROOM semi-detached property offers everything you and your family desire with a park/play area directly opposite. Featuring a MODERN FEEL throughout and a driveway to the front.
Property Oracle says ..
Therefore, we give this property 6 / 10. *Disclaimer: This is our option and does constitute a recommendation or financial advice. Do your own research. *
- Price
- 5
- Condition
- 8
- Location
- 7
- Land
- 7
- Bedrooms
- 3
- Bathrooms
- 1
- Sqft (est)
- 531.00
The heatmap indicates the level of crime in the area. The color of the heatmap indicates the crime severity and recency.
Metrics Year-on-Year
- Average area value
- 318,333.00 £Increased by 4.59 %
- Est sale value
- 174,168.00 £Increased by 15.09 %
- Average area rental value
- 1,200.00 £/moIncreased by 16.39 %
- Est letting value
- 531.00 £/mo
- Est rental Yield
- 4.52 %Increased by 11.33 %
- Crime Rate
- 5.00 %Unchanged by 0.00 %
from 304,375.00 £
from 151,335.00 £
from 1,031.00 £/mo
from 0.00 £/mo
from 4.06 %
from 5.00 %
Agent Activity
Knightsbridge Estate Agents & Valuers created the listing.
Nearby Schools
| Name | Type | Ofsted | Distance |
|---|---|---|---|
| All Saints Church Of England Primary School | Academy Converter | 0.56 KM | |
| Little Hill Primary | Academy Converter | 0.63 KM | |
| Wigston Magna Sure Start Children'S Centre | Children's Centre | 0.71 KM | |
| Wigston Academy | Academy Converter | Requires improvement | 0.71 KM |
| Wigston Menphys Nursery School | Local Authority Nursery School | Good | 0.72 KM |
Images
Nearby Streets
| Name | Average Price | Average Sqft | Distance |
|---|---|---|---|
| Central Avenue | £ 220,000 | 0 | 0.00 KM |
| Kings Drive | £ 0 | 0 | 0.00 KM |
| Aylestone Road | £ 0 | 0 | 0.00 KM |
| Kingswood Court | £ 98,000 | 0 | 0.00 KM |
| Rutland Avenue | £ 0 | 0 | 0.00 KM |
Nearby Transport
| Name | NLC | TLC | Distance |
|---|---|---|---|
| South Wigston | 1949 | SWS | 2.41 KM |
| Leicester | 1947 | LEI | 5.10 KM |
Nearby Listings
| Address | Price | Type | Score | Distance |
|---|---|---|---|---|
| Aylestone Lane, Wigston, Leicester | £ 315,000 | BUY | 6 / 10 | 0.00 KM |
| Willow Park Drive, Wigston | £ 300,000 | BUY | 7 / 10 | 0.07 KM |
| Willow Park Drive, Wigston, LE18 1EB | £ 320,000 | BUY | 7 / 10 | 0.09 KM |
| Breedon Avenue, Wigston | £ 280,000 | BUY | 7 / 10 | 0.11 KM |
| Aylestone Lane, Wigston | £ 350,000 | BUY | Unknown | 0.12 KM |
Nearby Properties
| Address | Price | Distance |
|---|---|---|
| 20 Willow Park Drive | £ 278,000 | 0.09 KM |
| 11 Willow Park Drive | £ 166,000 | 0.09 KM |
| 12 Willow Park Drive | £ 230,000 | 0.09 KM |
| 1 Willow Park Drive | £ 187,450 | 0.09 KM |
| 11a Willow Park Drive | £ 220,000 | 0.09 KM |