Braxton says ..
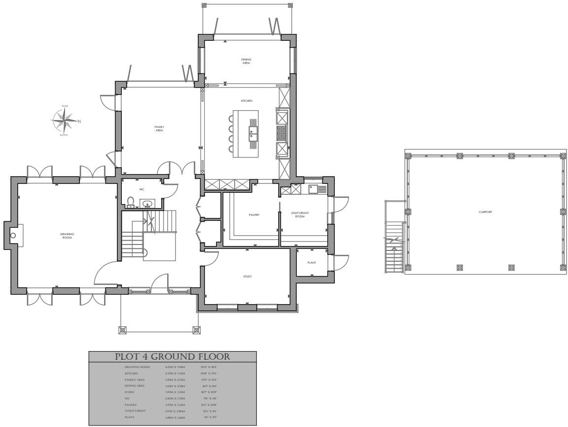
Launching Saturday 14 June 2025 - Shetland Barn is a stunning five-bedroom detached family house providing approx. 5,190 sq. ft of living space, featuring a generous kitchen/dining family room, a large walk-in pantry and separate utility/boot room. The property includes a double aspect drawing ro...
Property Oracle says ..
Therefore, we give this property 7 / 10. *Disclaimer: This is our option and does constitute a recommendation or financial advice. Do your own research. *
- Price
- 4
- Condition
- 9
- Location
- 8
- Land
- 8
- Bedrooms
- 5
- Bathrooms
- 5
- Sqft (est)
- 929.34
The heatmap indicates the level of crime in the area. The color of the heatmap indicates the crime severity and recency.
Metrics Year-on-Year
- Average area value
- 208,333.00 £Decreased by 17.92 %
- Est sale value
- 356,866.56 £Increased by 51.78 %
- Average area rental value
- 806.00 £/moDecreased by 15.34 %
- Est letting value
- 929.34 £/mo
- Est rental Yield
- 4.64 %Increased by 3.11 %
- Crime Rate
- 28.00 %Unchanged by 0.00 %
from 253,810.00 £
from 235,123.02 £
from 952.00 £/mo
from 0.00 £/mo
from 4.50 %
from 28.00 %
Agent Activity
Braxton created the listing.
Nearby Schools
| Name | Type | Ofsted | Distance |
|---|---|---|---|
| Beech Lodge School | Other Independent Special School | 0.99 KM | |
| Manor Green School | Community Special School | Good | 1.69 KM |
| Newlands Girls' School | Academy Converter | Outstanding | 2.07 KM |
| Cox Green School | Academy Converter | Good | 2.12 KM |
| Woodlands Park Village Children'S Centre | Children's Centre | 2.23 KM |
Images
Nearby Streets
| Name | Average Price | Average Sqft | Distance |
|---|---|---|---|
| The Shires | £ 0 | 0 | 0.00 KM |
| Grange Walk | £ 900,000 | 0 | 0.00 KM |
| The Frantons | £ 0 | 0 | 0.00 KM |
| Silver Close | £ 0 | 0 | 0.00 KM |
| Elizabeth Hawkes Way | £ 0 | 0 | 0.00 KM |
Nearby Transport
| Name | NLC | TLC | Distance |
|---|---|---|---|
| Furze Platt | 3144 | FZP | 5.53 KM |
| Maidenhead | 3147 | MAI | 5.80 KM |
| Marlow | 3021 | MLW | 6.35 KM |
| Cookham | 3019 | COO | 7.55 KM |
| Bourne End | 3018 | BNE | 9.96 KM |
Nearby Listings
| Address | Price | Type | Score | Distance |
|---|---|---|---|---|
| Cherry Garden Lane, Maidenhead | £ 3,375,000 | BUY | 8 / 10 | 0.00 KM |
| Cherry Garden Lane, Maidenhead | £ 4,750,000 | BUY | Unknown | 0.00 KM |
| Cherry Garden Lane, Maidenhead | £ 3,650,000 | BUY | 7 / 10 | 0.00 KM |
| Mawson Avenue, Littlewick Green, Maidenhead, Berkshire, SL6 | £ 1,150,000 | BUY | Unknown | 0.30 KM |
| Littlewick Green, Maidenhead | £ 5,750,000 | BUY | 7 / 10 | 0.30 KM |
Nearby Properties
| Address | Price | Distance |
|---|---|---|
| Lavender Cottage | £ 534,950 | 0.09 KM |
| Deep Well Cottage | £ 467,500 | 0.09 KM |
| Heathside Cottage | £ 1,165,000 | 0.09 KM |
| Wheelwright Cottage | £ 980,000 | 0.20 KM |
| 11 Grange Walk | £ 995,000 | 0.55 KM |