Preston Baker says ..
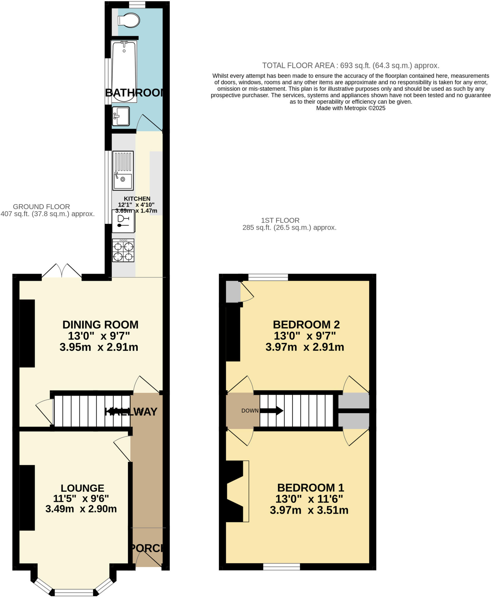
A 2 double bedroom period townhouse situated in one of York's most sought-after areas, just off Bishopthorpe Road.
Property Oracle says ..
Therefore, we give this property 6 / 10. *Disclaimer: This is our option and does constitute a recommendation or financial advice. Do your own research. *
- Price
- 6
- Condition
- 7
- Location
- 8
- Land
- 3
- Bedrooms
- 2
- Bathrooms
- 1
- Sqft (est)
- 565.43
The heatmap indicates the level of crime in the area. The color of the heatmap indicates the crime severity and recency.
Metrics Year-on-Year
- Average area value
- 542,496.00 £Increased by 34.28 %
- Est sale value
- 236,349.74 £Increased by 33.55 %
- Average area rental value
- 1,435.00 £/moIncreased by 6.30 %
- Est letting value
- 565.43 £/moUnchanged by 0.00 %
- Est rental Yield
- 3.17 %Decreased by 20.95 %
- Crime Rate
- 4.00 %Unchanged by 0.00 %
from 404,000.00 £
from 176,979.59 £
from 1,350.00 £/mo
from 565.43 £/mo
from 4.01 %
from 4.00 %
Agent Activity
Preston Baker created the listing.
Nearby Schools
| Name | Type | Ofsted | Distance |
|---|---|---|---|
| Millthorpe School | Academy Converter | Good | 0.37 KM |
| Scarcroft Primary School | Academy Converter | 0.47 KM | |
| Knavesmire Children'S Centre | Children's Centre | 0.65 KM | |
| Knavesmire Primary School | Academy Converter | 0.65 KM | |
| The Mount School (York) | Other Independent School | 1.20 KM |
Images
Nearby Streets
| Name | Average Price | Average Sqft | Distance |
|---|---|---|---|
| Drake Street | £ 180,000 | 0 | 0.00 KM |
| Bishopgate Street | £ 0 | 0 | 0.00 KM |
| Nunnery Lane | £ 0 | 0 | 0.00 KM |
| Bishopthorpegate Street | £ 230,000 | 0 | 0.00 KM |
| Bishops Court | £ 0 | 0 | 0.00 KM |
Nearby Transport
| Name | NLC | TLC | Distance |
|---|---|---|---|
| York | 8263 | YRK | 1.14 KM |
| Poppleton | 8254 | POP | 7.39 KM |
Nearby Listings
| Address | Price | Type | Score | Distance |
|---|---|---|---|---|
| Russell Street, York, YO23 | £ 350,000 | BUY | 6 / 10 | 0.00 KM |
| Russell Street, York | £ 375,000 | BUY | 6 / 10 | 0.01 KM |
| Russell Street, Southbank, York | £ 365,000 | BUY | 6 / 10 | 0.03 KM |
| Russell Street, York | £ 450,000 | BUY | 7 / 10 | 0.04 KM |
| Scott Street, York, YO23 | £ 275,000 | BUY | 4 / 10 | 0.04 KM |
Nearby Properties
| Address | Price | Distance |
|---|---|---|
| 42 Russell Street | £ 272,000 | 0.06 KM |
| 62 Russell Street | £ 245,000 | 0.06 KM |
| 16 Russell Street | £ 318,000 | 0.06 KM |
| 66 Russell Street | £ 196,000 | 0.06 KM |
| 22 Russell Street | £ 230,000 | 0.06 KM |