Bury Street, Newport Pagnell
By Homes on Web Ltd
£ 475,000
Reviews
3 out of 5 stars
Homes on Web Ltd says ..
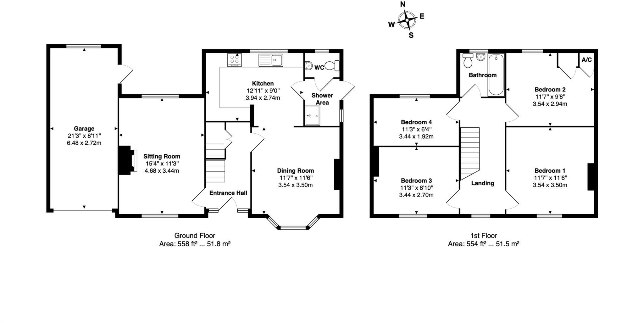
FOUR BEDROOM DETACHED FAMILY HOME...NO UPPER CHAIN...CLOSE TO NEWPORT PAGNELL HIGH STREET...SHOWER ROOM & BATHROOM......LARGER THAN AVERAGE GARAGE (21`3 x 8`11 max)...DRIVEWAY....OUSEDALE SCHOOL CATCHMENT
Property Oracle says ..
Therefore, we give this property 7 / 10. *Disclaimer: This is our option and does constitute a recommendation or financial advice. Do your own research. *
- Price
- 7
- Condition
- 6
- Location
- 8
- Land
- 7
- Bedrooms
- 4
- Bathrooms
- 2
- Sqft (est)
- 1,029.14
The heatmap indicates the level of crime in the area. The color of the heatmap indicates the crime severity and recency.
Metrics Year-on-Year
- Average area value
- 470,625.00 £Increased by 21.06 %
- Est sale value
- 418,859.98 £Increased by 64.78 %
- Average area rental value
- 1,277.00 £/moDecreased by 3.84 %
- Est letting value
- 1,029.14 £/mo
- Est rental Yield
- 3.26 %Decreased by 20.49 %
- Crime Rate
- 48.00 %Unchanged by 0.00 %
from 388,752.00 £
from 254,197.58 £
from 1,328.00 £/mo
from 0.00 £/mo
from 4.10 %
from 48.00 %
Agent Activity
Homes on Web Ltd created the listing.
Nearby Schools
| Name | Type | Ofsted | Distance |
|---|---|---|---|
| Cedars Primary School | Community School | Good | 0.03 KM |
| Tickford Park Primary School | Foundation School | Good | 0.82 KM |
| Green Park School | Foundation School | Good | 1.15 KM |
| Tickford Meadow Children'S Centre | Children's Centre | 1.15 KM | |
| Ousedale School | Academy Converter | Good | 1.30 KM |
Images
Nearby Streets
| Name | Average Price | Average Sqft | Distance |
|---|---|---|---|
| River Close | £ 0 | 0 | 0.00 KM |
| Dovecote | £ 0 | 0 | 0.00 KM |
| Lathbury Bridge | £ 0 | 0 | 0.00 KM |
| Beech Road | £ 0 | 0 | 0.00 KM |
| Green Park Drive | £ 285,000 | 0 | 0.00 KM |
Nearby Transport
| Name | NLC | TLC | Distance |
|---|---|---|---|
| Milton Keynes Central | 1378 | MKC | 7.88 KM |
| Wolverton | 1364 | WOL | 9.04 KM |
| Fenny Stratford | 1377 | FEN | 9.56 KM |
| Bow Brickhill | 1381 | BWB | 9.58 KM |
Nearby Listings
| Address | Price | Type | Score | Distance |
|---|---|---|---|---|
| Bury Street, Newport Pagnell | £ 475,000 | BUY | 7 / 10 | 0.00 KM |
| Cedars Way, Newport Pagnell, Buckinghamshire, MK16 | £ 250,000 | BUY | 4 / 10 | 0.04 KM |
| Cedars Way, Newport Pagnell | £ 410,000 | BUY | 6 / 10 | 0.08 KM |
| Cedars Way, Newport Pagnell, Buckinghamshire, MK16 | £ 375,000 | BUY | 6 / 10 | 0.08 KM |
| Bury Street, Newport Pagnell | £ 315,000 | BUY | Unknown | 0.11 KM |
Nearby Properties
| Address | Price | Distance |
|---|---|---|
| 19 Bury Street | £ 165,000 | 0.01 KM |
| 11 Bury Street | £ 167,000 | 0.01 KM |
| 9 Bury Street | £ 282,500 | 0.01 KM |
| 13 Bury Street | £ 120,000 | 0.01 KM |
| 5 Bury Street | £ 310,000 | 0.01 KM |