Site With Planning Permission, Maidenhead
By Braxton
£ 1,100,000
Reviews
2 out of 5 stars
Braxton says ..
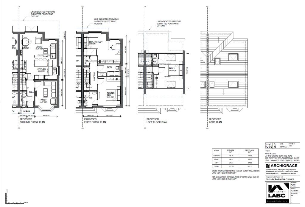
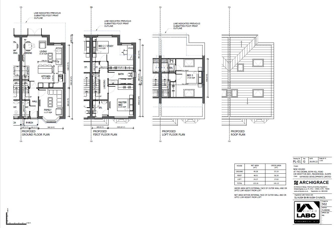
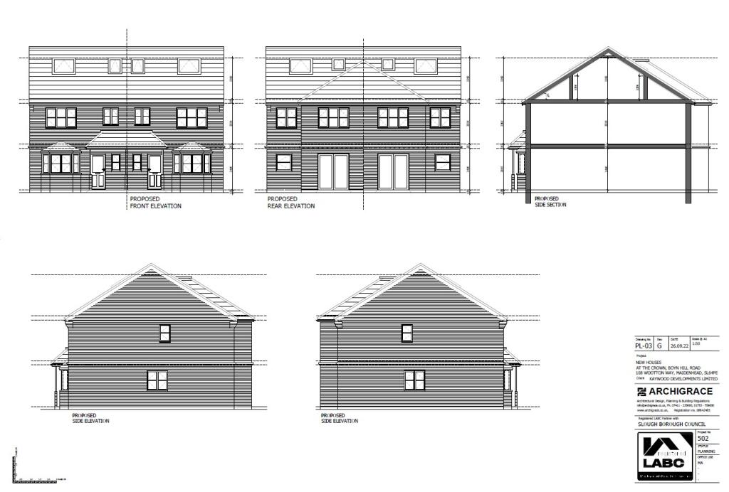
An exciting development opportunity to acquire a parcel of land with full planning permission granted for the construction of four well-proportioned three-bedroom family homes, Planning Reference Number 24/00630/FULL. The site is conveniently located in the sought-after Altwood area within a shor...
Property Oracle says ..
This is a plot of land with planning permission for three new houses in Boyn Hill, Maidenhead. The location is good, with proximity to schools and transport links, though it is near a busy road. Currently, the site is undeveloped, requiring complete construction. The price seems reasonable given the location and development potential, but a detailed review of the planning permission is recommended.
Therefore, we give this property 5 / 10. *Disclaimer: This is our option and does constitute a recommendation or financial advice. Do your own research. *
- Price
- 7
- Condition
- 1
- Location
- 7
- Land
- 5
- Bedrooms
- 12
- Bathrooms
- 12
The heatmap indicates the level of crime in the area. The color of the heatmap indicates the crime severity and recency.
Metrics Year-on-Year
- Average area value
- 208,333.00 £Decreased by 17.92 %
- Average area rental value
- 806.00 £/moDecreased by 15.34 %
- Est rental Yield
- 4.64 %Increased by 3.11 %
- Crime Rate
- 8.00 %Unchanged by 0.00 %
Agent Activity
Braxton created the listing.
Nearby Schools
| Name | Type | Ofsted | Distance |
|---|---|---|---|
| Boyne Hill Cofe Infant And Nursery School | Voluntary Controlled School | Outstanding | 0.45 KM |
| All Saints Cofe Junior School | Voluntary Controlled School | Good | 0.47 KM |
| Altwood Cofe Secondary School | Academy Converter | Good | 0.95 KM |
| Little Acorn Children'S Centre Services At Pinkneys Green | Children's Centre | 1.10 KM | |
| Larchfield Primary And Nursery School | Community School | Good | 1.16 KM |
Images
Nearby Streets
| Name | Average Price | Average Sqft | Distance |
|---|---|---|---|
| Norden Road | £ 0 | 0 | 0.00 KM |
| Welbeck Road | £ 425,000 | 0 | 0.00 KM |
| Courthouse Road | £ 0 | 0 | 0.00 KM |
| Service Road To Hever Close | £ 340,000 | 0 | 0.00 KM |
| Hawthorn Gardens | £ 415,000 | 0 | 0.00 KM |
Nearby Transport
| Name | NLC | TLC | Distance |
|---|---|---|---|
| Maidenhead | 3147 | MAI | 2.20 KM |
| Furze Platt | 3144 | FZP | 2.50 KM |
| Cookham | 3019 | COO | 5.20 KM |
| Marlow | 3021 | MLW | 6.76 KM |
| Taplow | 3151 | TAP | 6.79 KM |
Nearby Listings
| Address | Price | Type | Score | Distance |
|---|---|---|---|---|
| Site With Planning Permission, Maidenhead | £ 1,100,000 | BUY | 5 / 10 | 0.00 KM |
| Wootton Way, | £ 1,100,000 | BUY | Unknown | 0.04 KM |
| Boyn Valley Road, Maidenhead | £ 269,000 | BUY | 7 / 10 | 0.07 KM |
| Boyn Valley Road, Maidenhead, SL6 | £ 255,000 | BUY | Unknown | 0.09 KM |
| Boyn Valley Road, Maidenhead | £ 400,000 | BUY | Unknown | 0.10 KM |
Nearby Properties
| Address | Price | Distance |
|---|---|---|
| 100 Boyn Hill Road | £ 390,000 | 0.09 KM |
| 90 Boyn Hill Road | £ 190,000 | 0.09 KM |
| Choppins | £ 425,000 | 0.10 KM |
| 74 Boyn Hill Road | £ 585,000 | 0.10 KM |
| 82 Boyn Hill Road | £ 330,900 | 0.10 KM |