Inglemere Road, Tranmere, Merseyside, CH42
By Bradshaw Farnham & Lea
£ 150,000
Reviews
3 out of 5 stars
Bradshaw Farnham & Lea says ..
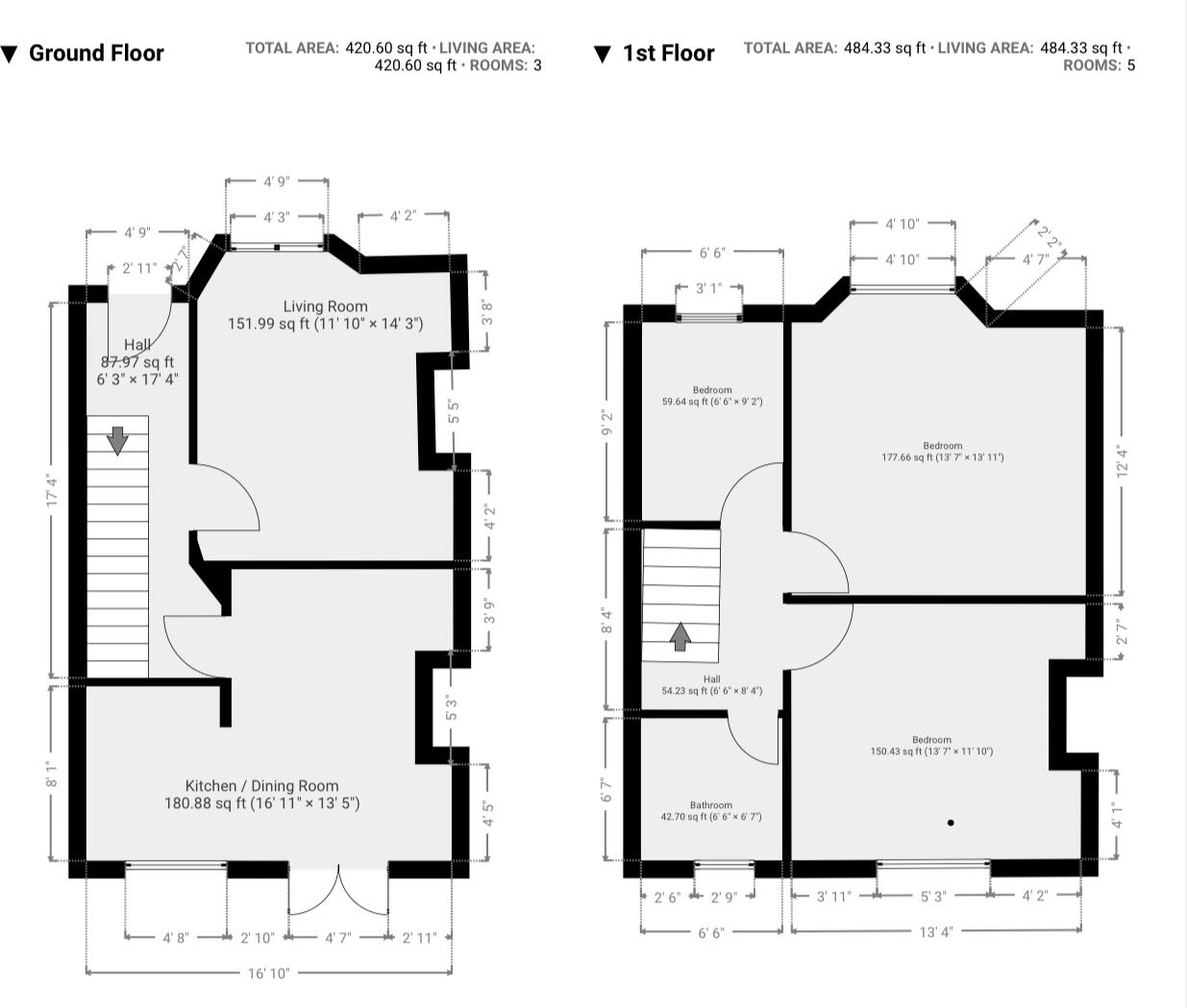
A spacious and well-presented three-bedroom bay-fronted mid-terrace home, ideally located near parks, schools, and local amenities.
Property Oracle says ..
Therefore, we give this property 6 / 10. *Disclaimer: This is our option and does constitute a recommendation or financial advice. Do your own research. *
- Price
- 6
- Condition
- 6
- Location
- 7
- Land
- 5
- Bedrooms
- 3
- Bathrooms
- 1
- Sqft (est)
- 420.60
The heatmap indicates the level of crime in the area. The color of the heatmap indicates the crime severity and recency.
Metrics Year-on-Year
- Average area value
- 248,333.00 £Increased by 73.97 %
- Est sale value
- 86,223.00 £Increased by 22.02 %
- Average area rental value
- 733.00 £/moIncreased by 10.39 %
- Est letting value
- 0.00 £/mo
- Est rental Yield
- 3.54 %Decreased by 36.56 %
- Crime Rate
- 7.00 %Unchanged by 0.00 %
from 142,743.00 £
from 70,660.80 £
from 664.00 £/mo
from 0.00 £/mo
from 5.58 %
from 7.00 %
Agent Activity
Bradshaw Farnham & Lea marked this listing as sold.
Bradshaw Farnham & Lea created the listing.
Nearby Schools
| Name | Type | Ofsted | Distance |
|---|---|---|---|
| Well Lane Primary School | Community School | Good | 0.30 KM |
| Bedford Drive Primary School | Community School | Good | 0.76 KM |
| Rock Ferry Primary School | Community School | Good | 0.88 KM |
| Mersey Park Primary School | Community School | Outstanding | 0.88 KM |
| Rock Ferry Children'S Centre | Children's Centre | 0.94 KM |
Images
Nearby Streets
| Name | Average Price | Average Sqft | Distance |
|---|---|---|---|
| Well Lane | £ 0 | 0 | 0.00 KM |
| Meadow Lane | £ 0 | 0 | 0.00 KM |
| Victoria Park Road | £ 0 | 0 | 0.00 KM |
| Shakespeare Avenue | £ 0 | 0 | 0.00 KM |
| Orchard Court | £ 130,000 | 0 | 0.00 KM |
Nearby Transport
| Name | NLC | TLC | Distance |
|---|---|---|---|
| Rock Ferry | 2189 | RFY | 0.80 KM |
| Green Lane | 2218 | GNL | 1.15 KM |
| Birkenhead Central | 2217 | BKC | 1.72 KM |
| Conway Park | 3624 | CNP | 2.31 KM |
| Bebington | 2188 | BEB | 2.34 KM |
Nearby Listings
| Address | Price | Type | Score | Distance |
|---|---|---|---|---|
| Inglemere Road, Tranmere, Merseyside, CH42 | £ 150,000 | BUY | 6 / 10 | 0.00 KM |
| Inglemere Road, Birkenhead, CH42 | £ 140,000 | BUY | Unknown | 0.03 KM |
| Inglemere Road, Birkenhead, Merseyside, CH42 | £ 135,000 | BUY | 7 / 10 | 0.03 KM |
| Southdale Road, Birkenhead | £ 129,950 | BUY | Unknown | 0.03 KM |
| Inglemere Road, Birkenhead, Wirral | £ 145,000 | BUY | Unknown | 0.05 KM |
Nearby Properties
| Address | Price | Distance |
|---|---|---|
| 14 Inglemere Road | £ 110,000 | 0.01 KM |
| 46 Inglemere Road | £ 108,000 | 0.01 KM |
| 74 Inglemere Road | £ 28,500 | 0.01 KM |
| 28 Inglemere Road | £ 110,000 | 0.01 KM |
| 52 Inglemere Road | £ 86,500 | 0.01 KM |