SE
Florence Way, Knaphill, Woking, Surrey, GU21
By Seymours Estate Agents
£ 475,000
Reviews
3 out of 5 stars
Seymours Estate Agents says ..
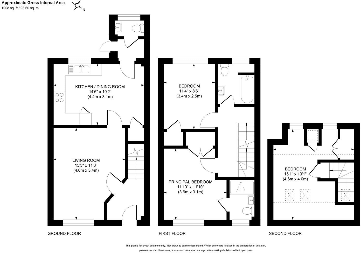
Executive-Style Home in Excellent Condition with Loft Conversion and Garage Presented in excellent condition throughout, this executive-style home offers spacious, modern living across three well-appointed levels—perfect for families or professionals seeking both comfort and convenienc...
Property Oracle says ..
Therefore, we give this property 7 / 10. *Disclaimer: This is our option and does constitute a recommendation or financial advice. Do your own research. *
- Price
- 8
- Condition
- 8
- Location
- 7
- Land
- 7
- Bedrooms
- 3
- Bathrooms
- 2
- Sqft (est)
- 753.83
The heatmap indicates the level of crime in the area. The color of the heatmap indicates the crime severity and recency.
Metrics Year-on-Year
- Average area value
- 586,400.00 £Increased by 18.76 %
- Est sale value
- 358,823.08 £Increased by 6.01 %
- Average area rental value
- 2,150.00 £/moIncreased by 9.47 %
- Est letting value
- 753.83 £/moUnchanged by 0.00 %
- Est rental Yield
- 4.40 %Decreased by 7.76 %
- Crime Rate
- 38.00 %Unchanged by 0.00 %
from 493,776.00 £
from 338,469.67 £
from 1,964.00 £/mo
from 753.83 £/mo
from 4.77 %
from 38.00 %
Agent Activity
Seymours Estate Agents marked this listing as sold.
Seymours Estate Agents created the listing.
Nearby Schools
| Name | Type | Ofsted | Distance |
|---|---|---|---|
| Knaphill School | Academy Converter | 0.58 KM | |
| The Knaphill Lower School | Academy Converter | 0.75 KM | |
| St Hugh Of Lincoln Catholic Primary School | Academy Converter | Good | 0.95 KM |
| St John'S Primary School | Academy Sponsor Led | Requires improvement | 1.23 KM |
| St John'S Primary School And Sure Start Children'S Centre | Children's Centre | 1.23 KM |
Images
Nearby Streets
| Name | Average Price | Average Sqft | Distance |
|---|---|---|---|
| Rose Lodge | £ 0 | 0 | 0.00 KM |
| Barton Close | £ 0 | 0 | 0.00 KM |
| Elmgrove Close | £ 425,000 | 0 | 0.00 KM |
| Trinity Road | £ 660,000 | 0 | 0.00 KM |
| Beechwood Close | £ 0 | 0 | 0.00 KM |
Nearby Transport
| Name | NLC | TLC | Distance |
|---|---|---|---|
| Brookwood | 5687 | BKO | 2.33 KM |
| Worplesdon | 5686 | WPL | 4.90 KM |
| Woking | 5685 | WOK | 6.77 KM |
| Longcross | 5674 | LNG | 8.21 KM |
| Sunningdale | 5671 | SNG | 8.69 KM |
Nearby Listings
| Address | Price | Type | Score | Distance |
|---|---|---|---|---|
| Florence Way, Knaphill, Woking, Surrey, GU21 | £ 475,000 | BUY | 7 / 10 | 0.00 KM |
| Florence Way, Knaphill, Woking, Surrey, GU21 | £ 480,000 | BUY | Unknown | 0.01 KM |
| Alexandra Gardens, Knaphill, Woking, Surrey, GU21 | £ 585,000 | BUY | 7 / 10 | 0.07 KM |
| Florence Way, Knaphill, Woking | £ 425,000 | BUY | 6 / 10 | 0.13 KM |
| Alexandra Gardens, Knaphill, Woking, Surrey, GU21 | £ 550,000 | BUY | 6 / 10 | 0.16 KM |
Nearby Properties
| Address | Price | Distance |
|---|---|---|
| 17 Alexandra Gardens | £ 275,000 | 0.14 KM |
| 37 Alexandra Gardens | £ 355,000 | 0.14 KM |
| 16 Alexandra Gardens | £ 182,000 | 0.14 KM |
| 20 Alexandra Gardens | £ 450,000 | 0.14 KM |
| 30 Alexandra Gardens | £ 335,000 | 0.14 KM |