Lower Sunbury, Sunbury-on- Thames, TW16
By Chancellors
£ 700,000
Reviews
3 out of 5 stars
Chancellors says ..
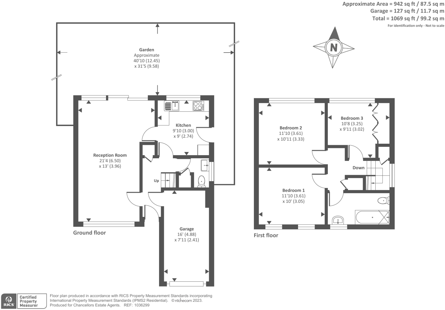
A three double bedroom detached house which benefits from a garage, off-street parking and is located within a 0.3 mile radius of Sunbury station. Comprising of a lounge/diner, fitted kitchen, downstairs WC, three double bedrooms, family bathroom and garden.
Property Oracle says ..
This is a detached property located in a popular area of Lower Sunbury. The house has three bedrooms and one bathroom, with a plot size of 1,279 sqft. The property benefits from a garage and a garden. The interior has been modernised, with a new kitchen and bathroom. The property is located close to local schools, amenities, and transport links. Overall, this property would make an ideal family home.
Therefore, we give this property 7 / 10. *Disclaimer: This is our option and does constitute a recommendation or financial advice. Do your own research. *
- Price
- 7
- Condition
- 8
- Location
- 7
- Land
- 6
- Bedrooms
- 3
- Bathrooms
- 1
- Sqft (est)
- 1,069.00
- Lot (est)
- 1,279.00
The heatmap indicates the level of crime in the area. The color of the heatmap indicates the crime severity and recency.
Metrics Year-on-Year
- Average area value
- 679,929.00 £Decreased by 2.36 %
- Est sale value
- 662,780.00 £Decreased by 3.28 %
- Average area rental value
- 2,750.00 £/moIncreased by 2.61 %
- Est letting value
- 2,138.00 £/moUnchanged by 0.00 %
- Est rental Yield
- 4.85 %Increased by 4.98 %
- Crime Rate
- 4.00 %Unchanged by 0.00 %
Agent Activity
Chancellors created the listing.
Nearby Schools
| Name | Type | Ofsted | Distance |
|---|---|---|---|
| St Paul'S Catholic College | Voluntary Aided School | Outstanding | 0.55 KM |
| St Ignatius Catholic Primary School | Voluntary Aided School | Good | 0.77 KM |
| Chennestone Primary School | Community School | Good | 0.96 KM |
| Kenyngton Manor Primary School | Academy Sponsor Led | Good | 1.06 KM |
| Kenyngton Manor Primary School & Sure Start Children'S Centre | Children's Centre | 1.06 KM |
Images
Nearby Streets
| Name | Average Price | Average Sqft | Distance |
|---|---|---|---|
| Orchard Road | £ 0 | 0 | 0.00 KM |
| Manor Lane | £ 390,000 | 0 | 0.00 KM |
| Springfield Grove | £ 0 | 0 | 0.00 KM |
| Sutherland Gardens | £ 0 | 0 | 0.00 KM |
| Blacksmith Close | £ 789,950 | 0 | 0.00 KM |
Nearby Transport
| Name | NLC | TLC | Distance |
|---|---|---|---|
| Kempton Park Racecourse | 5678 | KMP | 0.34 KM |
| Sunbury | 5608 | SUU | 0.69 KM |
| Upper Halliford | 5613 | UPH | 2.22 KM |
| Feltham | 5559 | FEL | 3.28 KM |
| Hampton | 5560 | HMP | 4.37 KM |
Nearby Listings
| Address | Price | Type | Score | Distance |
|---|---|---|---|---|
| Lower Sunbury, Sunbury-on- Thames, TW16 | £ 700,000 | BUY | 7 / 10 | 0.00 KM |
| Priory Walk, Sunbury on Thames, TW16 | £ 199,950 | BUY | 6 / 10 | 0.01 KM |
| Staines Road East, Sunbury-On-Thames | £ 220,000 | BUY | Unknown | 0.01 KM |
| Staines Road East, Sunbury-On-Thames | £ 700,000 | BUY | 7 / 10 | 0.01 KM |
| Staines Road East, Sunbury-on-Thames, Surrey, TW16 | £ 625,000 | BUY | 7 / 10 | 0.01 KM |
Nearby Properties
| Address | Price | Distance |
|---|---|---|
| 133a Staines Road East | £ 375,000 | 0.01 KM |
| 123a Staines Road East | £ 500,000 | 0.01 KM |
| 131 Staines Road East | £ 495,000 | 0.01 KM |
| 101 Staines Road East | £ 405,000 | 0.01 KM |
| 135 Staines Road East | £ 587,500 | 0.01 KM |