Lichfield Road, Burntwood
By Lovett&Co. Estate Agents
£ 375,000
Reviews
3 out of 5 stars
Lovett&Co. Estate Agents says ..
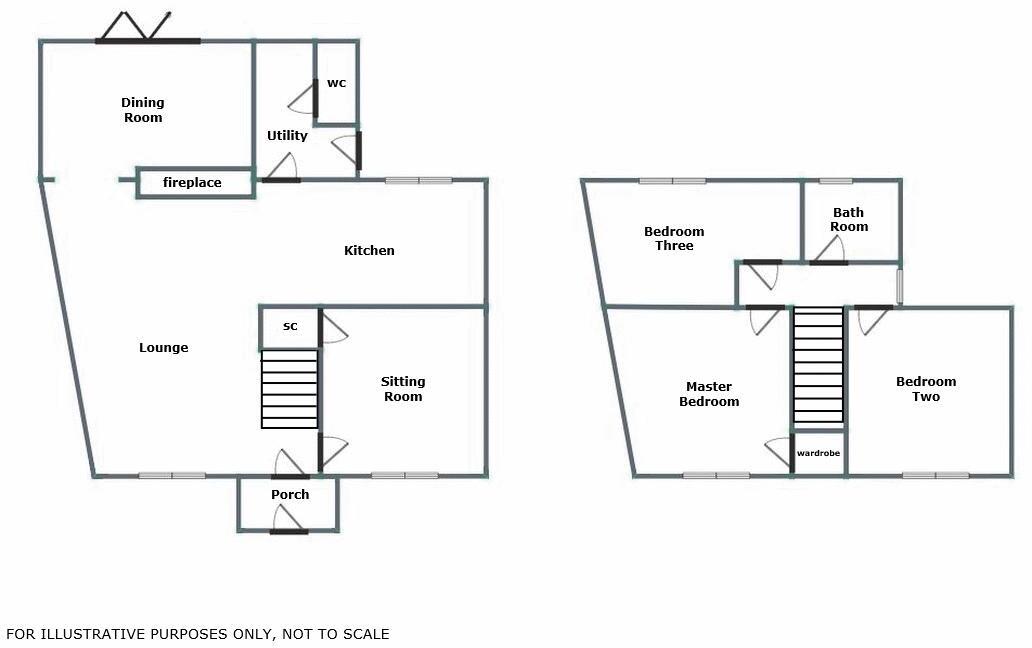
Lovett&Co. Estate Agents are pleased to offer for sale this spacious three bedroom detached character home with private parking to the rear. The property briefly comprises: entrance porch, large lounge with openings to the kitchen and rear dining area, utility, WC, landing, modern family bathr...
Property Oracle says ..
This three-bedroom detached house on Lichfield Road in Burntwood, Staffordshire is listed at £375,000. The property benefits from a good-sized rear garden and appears to be in reasonable condition, although some minor cosmetic updates might enhance its appeal. The location in Summerfield & All Saints offers proximity to local schools and transport links, adding to its overall value. However, a comprehensive comparative market analysis is needed to determine if the asking price aligns with current market values in the area.
Therefore, we give this property 6 / 10. *Disclaimer: This is our option and does constitute a recommendation or financial advice. Do your own research. *
- Price
- 6
- Condition
- 7
- Location
- 7
- Land
- 7
- Bedrooms
- 3
- Bathrooms
- 1
- Sqft (est)
- 1,530.00
The heatmap indicates the level of crime in the area. The color of the heatmap indicates the crime severity and recency.
Metrics Year-on-Year
- Average area value
- 65,000.00 £Decreased by 67.00 %
- Est sale value
- 188,190.00 £Decreased by 39.11 %
- Average area rental value
- 725.00 £/moIncreased by 21.44 %
- Est letting value
- 1,530.00 £/mo
- Est rental Yield
- 13.38 %Increased by 267.58 %
- Crime Rate
- 7.00 %Unchanged by 0.00 %
Agent Activity
Lovett&Co. Estate Agents created the listing.
Nearby Schools
| Name | Type | Ofsted | Distance |
|---|---|---|---|
| Fulfen Primary School | Community School | Good | 0.53 KM |
| Highfields Primary Academy | Academy Converter | 0.96 KM | |
| Springhill Primary Academy | Academy Sponsor Led | Good | 1.91 KM |
| Ridgeway Primary School | Foundation School | Good | 2.42 KM |
| Boney Hay Primary Academy | Academy Converter | Good | 3.19 KM |
Images
Nearby Streets
| Name | Average Price | Average Sqft | Distance |
|---|---|---|---|
| Trent Close | £ 0 | 0 | 0.00 KM |
| Church Road | £ 795,000 | 0 | 0.00 KM |
| Forge Close | £ 360,000 | 0 | 0.00 KM |
| Bracken Close | £ 290,000 | 0 | 0.00 KM |
| Rose Lane | £ 297,500 | 0 | 0.00 KM |
Nearby Transport
| Name | NLC | TLC | Distance |
|---|---|---|---|
| Shenstone | 1178 | SEN | 7.70 KM |
| Lichfield City | 1177 | LIC | 8.57 KM |
| Rugeley Town | 1135 | RGT | 9.42 KM |
Nearby Listings
| Address | Price | Type | Score | Distance |
|---|---|---|---|---|
| Lichfield Road, Burntwood | £ 375,000 | BUY | 6 / 10 | 0.00 KM |
| Mease Avenue, Burntwood, WS7 9JP | £ 300,000 | BUY | 7 / 10 | 0.06 KM |
| Mease Avenue, Burntwood, WS7 9JP | £ 270,000 | BUY | 6 / 10 | 0.06 KM |
| Nailers Drive, Burntwood, WS7 | £ 235,000 | BUY | 7 / 10 | 0.10 KM |
| Manifold Close, Burntwood, Church Farm Estate, WS7 9JR | £ 395,000 | BUY | 7 / 10 | 0.12 KM |
Nearby Properties
| Address | Price | Distance |
|---|---|---|
| 75 Lichfield Road | £ 346,000 | 0.01 KM |
| 29 Lichfield Road | £ 220,000 | 0.01 KM |
| 61a Lichfield Road | £ 275,000 | 0.01 KM |
| 13 Lichfield Road | £ 229,950 | 0.01 KM |
| 7a Lichfield Road | £ 270,000 | 0.01 KM |