Hoopers says ..
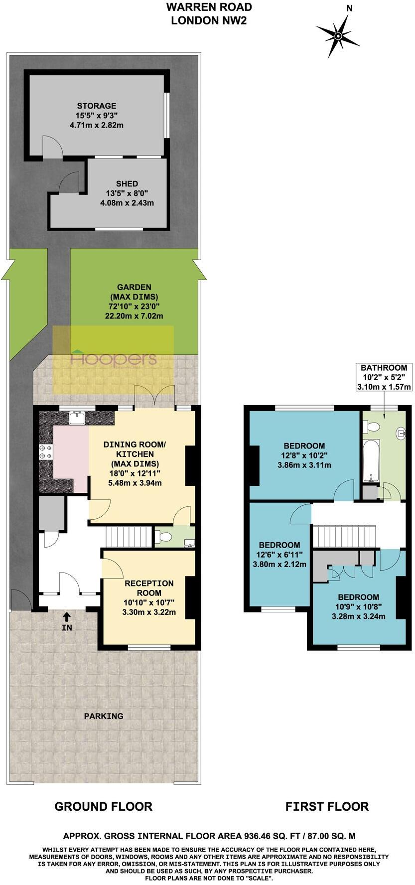
We are delighted to be able to bring to the market this beautifully presented rarely available end of terrace property which is situated in the popular Brentwater Area off Brook Road and viewing is highly recommended to appreciate the condition in which the property is presented and the featur...
Property Oracle says ..
Therefore, we give this property 7 / 10. *Disclaimer: This is our option and does constitute a recommendation or financial advice. Do your own research. *
- Price
- 7
- Condition
- 7
- Location
- 8
- Land
- 7
- Bedrooms
- 3
- Bathrooms
- 1
- Sqft (est)
- 2,656.53
The heatmap indicates the level of crime in the area. The color of the heatmap indicates the crime severity and recency.
Metrics Year-on-Year
- Average area value
- 592,856.00 £Decreased by 11.32 %
- Est sale value
- 1,817,066.52 £Increased by 10.86 %
- Average area rental value
- 2,240.00 £/moIncreased by 20.89 %
- Est letting value
- 5,313.06 £/moIncreased by 100.00 %
- Est rental Yield
- 4.53 %Increased by 36.04 %
- Crime Rate
- 4.00 %Unchanged by 0.00 %
from 668,547.00 £
from 1,639,079.01 £
from 1,853.00 £/mo
from 2,656.53 £/mo
from 3.33 %
from 4.00 %
Agent Activity
Hoopers created the listing.
Nearby Schools
| Name | Type | Ofsted | Distance |
|---|---|---|---|
| E-Act Crest Academy | Academy Sponsor Led | Good | 0.27 KM |
| Braintcroft E-Act Primary Academy | Academy Sponsor Led | 0.38 KM | |
| Menorah High School For Girls | Voluntary Aided School | Good | 0.44 KM |
| Our Lady Of Grace Catholic Junior School | Academy Converter | 1.08 KM | |
| Avigdor Hirsch Torah Temimah Primary School | Voluntary Aided School | Good | 1.18 KM |
Images
Nearby Streets
| Name | Average Price | Average Sqft | Distance |
|---|---|---|---|
| Links Road | £ 0 | 0 | 0.00 KM |
| Byron Road | £ 0 | 0 | 0.00 KM |
| Sorrel Mead | £ 0 | 0 | 0.00 KM |
| Prout Grove | £ 570,000 | 0 | 0.00 KM |
| A4088 | £ 0 | 0 | 0.00 KM |
Nearby Transport
| Name | NLC | TLC | Distance |
|---|---|---|---|
| Hendon | 1522 | HEN | 1.61 KM |
| Cricklewood | 1519 | CRI | 3.31 KM |
| Willesden Junction | 1457 | WIJ | 3.73 KM |
| Harlesden | 1521 | HDN | 3.74 KM |
| Kensal Rise | 1448 | KNR | 4.23 KM |
Nearby Listings
| Address | Price | Type | Score | Distance |
|---|---|---|---|---|
| Warren Road, London, NW2 | £ 635,000 | BUY | 7 / 10 | 0.00 KM |
| Warren Road, Neasden, London, NW2 | £ 700,000 | BUY | Unknown | 0.06 KM |
| Dawpool Road, London, NW2 | £ 550,000 | BUY | Unknown | 0.14 KM |
| Dawpool Road, London, NW2 | £ 599,950 | BUY | 6 / 10 | 0.15 KM |
| Dawpool Road, Neasden, London, NW2 | £ 790,000 | BUY | Unknown | 0.15 KM |
Nearby Properties
| Address | Price | Distance |
|---|---|---|
| 93 Warren Road | £ 570,000 | 0.06 KM |
| 87 Warren Road | £ 90,000 | 0.06 KM |
| 117 Warren Road | £ 265,000 | 0.06 KM |
| 107 Warren Road | £ 249,950 | 0.06 KM |
| 85 Warren Road | £ 150,000 | 0.06 KM |