MJHP says ..
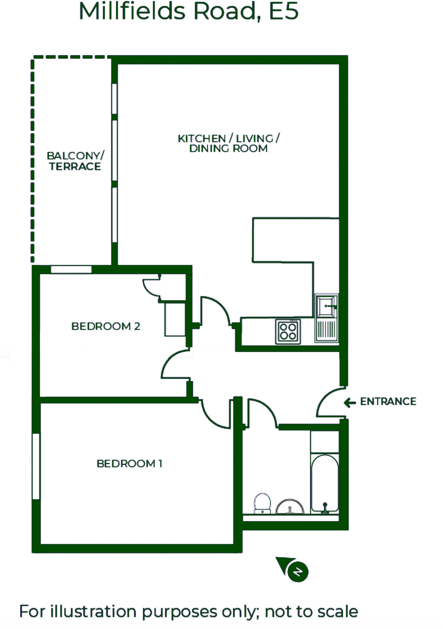
Resting on a quiet corner overlooking Clapton Pond, this two-bedroom apartment is situated within Moore House, a thoughtfully designed collection of just nine residences.
Property Oracle says ..
Therefore, we give this property 6 / 10. *Disclaimer: This is our option and does constitute a recommendation or financial advice. Do your own research. *
- Price
- 4
- Condition
- 9
- Location
- 7
- Land
- 6
- Bedrooms
- 2
- Bathrooms
- 1
- Sqft (est)
- 617.00
The heatmap indicates the level of crime in the area. The color of the heatmap indicates the crime severity and recency.
Metrics Year-on-Year
- Average area value
- 493,056.00 £Decreased by 16.30 %
- Est sale value
- 452,261.00 £Increased by 15.80 %
- Average area rental value
- 2,526.00 £/moIncreased by 9.40 %
- Est letting value
- 1,851.00 £/moIncreased by 50.00 %
- Est rental Yield
- 6.15 %Increased by 30.85 %
- Crime Rate
- 10.00 %Unchanged by 0.00 %
from 589,060.00 £
from 390,561.00 £
from 2,309.00 £/mo
from 1,234.00 £/mo
from 4.70 %
from 10.00 %
Agent Activity
MJHP created the listing.
Nearby Schools
| Name | Type | Ofsted | Distance |
|---|---|---|---|
| Clapton Girls' Academy | Academy Converter | Outstanding | 0.27 KM |
| Millfields Community School | Community School | Good | 0.35 KM |
| Millfields Children'S Centre | Children's Centre | 0.42 KM | |
| Baden-Powell School | Community School | Good | 0.44 KM |
| The Brooke House Sixth Form College | Further Education | Good | 0.48 KM |
Images
Nearby Streets
| Name | Average Price | Average Sqft | Distance |
|---|---|---|---|
| Maitland Place | £ 0 | 0 | 0.00 KM |
| Laura Place | £ 0 | 0 | 0.00 KM |
| Tilia Road | £ 425,000 | 0 | 0.00 KM |
| Clarence Road | £ 0 | 0 | 0.00 KM |
| Baron's Walk | £ 299,950 | 0 | 0.00 KM |
Nearby Transport
| Name | NLC | TLC | Distance |
|---|---|---|---|
| Clapton | 6926 | CPT | 0.72 KM |
| Hackney Central | 6977 | HKC | 1.00 KM |
| Hackney Downs | 6867 | HAC | 1.08 KM |
| Rectory Road | 6967 | REC | 1.59 KM |
| Homerton | 6979 | HMN | 1.63 KM |
Nearby Listings
| Address | Price | Type | Score | Distance |
|---|---|---|---|---|
| Moore House, London, E5 | £ 600,000 | BUY | 6 / 10 | 0.00 KM |
| Millfields Road, London, E5 | £ 600,000 | BUY | 6 / 10 | 0.00 KM |
| Millfields Road, Hackney, London | £ 585,000 | BUY | Unknown | 0.01 KM |
| Lower Clapton Road, Hackney, London, E5 0QH | £ 750,000 | BUY | 6 / 10 | 0.06 KM |
| Atherden Road, Hackney, E5 | £ 1,250,000 | BUY | 7 / 10 | 0.10 KM |
Nearby Properties
| Address | Price | Distance |
|---|---|---|
| 160 Lower Clapton Road | £ 720,000 | 0.07 KM |
| 162 Lower Clapton Road | £ 1,670,000 | 0.08 KM |
| 158 Lower Clapton Road | £ 330,000 | 0.08 KM |
| 12 Alfearn Road | £ 745,000 | 0.10 KM |
| 16 Alfearn Road | £ 90,000 | 0.10 KM |