Gospatrick Road, London, N17
By LASTRA Property Group
£ 650,000
Reviews
3 out of 5 stars
LASTRA Property Group says ..
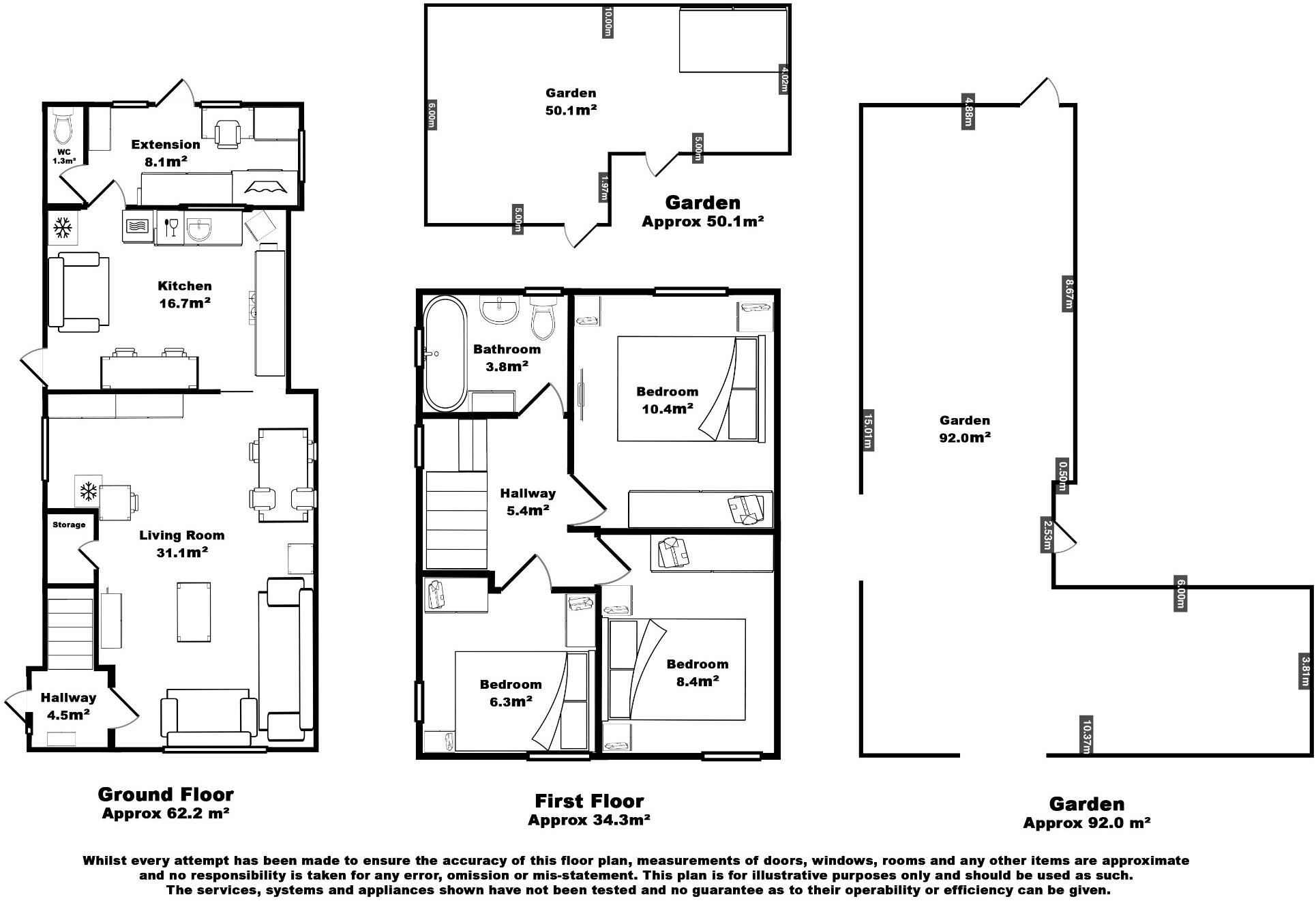
An extended three-bedroom end-terrace house with spacious interiors, a conservatory, off-street parking for three vehicles, and a rear garden. Conveniently located near transport links & schools.
Property Oracle says ..
This three-bedroom, three-bathroom house located on Gospatrick Road in Woodside, Haringey offers a blend of desirable and less-desirable features. The property’s position in a family-friendly area near well-regarded schools is a significant advantage. Furthermore, the presence of off-street parking and a garden is a plus for many buyers. The internal layout seems spacious and open-plan, with a decent kitchen and living area although the design aesthetic might not appeal to all tastes. The provided photos suggest the property is reasonably well-maintained; however, some cosmetic improvements and possible renovations could increase its value. While the garden offers an outdoor space, it requires some attention. Transport links are present, but a short commute is needed to reach major transport hubs. The lack of square footage information limits detailed cost analysis, however, based on nearby comparable properties, the £650,000 asking price sits within the expected range for the area. The property presents a decent opportunity, but potential buyers should factor in the need for updating and improvement work into their evaluation.
Therefore, we give this property 6 / 10. *Disclaimer: This is our option and does constitute a recommendation or financial advice. Do your own research. *
- Price
- 7
- Condition
- 6
- Location
- 7
- Land
- 4
- Bedrooms
- 3
- Bathrooms
- 3
The heatmap indicates the level of crime in the area. The color of the heatmap indicates the crime severity and recency.
Metrics Year-on-Year
- Average area value
- 489,165.00 £Increased by 16.57 %
- Average area rental value
- 1,679.00 £/moDecreased by 8.30 %
- Est rental Yield
- 4.12 %Decreased by 21.37 %
- Crime Rate
- 4.00 %Unchanged by 0.00 %
Agent Activity
LASTRA Property Group created the listing.
Nearby Schools
| Name | Type | Ofsted | Distance |
|---|---|---|---|
| Lordship Lane Primary School | Community School | Good | 0.47 KM |
| Riverside School | Community Special School | Good | 0.51 KM |
| Rowland Hill Nursery School & Children'S Centre | Children's Centre | 0.59 KM | |
| Rowland Hill Nursery School | Local Authority Nursery School | Good | 0.67 KM |
| Noel Park Children'S Centre | Children's Centre | 0.71 KM |
Images
Nearby Streets
| Name | Average Price | Average Sqft | Distance |
|---|---|---|---|
| Normans Close | £ 460,000 | 0 | 0.00 KM |
| Liberty Mews | £ 0 | 0 | 0.00 KM |
| Daubeney Road | £ 0 | 0 | 0.00 KM |
| Erin Mews | £ 650,000 | 0 | 0.00 KM |
| Elm Road | £ 525,000 | 0 | 0.00 KM |
Nearby Transport
| Name | NLC | TLC | Distance |
|---|---|---|---|
| White Hart Lane | 6956 | WHL | 2.52 KM |
| Palmers Green | 6021 | PAL | 2.56 KM |
| Hornsey | 6015 | HRN | 2.71 KM |
| Bruce Grove | 6958 | BCV | 2.79 KM |
| Harringay Green Lanes | 7401 | HRY | 2.87 KM |
Nearby Listings
| Address | Price | Type | Score | Distance |
|---|---|---|---|---|
| Gospatrick Road, London, N17 | £ 650,000 | BUY | 6 / 10 | 0.00 KM |
| GOSPATRICK ROAD, Tottenham, London, N17 | £ 580,000 | BUY | Unknown | 0.02 KM |
| Sandford Avenue, London, N22 | £ 575,000 | BUY | Unknown | 0.08 KM |
| Gospatrick Road, Tootenham | £ 525,000 | BUY | Unknown | 0.13 KM |
| Gospatrick Road, London, N17 | £ 375,000 | BUY | 5 / 10 | 0.14 KM |
Nearby Properties
| Address | Price | Distance |
|---|---|---|
| 147 Gospatrick Road | £ 437,000 | 0.00 KM |
| 143 Gospatrick Road | £ 215,000 | 0.00 KM |
| 149 Gospatrick Road | £ 430,000 | 0.00 KM |
| 103 Gospatrick Road | £ 250,000 | 0.00 KM |
| 101 Gospatrick Road | £ 255,000 | 0.00 KM |