CH
University / Hospital Area, Berkshire, RG1
By Chancellors
£ 280,000
Reviews
3 out of 5 stars
Chancellors says ..
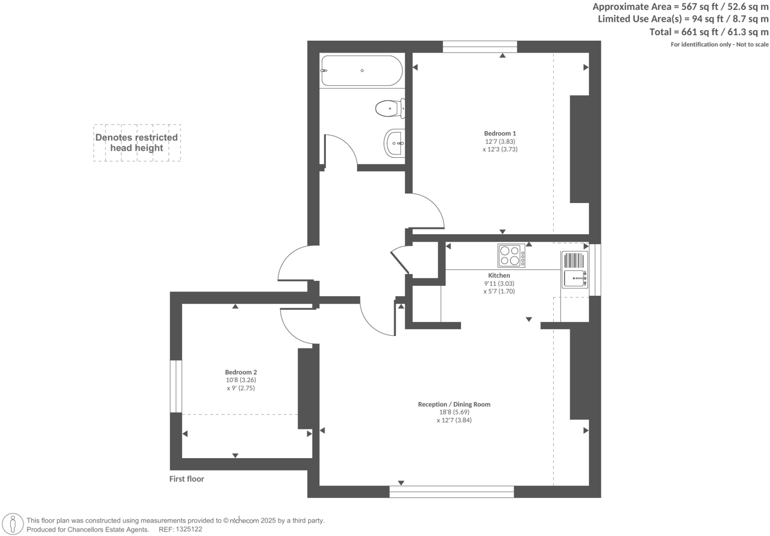
Set in this popular location, convenient for Reading Station, Centre, Oracle and Riverside with further access to University and Hospital is this top floor, two double bedroom apartment. Open sitting / dining room with picture window and arch to modern kitchen, modern bathroom, allocated parking.
Property Oracle says ..
Therefore, we give this property 6 / 10. *Disclaimer: This is our option and does constitute a recommendation or financial advice. Do your own research. *
- Price
- 7
- Condition
- 7
- Location
- 8
- Land
- 3
- Bedrooms
- 2
- Bathrooms
- 1
The heatmap indicates the level of crime in the area. The color of the heatmap indicates the crime severity and recency.
Metrics Year-on-Year
- Average area value
- 350,323.00 £Decreased by 1.18 %
- Average area rental value
- 1,334.00 £/moDecreased by 2.49 %
- Est rental Yield
- 4.57 %Decreased by 1.30 %
- Crime Rate
- 3.00 %Unchanged by 0.00 %
from 354,508.00 £
from 1,368.00 £/mo
from 4.63 %
from 3.00 %
Agent Activity
Chancellors created the listing.
Nearby Schools
| Name | Type | Ofsted | Distance |
|---|---|---|---|
| Red Balloon Learner Centre Reading | Other Independent School | 0.21 KM | |
| St John'S Church Of England Primary School | Academy Converter | Requires improvement | 0.46 KM |
| Reading School | Academy Converter | 0.47 KM | |
| East Reading Children'S Centre | Children's Centre | 0.61 KM | |
| The Abbey School Reading | Other Independent School | 0.76 KM |
Images
Nearby Streets
| Name | Average Price | Average Sqft | Distance |
|---|---|---|---|
| Queens Road | £ 287,000 | 0 | 0.00 KM |
| Joseph Huntley Walk | £ 375,000 | 0 | 0.00 KM |
| London Road | £ 0 | 0 | 0.00 KM |
| Blake's Wharf | £ 280,000 | 0 | 0.00 KM |
| Carraway Street | £ 300,000 | 0 | 0.00 KM |
Nearby Transport
| Name | NLC | TLC | Distance |
|---|---|---|---|
| Reading | 3149 | RDG | 1.87 KM |
| Reading West | 3160 | RDW | 3.75 KM |
| Earley | 5694 | EAR | 4.42 KM |
| Winnersh Triangle | 5698 | WTI | 7.39 KM |
| Tilehurst | 3154 | TLH | 8.40 KM |
Nearby Listings
| Address | Price | Type | Score | Distance |
|---|---|---|---|---|
| University / Hospital Area, Berkshire, RG1 | £ 280,000 | BUY | 6 / 10 | 0.00 KM |
| London Road, Reading, Berkshire | £ 75,000 | BUY | 5 / 10 | 0.06 KM |
| London Road, Reading | £ 850,000 | BUY | 7 / 10 | 0.07 KM |
| Foley Hall, London Road, Reading, Berkshire, RG1 | £ 92,000 | BUY | 5 / 10 | 0.07 KM |
| London Road, Reading, RG1 | £ 190,000 | BUY | 6 / 10 | 0.07 KM |
Nearby Properties
| Address | Price | Distance |
|---|---|---|
| 70 London Road | £ 418,000 | 0.06 KM |
| 24 Victoria Street | £ 182,500 | 0.10 KM |
| 22 Victoria Street | £ 300,000 | 0.10 KM |
| 16 Victoria Street | £ 325,600 | 0.10 KM |
| 13 Victoria Street | £ 350,000 | 0.10 KM |