Penn Street, Hackney, N1
By Chestertons Estate Agents
£ 1,000,000
Reviews
3 out of 5 stars
Chestertons Estate Agents says ..
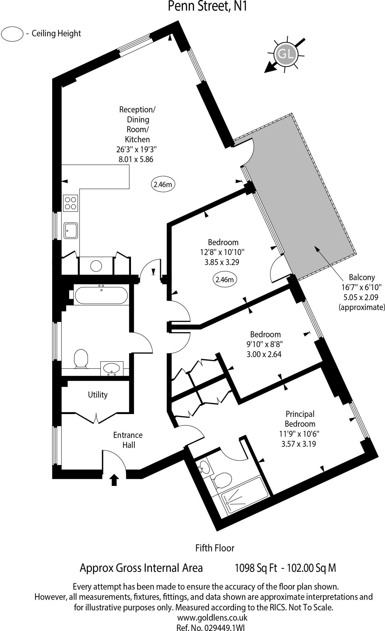
A bright and spacious design led three bedroom, two bathroom apartment set on the fifth floor of a small boutique development and overlooking the greenery of Shoreditch Park.
Property Oracle says ..
This is a modern 3-bedroom flat in the popular Hoxton area of London. The property is in excellent condition and benefits from a balcony. The flat is well-located for access to local amenities and transportation links. The price is above average for the area, but this is likely due to the condition of the property and its location.
Therefore, we give this property 6 / 10. *Disclaimer: This is our option and does constitute a recommendation or financial advice. Do your own research. *
- Price
- 6
- Condition
- 9
- Location
- 8
- Land
- 4
- Bedrooms
- 3
- Bathrooms
- 2
- Sqft (est)
- 848.88
The heatmap indicates the level of crime in the area. The color of the heatmap indicates the crime severity and recency.
Metrics Year-on-Year
- Average area value
- 804,500.00 £Decreased by 41.52 %
- Est sale value
- 935,465.76 £Decreased by 36.08 %
- Average area rental value
- 2,869.00 £/moIncreased by 1.88 %
- Est letting value
- 2,546.64 £/moUnchanged by 0.00 %
- Est rental Yield
- 4.28 %Increased by 73.98 %
- Crime Rate
- 4.00 %Unchanged by 0.00 %
Agent Activity
Chestertons Estate Agents created the listing.
Nearby Schools
| Name | Type | Ofsted | Distance |
|---|---|---|---|
| Rosemary Works School | Other Independent School | 0.12 KM | |
| Shoreditch Park Primary School | Community School | Outstanding | 0.15 KM |
| Hackney New Primary School | Free Schools | Outstanding | 0.38 KM |
| Comet Nursery School And Children'S Centre | Children's Centre | 0.51 KM | |
| Comet Nursery School And Children'S Centre | Local Authority Nursery School | Outstanding | 0.52 KM |
Images
Nearby Streets
| Name | Average Price | Average Sqft | Distance |
|---|---|---|---|
| Park Place | £ 730,833 | 0 | 0.00 KM |
| New North Road | £ 0 | 0 | 0.00 KM |
| Southgate Grove | £ 950,000 | 0 | 0.00 KM |
| Hullbridge Mews | £ 0 | 0 | 0.00 KM |
| Forston Street | £ 550,000 | 0 | 0.00 KM |
Nearby Transport
| Name | NLC | TLC | Distance |
|---|---|---|---|
| Haggerston | 1022 | HGG | 1.09 KM |
| Hoxton | 1023 | HOX | 1.18 KM |
| Old Street | 6003 | OLD | 1.21 KM |
| Essex Road | 6004 | EXR | 1.32 KM |
| Dalston Junction | 1443 | DLJ | 1.57 KM |
Nearby Listings
| Address | Price | Type | Score | Distance |
|---|---|---|---|---|
| Penn Street, Hackney, N1 | £ 1,000,000 | BUY | 6 / 10 | 0.00 KM |
| Penn Street, Hoxton, N1 | £ 1,250,000 | BUY | 6 / 10 | 0.00 KM |
| Penn Street, London, N1 | £ 630,000 | BUY | 7 / 10 | 0.01 KM |
| Hoxton House, London, N1 | £ 995,000 | BUY | 6 / 10 | 0.02 KM |
| Clift House, Lucan Path, N1 | £ 1,400,000 | BUY | Unknown | 0.02 KM |
Nearby Properties
| Address | Price | Distance |
|---|---|---|
| 76b Bridport Place | £ 800,000 | 0.17 KM |
| 74 Bridport Place | £ 450,000 | 0.17 KM |
| 84 Bridport Place | £ 1,960,000 | 0.17 KM |
| 82 Bridport Place | £ 1,522,500 | 0.17 KM |
| 88 Bridport Place | £ 1,675,000 | 0.17 KM |