Plot 1, 6 Foley Gardens, Bromsgrove, B60
By Arden Estates
£ 220,000
Reviews
3 out of 5 stars
Arden Estates says ..
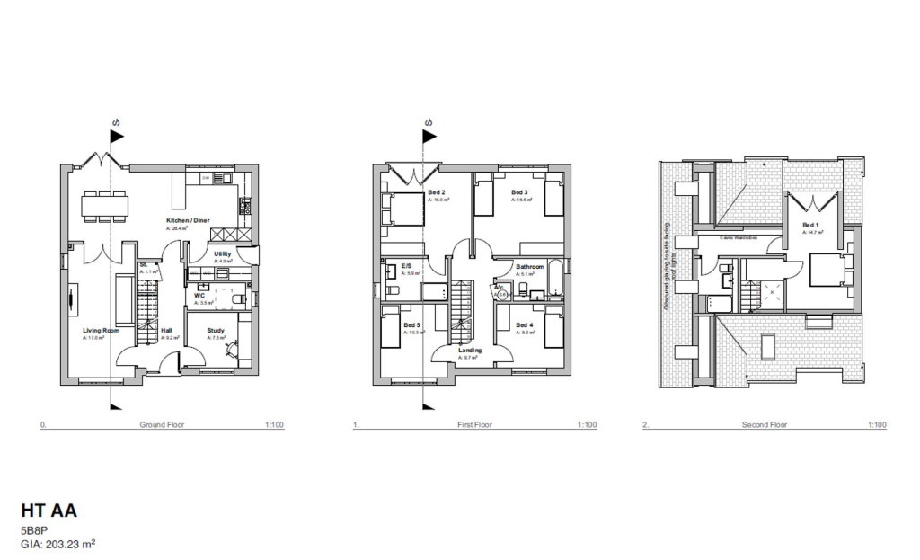
Development Opportunity with Granted Planning Permission - An exciting chance to acquire a prime plot of land, referred to as Plot 1, with full planning permission approved for the construction of a detached, five-bedroom home. Situated in the desirable semi-rural village of Stoke Prior, Bromsgro...
Property Oracle says ..
This is a plot of land that requires construction. It is located in a good area, close to schools and transport links. The price is significantly below the average for the area.
Therefore, we give this property 6 / 10. *Disclaimer: This is our option and does constitute a recommendation or financial advice. Do your own research. *
- Price
- 9
- Condition
- 2
- Location
- 7
- Land
- 8
- Bedrooms
- 5
- Bathrooms
- 2
The heatmap indicates the level of crime in the area. The color of the heatmap indicates the crime severity and recency.
Metrics Year-on-Year
- Average area value
- 283,333.00 £Decreased by 37.45 %
- Average area rental value
- 1,195.00 £/moDecreased by 32.68 %
- Est rental Yield
- 5.06 %Increased by 7.66 %
- Crime Rate
- 1.00 %Unchanged by 0.00 %
Agent Activity
Arden Estates created the listing.
Nearby Schools
| Name | Type | Ofsted | Distance |
|---|---|---|---|
| Stoke Prior First School | Community School | Outstanding | 0.93 KM |
| Lokrum Fields | Other Independent Special School | 2.52 KM | |
| St Peter'S Catholic First School | Academy Converter | Good | 2.55 KM |
| Sunny Fields Children'S Centre | Children's Centre | 2.56 KM | |
| Charford First School | Community School | Good | 2.56 KM |
Images
Nearby Streets
| Name | Average Price | Average Sqft | Distance |
|---|---|---|---|
| Redditch Road | £ 453,333 | 0 | 0.00 KM |
| Countinghouse Way | £ 0 | 0 | 0.00 KM |
| Farrier Close | £ 499,950 | 0 | 0.00 KM |
| Talbot Road | £ 115,000 | 0 | 0.00 KM |
| Verbena Close | £ 0 | 0 | 0.00 KM |
Nearby Transport
| Name | NLC | TLC | Distance |
|---|---|---|---|
| Bromsgrove | 4715 | BMV | 3.67 KM |
Nearby Listings
| Address | Price | Type | Score | Distance |
|---|---|---|---|---|
| Plot 1, 6 Foley Gardens, Bromsgrove, B60 | £ 220,000 | BUY | 6 / 10 | 0.00 KM |
| Plot 2, 6 Foley Gardens, Bromsgrove, B60 | £ 220,000 | BUY | 6 / 10 | 0.00 KM |
| Land, Foley Gardens, Stoke Prior, Bromsgrove, B60 4LD | £ 450,000 | BUY | 5 / 10 | 0.13 KM |
| Foley Gardens, Stoke Prior, Worcestershire, B60 | £ 495,000 | BUY | 7 / 10 | 0.14 KM |
| Hanbury Road, Stoke Prior, Bromsgrove. B60 4JX | £ 400,000 | BUY | 7 / 10 | 0.15 KM |
Nearby Properties
| Address | Price | Distance |
|---|---|---|
| 5 Foley Gardens | £ 270,000 | 0.01 KM |
| 11 Foley Gardens | £ 337,000 | 0.01 KM |
| 44a Foley Gardens | £ 240,000 | 0.01 KM |
| 44b Foley Gardens | £ 249,995 | 0.01 KM |
| 20 Foley Gardens | £ 265,000 | 0.01 KM |