MA
Woodvale, Kingsway, Gloucester
By Martin & Co
£ 260,000
Reviews
3 out of 5 stars
Martin & Co says ..
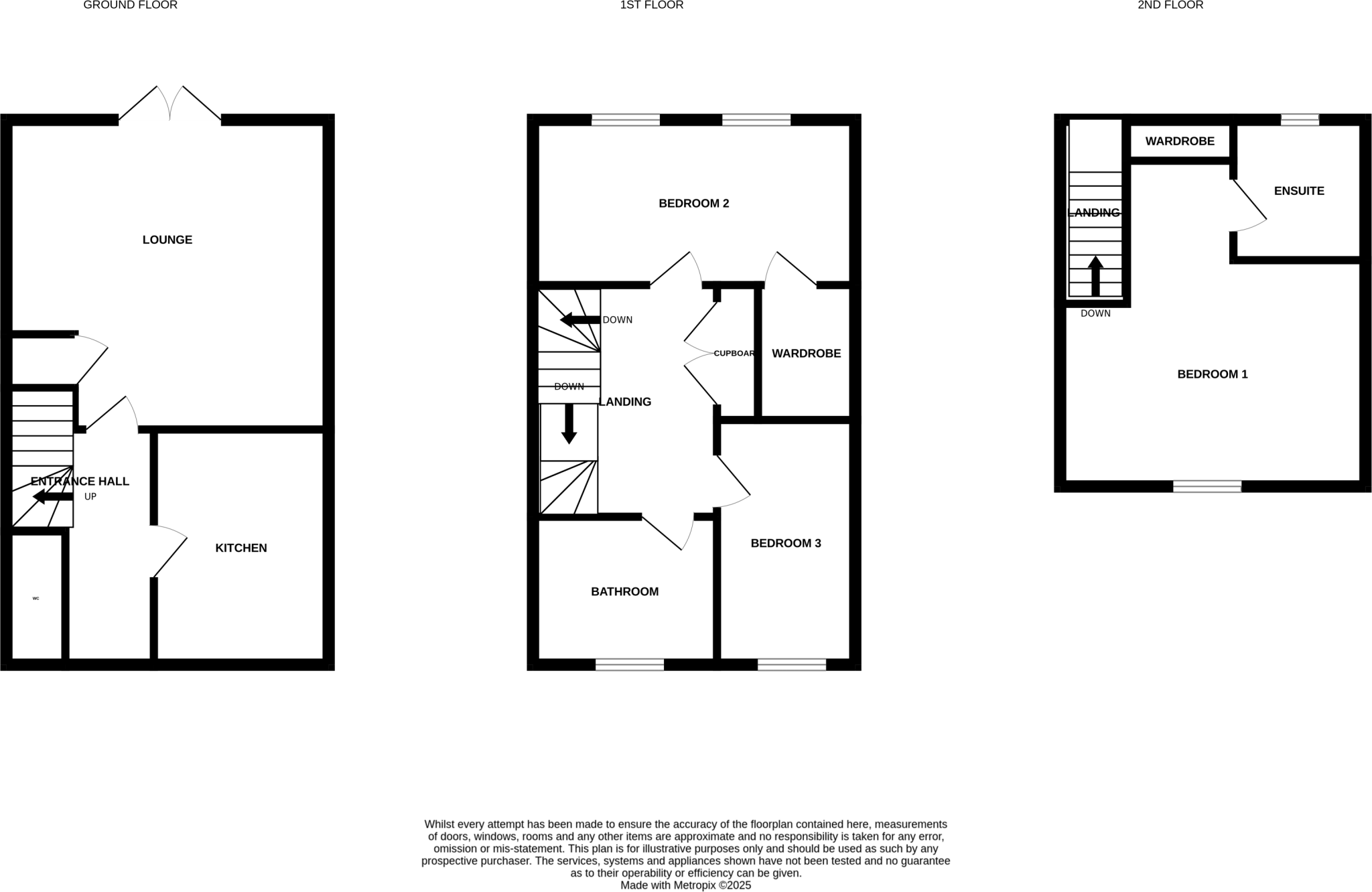
Ideal family home situated on the popular Kingsway estate Martin & Co are delighted to offer this well presented three bedroom semi-detached family home. In brief the property comprises an entrance hall, lounge, kitchen/breakfast room and W.C. Upstairs hosts two double bedrooms and a family b...
Property Oracle says ..
Therefore, we give this property 6 / 10. *Disclaimer: This is our option and does constitute a recommendation or financial advice. Do your own research. *
- Price
- 6
- Condition
- 7
- Location
- 7
- Land
- 6
- Bedrooms
- 3
- Bathrooms
- 2
- Sqft (est)
- 918.00
The heatmap indicates the level of crime in the area. The color of the heatmap indicates the crime severity and recency.
Metrics Year-on-Year
- Average area value
- 230,000.00 £Decreased by 2.16 %
- Est sale value
- 301,104.00 £Increased by 45.13 %
- Average area rental value
- 922.00 £/moDecreased by 12.52 %
- Est letting value
- 918.00 £/moUnchanged by 0.00 %
- Est rental Yield
- 4.81 %Decreased by 10.59 %
- Crime Rate
- 7.00 %Unchanged by 0.00 %
from 235,071.00 £
from 207,468.00 £
from 1,054.00 £/mo
from 918.00 £/mo
from 5.38 %
from 7.00 %
Agent Activity
Martin & Co created the listing.
Nearby Schools
| Name | Type | Ofsted | Distance |
|---|---|---|---|
| The Beacon Children'S Centre | Children's Centre | 0.23 KM | |
| Kingsway Primary School | Community School | Requires improvement | 0.53 KM |
| Holmleigh Park High School | Academy Sponsor Led | 0.87 KM | |
| Waterwells Primary Academy | Academy Sponsor Led | Requires improvement | 0.94 KM |
| Harewood Junior School | Foundation School | Good | 0.98 KM |
Images
Nearby Streets
| Name | Average Price | Average Sqft | Distance |
|---|---|---|---|
| Kingsway | £ 250,000 | 0 | 0.00 KM |
| Lakenheath | £ 235,000 | 0 | 0.00 KM |
| Prestwick Road | £ 0 | 0 | 0.00 KM |
| Cerney Walk Kingsway | £ 0 | 0 | 0.00 KM |
| Neatishead Road | £ 0 | 0 | 0.00 KM |
Nearby Transport
| Name | NLC | TLC | Distance |
|---|---|---|---|
| Gloucester | 4760 | GCR | 5.63 KM |
| Stonehouse | 4770 | SHU | 8.96 KM |
Nearby Listings
| Address | Price | Type | Score | Distance |
|---|---|---|---|---|
| Woodvale, Kingsway, Gloucester | £ 260,000 | BUY | 6 / 10 | 0.00 KM |
| Woodvale, Kingsway | £ 240,000 | BUY | 7 / 10 | 0.01 KM |
| Cosford Close Kingsway, Quedgeley, Gloucester, Gloucestershire, GL2 | £ 390,000 | BUY | Unknown | 0.09 KM |
| Cosford Close Kingsway, Quedgeley, GL2 | £ 270,000 | BUY | 6 / 10 | 0.10 KM |
| Holbeach Drive, Kingsway | £ 140,000 | BUY | Unknown | 0.12 KM |
Nearby Properties
| Address | Price | Distance |
|---|---|---|
| 65 Woodvale Kingsway | £ 173,796 | 0.08 KM |
| 135 Woodvale Kingsway | £ 162,000 | 0.08 KM |
| 137 Woodvale Kingsway | £ 207,950 | 0.08 KM |
| 73 Woodvale Kingsway | £ 275,000 | 0.08 KM |
| 81 Woodvale Kingsway | £ 176,000 | 0.08 KM |