Tredegar Terrace, London
By Sovereign House Estates
£ 950,000
Reviews
4 out of 5 stars
Sovereign House Estates says ..
Nestled just a stone´s throw from the peaceful and picturesque Tredegar Square, this beautifully converted property offers a rare opportunity to live in one of the area´s most tranquil and sought after locations. Formerly a commercial building with a variety of uses over the years, it n...
Property Oracle says ..
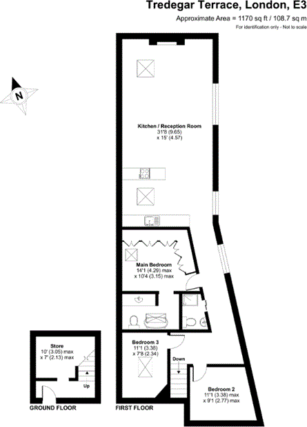
Tredegar Terrace is located in the Bow West area of Tower Hamlets, East London. The property is an apartment with three bedrooms and two bathrooms, spanning 873 square feet. The list price is £950,000.
The location benefits from proximity to several well-regarded schools, including Malmesbury Primary School and Beatrice Tate School, both rated ‘Good’ and ‘Outstanding’ respectively by Ofsted. Several Overground stations are within a reasonable distance, providing convenient access to public transportation. The area’s average house price is £686,481, and the average price per square foot is £801.
Based on the provided images, the property appears to be in excellent condition. It has been recently renovated or refurbished to a high standard, featuring a modern kitchen and bathrooms. The overall aesthetic is contemporary, yet retains some character features. The property benefits from a good amount of natural light.
While the plot size is not explicitly stated, the external images suggest a small, private garden or courtyard area.
Considering the property’s excellent condition, desirable location, and proximity to amenities and transportation, the list price of £950,000 appears to be in line with, or slightly above, the average prices for similar properties in the area. However, the lack of square footage data for comparable properties makes a definitive price comparison challenging. The property’s modern upgrades and high-quality finish likely justify the higher price point compared to the average price per square foot in the area.
Therefore, we give this property 8 / 10. *Disclaimer: This is our option and does constitute a recommendation or financial advice. Do your own research. *
- Price
- 8
- Condition
- 9
- Location
- 9
- Land
- 6
- Bedrooms
- 3
- Bathrooms
- 2
- Sqft (est)
- 873.00
- Lot (est)
- 1,170.00
The heatmap indicates the level of crime in the area. The color of the heatmap indicates the crime severity and recency.
Metrics Year-on-Year
- Average area value
- 1,191,667.00 £Increased by 41.72 %
- Est sale value
- 730,701.00 £Decreased by 13.08 %
- Average area rental value
- 2,142.00 £/moDecreased by 20.75 %
- Est letting value
- 873.00 £/moDecreased by 66.67 %
- Est rental Yield
- 2.16 %Decreased by 44.04 %
- Crime Rate
- 3.00 %Unchanged by 0.00 %
Agent Activity
Sovereign House Estates created the listing.
Nearby Schools
| Name | Type | Ofsted | Distance |
|---|---|---|---|
| Malmesbury Primary School | Community School | Good | 0.33 KM |
| Central Foundation Girls' School | Voluntary Aided School | Good | 0.44 KM |
| Olga Children'S Centre | Children's Centre Linked Site | 0.51 KM | |
| Olga Primary School | Community School | Good | 0.51 KM |
| Beatrice Tate School | Community Special School | Outstanding | 0.54 KM |
Images
Nearby Streets
| Name | Average Price | Average Sqft | Distance |
|---|---|---|---|
| Rhondda Grove | £ 0 | 0 | 0.00 KM |
| Malmesbury Road | £ 475,000 | 0 | 0.00 KM |
| Maplin Street | £ 0 | 0 | 0.00 KM |
| Balmer Road | £ 0 | 0 | 0.00 KM |
| Coborn Mews | £ 0 | 0 | 0.00 KM |
Nearby Transport
| Name | NLC | TLC | Distance |
|---|---|---|---|
| Hackney Wick | 6978 | HKW | 1.90 KM |
| Limehouse | 7491 | LHS | 1.92 KM |
| Homerton | 6979 | HMN | 2.37 KM |
| Cambridge Heath | 6962 | CBH | 2.77 KM |
| Bethnal Green Rail | 6961 | BET | 3.03 KM |
Nearby Listings
| Address | Price | Type | Score | Distance |
|---|---|---|---|---|
| Tredegar Terrace, London | £ 950,000 | BUY | 8 / 10 | 0.00 KM |
| Tredegar Terrace, London, E3 | £ 1,200,000 | BUY | 7 / 10 | 0.01 KM |
| Tredegar Terrace, Bow | £ 1,250,000 | BUY | 7 / 10 | 0.03 KM |
| Lichfield Road, Mile End, E3 | £ 1,100,000 | BUY | 7 / 10 | 0.05 KM |
| College Terrace, Mile End, E3 | £ 450,000 | BUY | 7 / 10 | 0.06 KM |
Nearby Properties
| Address | Price | Distance |
|---|---|---|
| 6 Tredegar Terrace | £ 440,000 | 0.00 KM |
| 10 Tredegar Terrace | £ 390,000 | 0.00 KM |
| 8 Tredegar Terrace | £ 1,145,000 | 0.00 KM |
| 1 Tredegar Terrace | £ 1,066,000 | 0.00 KM |
| 7 Tredegar Terrace | £ 335,000 | 0.00 KM |