Aspect Property says ..
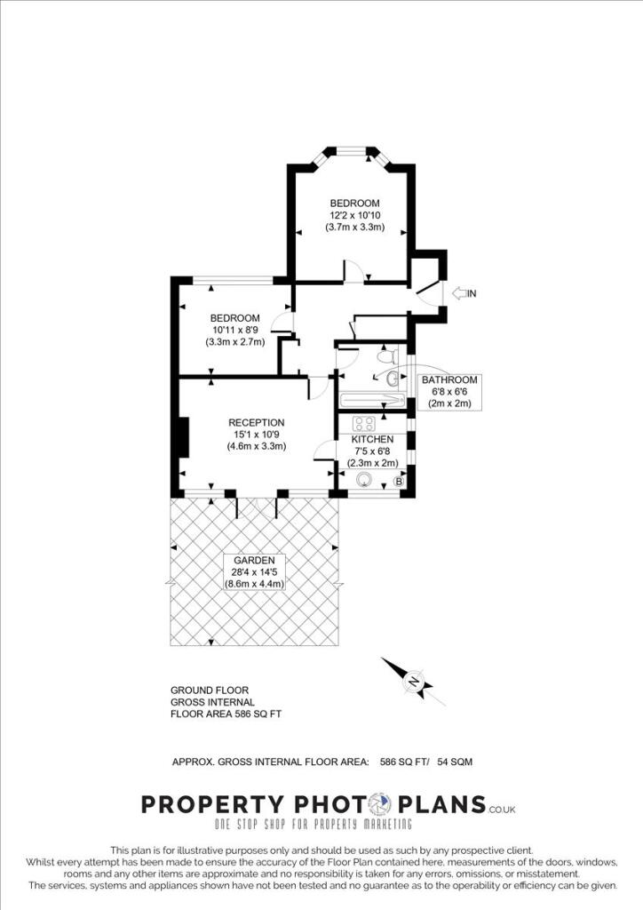
A newly refurbished two double bedroom ground floor maisonette. Offered with no chain, a long lease, private rear garden and off street parking to the rear.
Property Oracle says ..
This two-bedroom apartment in Wembley presents a good opportunity for buyers. Its location offers convenient access to transportation and schools, making it appealing to both families and commuters. The property’s well-maintained condition and private garden add to its desirability. Considering the asking price in relation to the area’s average, this apartment appears to offer good value for money. The apartment has been modernised and is in good condition.
Therefore, we give this property 7 / 10. *Disclaimer: This is our option and does constitute a recommendation or financial advice. Do your own research. *
- Price
- 8
- Condition
- 8
- Location
- 7
- Land
- 7
- Bedrooms
- 2
- Bathrooms
- 1
The heatmap indicates the level of crime in the area. The color of the heatmap indicates the crime severity and recency.
Metrics Year-on-Year
- Average area value
- 567,500.00 £Increased by 23.85 %
- Average area rental value
- 2,508.00 £/moIncreased by 2.66 %
- Est rental Yield
- 5.30 %Decreased by 17.19 %
- Crime Rate
- 1.00 %Unchanged by 0.00 %
Agent Activity
Aspect Property created the listing.
Nearby Schools
| Name | Type | Ofsted | Distance |
|---|---|---|---|
| Elsley Primary School | Community School | Good | 0.46 KM |
| St Joseph'S Rc Infant School | Voluntary Aided School | Outstanding | 0.51 KM |
| St Joseph Rc Junior School | Voluntary Aided School | Outstanding | 0.54 KM |
| New Level Academy | Other Independent School | Requires improvement | 0.82 KM |
| Ark Elvin Academy | Academy Sponsor Led | Good | 0.88 KM |
Images
Nearby Streets
| Name | Average Price | Average Sqft | Distance |
|---|---|---|---|
| Wembley Triangle | £ 0 | 0 | 0.00 KM |
| Lomond Close | £ 550,000 | 0 | 0.00 KM |
| The Grange | £ 820,000 | 0 | 0.00 KM |
| Olympic Steps | £ 0 | 0 | 0.00 KM |
| Laburnum Close | £ 330,000 | 0 | 0.00 KM |
Nearby Transport
| Name | NLC | TLC | Distance |
|---|---|---|---|
| Wembley Stadium | 1509 | WCX | 0.48 KM |
| Stonebridge Park | 1454 | SBP | 1.11 KM |
| Wembley Central | 1423 | WMB | 1.47 KM |
| North Wembley | 1422 | NWB | 2.64 KM |
| Harlesden | 1521 | HDN | 3.26 KM |
Nearby Listings
| Address | Price | Type | Score | Distance |
|---|---|---|---|---|
| Harrow Road, Wembley, HA9 | £ 365,000 | BUY | 7 / 10 | 0.00 KM |
| Neeld Crescent, Wembley HA9 6LW | £ 700,000 | BUY | 7 / 10 | 0.11 KM |
| Neeld Crescent, Wembley Park, Wembley, HA9 | £ 775,000 | BUY | 7 / 10 | 0.13 KM |
| Neeld Crescent, Wembley | £ 750,000 | BUY | 6 / 10 | 0.14 KM |
| Neeld Crescent, Wembley, Middlesex | £ 625,000 | BUY | 6 / 10 | 0.16 KM |
Nearby Properties
| Address | Price | Distance |
|---|---|---|
| 241 Harrow Road | £ 63,000 | 0.02 KM |
| 245 Harrow Road | £ 162,000 | 0.02 KM |
| 243 Harrow Road | £ 105,000 | 0.02 KM |
| 239 Harrow Road | £ 102,000 | 0.02 KM |
| 257a Harrow Road | £ 59,200 | 0.02 KM |