Green Fields, Cheltenham Road East, Churchdown
By Naylor Powell
£ 780,000
Reviews
3 out of 5 stars
Naylor Powell says ..
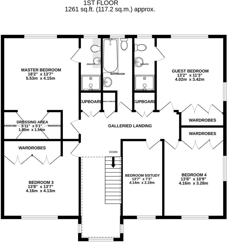
A large detached family home with five bedrooms that was purpose-built in the barn style and situated in a rural area on the outskirts of Churchdown village. The property has two spacious reception areas, a family room, and a kitchen/breakfast area with French doors that open onto the beautifully...
Property Oracle says ..
This is a well-presented detached property in Churchdown, offering five bedrooms and three bathrooms. The house benefits from a large garden with a shed, providing ample outdoor space. The interior appears to be in good condition, with a modern kitchen and bathrooms. The location is convenient for local schools and amenities, with Gloucester easily accessible. The price seems reasonable given the property’s size, condition, and location, making it an attractive family home.
Therefore, we give this property 7 / 10. *Disclaimer: This is our option and does constitute a recommendation or financial advice. Do your own research. *
- Price
- 7
- Condition
- 8
- Location
- 7
- Land
- 9
- Bedrooms
- 5
- Bathrooms
- 3
- Sqft (est)
- 1,808.59
The heatmap indicates the level of crime in the area. The color of the heatmap indicates the crime severity and recency.
Metrics Year-on-Year
- Average area value
- 247,857.00 £Increased by 20.94 %
- Est sale value
- 515,448.15 £Increased by 22.84 %
- Average area rental value
- 1,019.00 £/moIncreased by 16.72 %
- Est letting value
- 1,808.59 £/mo
- Est rental Yield
- 4.93 %Decreased by 3.52 %
- Crime Rate
- 3.00 %Unchanged by 0.00 %
Agent Activity
Naylor Powell created the listing.
Nearby Schools
| Name | Type | Ofsted | Distance |
|---|---|---|---|
| St Mary'S Catholic Primary School | Academy Converter | 1.15 KM | |
| Jigsaw Children'S Centre | Children's Centre | 1.58 KM | |
| Innsworth Infant School | Community School | Good | 1.69 KM |
| Churchdown Parton Manor Infant School | Community School | Good | 1.71 KM |
| Churchdown Parton Manor Junior School | Community School | Good | 1.73 KM |
Images
Nearby Streets
| Name | Average Price | Average Sqft | Distance |
|---|---|---|---|
| Fairways Drive | £ 725,000 | 0 | 0.00 KM |
| Trafalgar Drive | £ 0 | 0 | 0.00 KM |
| Compton Close | £ 400,000 | 0 | 0.00 KM |
| Essex Close | £ 280,000 | 0 | 0.00 KM |
| Drake Close | £ 315,000 | 0 | 0.00 KM |
Nearby Transport
| Name | NLC | TLC | Distance |
|---|---|---|---|
| Gloucester | 4760 | GCR | 6.28 KM |
Nearby Listings
| Address | Price | Type | Score | Distance |
|---|---|---|---|---|
| Green Fields, Cheltenham Road East, Churchdown | £ 780,000 | BUY | 7 / 10 | 0.00 KM |
| Green Fields, Cheltenham Road East, Gloucester | £ 899,950 | BUY | 8 / 10 | 0.00 KM |
| 1 Greenfields, Cheltenham Road East, Gloucester | £ 1,195,000 | BUY | 7 / 10 | 0.00 KM |
| Greenfields, Cheltenham Road East, Gloucester, GL2 | £ 950,000 | BUY | 7 / 10 | 0.02 KM |
| Tallis Road, Churchdown, Gloucester | £ 250,000 | BUY | 7 / 10 | 0.27 KM |
Nearby Properties
| Address | Price | Distance |
|---|---|---|
| 5 Fairways Drive | £ 470,000 | 0.12 KM |
| 1 Fairways Drive | £ 265,000 | 0.12 KM |
| 3 Fairways Drive | £ 310,000 | 0.12 KM |
| 2 Fairways Drive | £ 375,000 | 0.12 KM |
| 34 Grenville Close | £ 118,000 | 0.21 KM |