Lydney Close, Southfields, London, SW19
By Foxtons
£ 425,000
Reviews
3 out of 5 stars
Foxtons says ..
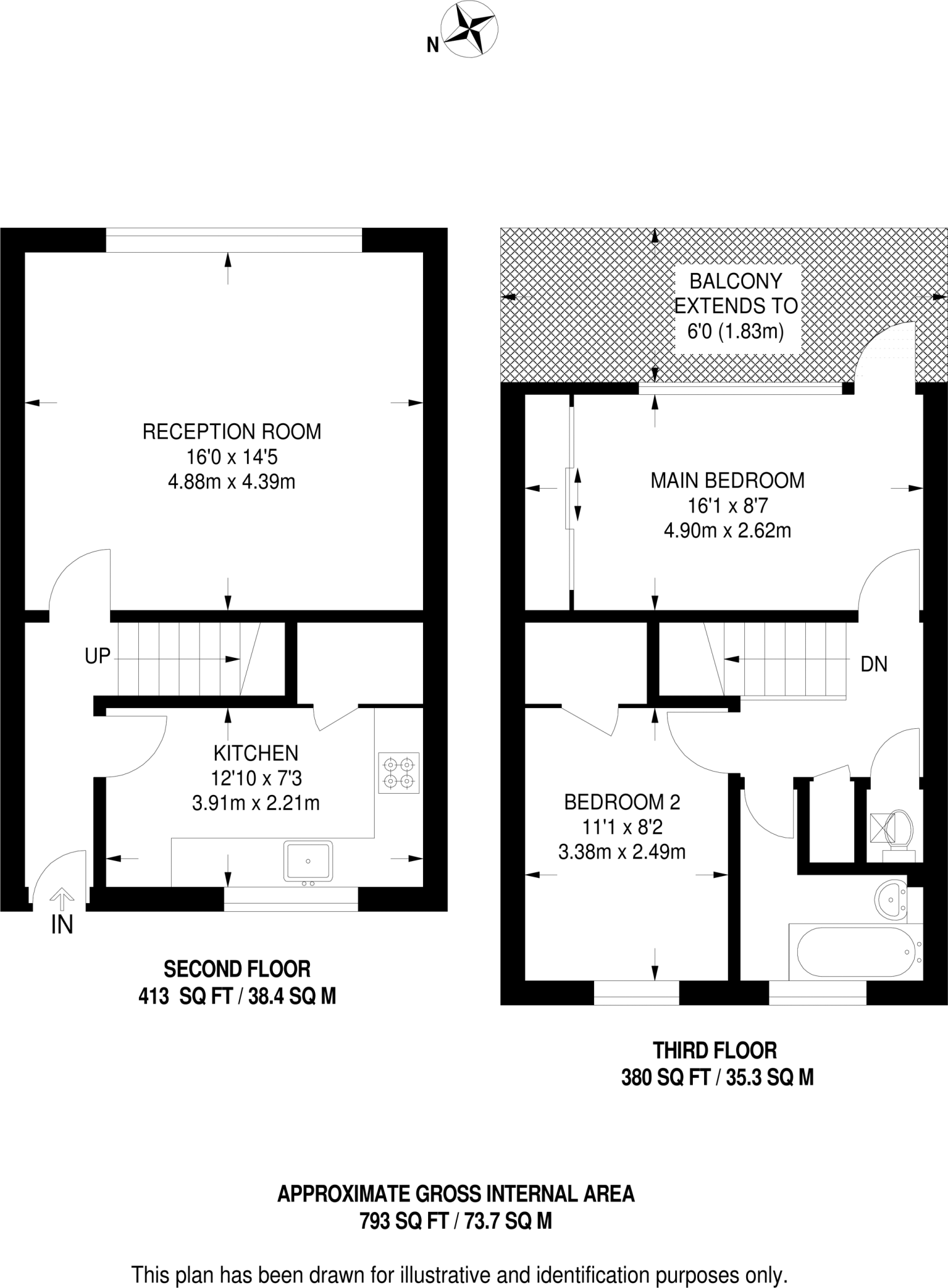
Featuring a large private balcony overlooking Wimbledon Park, this fantastic 2 bedroom split-level flat offers well proportioned living space in a peaceful residential area.
Property Oracle says ..
This property is a 2-bedroom flat located in Southfields, London, within the SW19 postcode. The area benefits from being close to several highly-rated primary schools, including Albemarle Primary School and Victoria Drive Primary Pupil Referral Unit, both with Outstanding Ofsted ratings. Transport links are also convenient, with several South Western Railway stations within a reasonable distance, offering connections to central London. The flat itself is situated in a block with external communal space, and the images reveal a small balcony. The interior appears to be in reasonable condition, though some updating may be desirable to enhance its appeal. The kitchen and bathroom show signs of age, and the overall style is dated. The property is listed at £425,000, which is below the average price for the area (£597,589) and the average price per square foot (£713) is also lower than the average for the area. However, without knowing the size of the other properties in the area, it is difficult to give an accurate assessment of the price. Considering the dated interior, the price may be reasonable for a buyer looking for a property that requires some modernisation. The property is within walking distance of Southfields tube station and has good transport links to central London. The area is known for its family-friendly atmosphere and green spaces.
Therefore, we give this property 6 / 10. *Disclaimer: This is our option and does constitute a recommendation or financial advice. Do your own research. *
- Price
- 7
- Condition
- 6
- Location
- 8
- Land
- 3
- Bedrooms
- 2
- Bathrooms
- 1
- Sqft (est)
- 793.00
The heatmap indicates the level of crime in the area. The color of the heatmap indicates the crime severity and recency.
Metrics Year-on-Year
- Average area value
- 522,333.00 £Decreased by 15.71 %
- Est sale value
- 567,788.00 £Increased by 4.22 %
- Average area rental value
- 2,481.00 £/moDecreased by 21.34 %
- Est letting value
- 2,379.00 £/moUnchanged by 0.00 %
- Est rental Yield
- 5.70 %Decreased by 6.71 %
- Crime Rate
- 3.00 %Unchanged by 0.00 %
Agent Activity
Foxtons created the listing.
Nearby Schools
| Name | Type | Ofsted | Distance |
|---|---|---|---|
| Albemarle Primary School | Foundation School | Outstanding | 0.16 KM |
| Linden Lodge School | Academy Special Converter | 0.27 KM | |
| Victoria Drive Primary Pupil Referral Unit | Pupil Referral Unit | Outstanding | 0.53 KM |
| Southmead Primary School And Centre For Children & Families | Children's Centre | 0.59 KM | |
| Southmead Primary School | Community School | Good | 0.59 KM |
Images
Nearby Streets
| Name | Average Price | Average Sqft | Distance |
|---|---|---|---|
| Southfields Court | £ 0 | 0 | 0.00 KM |
| Royal Close | £ 0 | 0 | 0.00 KM |
| Belmont Mews | £ 0 | 0 | 0.00 KM |
| Castle Close | £ 0 | 0 | 0.00 KM |
| Withycombe Road | £ 1,800,000 | 0 | 0.00 KM |
Nearby Transport
| Name | NLC | TLC | Distance |
|---|---|---|---|
| Putney | 5603 | PUT | 2.26 KM |
| Wimbledon | 5578 | WIM | 2.34 KM |
| Earlsfield | 5584 | EAD | 2.74 KM |
| Haydons Road | 5289 | HYR | 3.16 KM |
| Wandsworth Town | 5576 | WNT | 3.47 KM |
Nearby Listings
| Address | Price | Type | Score | Distance |
|---|---|---|---|---|
| Lydney Close, Southfields, London, SW19 | £ 425,000 | BUY | 6 / 10 | 0.00 KM |
| Lydney Close, London | £ 439,950 | BUY | 7 / 10 | 0.03 KM |
| Lydney Close, Southfields, London | £ 475,000 | BUY | 7 / 10 | 0.03 KM |
| Lydney Close, Southfields, London, SW19 | £ 450,000 | BUY | 6 / 10 | 0.05 KM |
| Peterstow Close, London | £ 685,000 | BUY | 6 / 10 | 0.05 KM |
Nearby Properties
| Address | Price | Distance |
|---|---|---|
| 59 Lydney Close | £ 430,900 | 0.02 KM |
| 39 Lydney Close | £ 215,000 | 0.02 KM |
| 5 Lydney Close | £ 208,000 | 0.02 KM |
| 31 Lydney Close | £ 385,000 | 0.02 KM |
| 15 Lydney Close | £ 400,000 | 0.02 KM |