Lingfield Close, Enfield, Middlesex, EN1
By Atkinsons Residential
£ 280,000
Reviews
3 out of 5 stars
Atkinsons Residential says ..
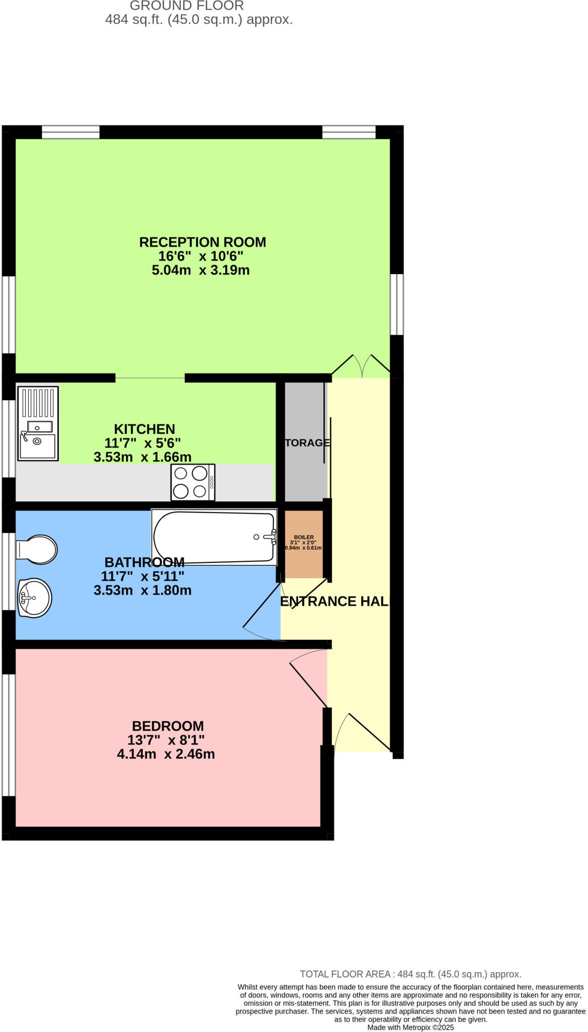
**LONG LEASE** Bright one bedroom ground floor apartment with communal gardens, resident parking, and garage. Modern, well-maintained, and cosy. Ideal for first-time buyers or investors. Close to local amenities and transport links.
Property Oracle says ..
Therefore, we give this property 6 / 10. *Disclaimer: This is our option and does constitute a recommendation or financial advice. Do your own research. *
- Price
- 5
- Condition
- 6
- Location
- 7
- Land
- 7
- Bedrooms
- 1
- Bathrooms
- 1
- Sqft (est)
- 484.00
The heatmap indicates the level of crime in the area. The color of the heatmap indicates the crime severity and recency.
Metrics Year-on-Year
- Average area value
- 681,429.00 £Increased by 14.18 %
- Est sale value
- 327,184.00 £Increased by 59.81 %
- Average area rental value
- 1,986.00 £/moDecreased by 15.60 %
- Est letting value
- 484.00 £/moUnchanged by 0.00 %
- Est rental Yield
- 3.50 %Decreased by 26.00 %
- Crime Rate
- 4.00 %Unchanged by 0.00 %
from 596,801.00 £
from 204,732.00 £
from 2,353.00 £/mo
from 484.00 £/mo
from 4.73 %
from 4.00 %
Agent Activity
Atkinsons Residential created the listing.
Nearby Schools
| Name | Type | Ofsted | Distance |
|---|---|---|---|
| Raglan Infant School | Community School | Good | 0.64 KM |
| The Raglan Junior School | Community School | Good | 0.64 KM |
| Edmonton County School | Academy Converter | Good | 1.01 KM |
| Bush Hill Park Children'S Centre | Children's Centre | 1.08 KM | |
| George Spicer Primary School | Community School | Good | 1.37 KM |
Images
Nearby Streets
| Name | Average Price | Average Sqft | Distance |
|---|---|---|---|
| Night Enterance | £ 0 | 0 | 0.00 KM |
| Woodfield Close | £ 0 | 0 | 0.00 KM |
| Amberley Gardens | £ 0 | 0 | 0.00 KM |
| A10 | £ 0 | 0 | 0.00 KM |
| St Mark's Road | £ 370,000 | 0 | 0.00 KM |
Nearby Transport
| Name | NLC | TLC | Distance |
|---|---|---|---|
| Bush Hill Park | 6913 | BHK | 0.70 KM |
| Enfield Town | 6959 | ENF | 1.24 KM |
| Enfield Chase | 6010 | ENC | 2.12 KM |
| Grange Park | 6029 | GPK | 2.42 KM |
| Edmonton Green | 6941 | EDR | 2.44 KM |
Nearby Listings
| Address | Price | Type | Score | Distance |
|---|---|---|---|---|
| Lingfield Close, Enfield, Middlesex, EN1 | £ 280,000 | BUY | 6 / 10 | 0.00 KM |
| Lingfield Close, London, EN1 | £ 280,000 | BUY | 5 / 10 | 0.01 KM |
| Winchester Close, London, EN1 | £ 385,000 | BUY | 7 / 10 | 0.08 KM |
| Winchester Close, ENFIELD | £ 350,000 | BUY | Unknown | 0.08 KM |
| Winchester Close, Enfield, EN1 | £ 375,000 | BUY | 6 / 10 | 0.08 KM |
Nearby Properties
| Address | Price | Distance |
|---|---|---|
| 20 Lingfield Close | £ 166,000 | 0.01 KM |
| 6 Lingfield Close | £ 215,000 | 0.01 KM |
| 17 Lingfield Close | £ 63,995 | 0.01 KM |
| 15 Lingfield Close | £ 168,000 | 0.04 KM |
| 1 Lingfield Close | £ 196,500 | 0.04 KM |