Burchell Edwards says ..
RARE INVESTMENT OPPORTUNITY!! SIX ROOM HMO !!! FINISHED TO HIGH STANDARD !!! CLOSE TO TOWN CENTRE !!! We at Burchell Edwards are delighted to offer to the market this well presented home that has been converted to a six room HMO and is ready for a new investor to enjoy.
Property Oracle says ..
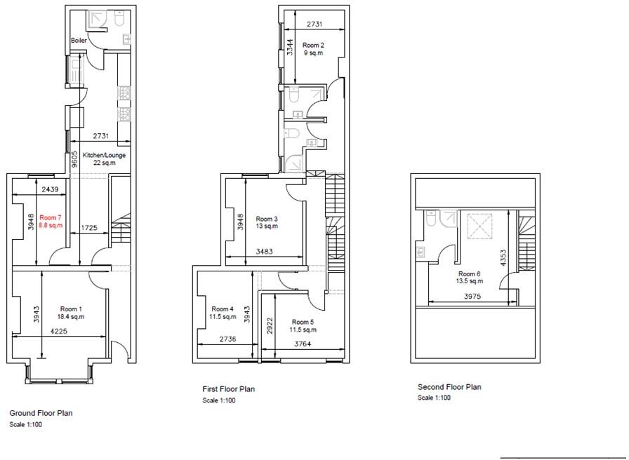
This is a six-bedroom terraced house on Stanley Street, Ilkeston. The property has been modernised internally, with a contemporary kitchen and bathrooms. It offers ample living space, with six bedrooms and four bathrooms. The property benefits from its proximity to local schools and transport links. While the garden is small, it provides some outdoor space. The property appears to be in generally good condition, although some minor decluttering and maintenance may be beneficial. The price seems reasonable in the context of the local market and the size of the property.
Therefore, we give this property 6 / 10. *Disclaimer: This is our option and does constitute a recommendation or financial advice. Do your own research. *
- Price
- 7
- Condition
- 7
- Location
- 7
- Land
- 4
- Bedrooms
- 6
- Bathrooms
- 4
The heatmap indicates the level of crime in the area. The color of the heatmap indicates the crime severity and recency.
Metrics Year-on-Year
- Average area value
- 415,495.00 £Increased by 26.58 %
- Average area rental value
- 1,128.00 £/moDecreased by 9.62 %
- Est rental Yield
- 3.26 %Decreased by 28.51 %
- Crime Rate
- 5.00 %Unchanged by 0.00 %
Agent Activity
Burchell Edwards created the listing.
Nearby Schools
| Name | Type | Ofsted | Distance |
|---|---|---|---|
| St Thomas Catholic Voluntary Academy | Academy Converter | 0.35 KM | |
| Field House Infant School | Academy Converter | 0.45 KM | |
| Hallam Fields Junior School | Community School | Good | 0.86 KM |
| Chaucer Infant School | Academy Converter | 0.87 KM | |
| Kensington Junior Academy | Academy Converter | 1.01 KM |
Images
Nearby Streets
| Name | Average Price | Average Sqft | Distance |
|---|---|---|---|
| Church View | £ 260,000 | 0 | 0.00 KM |
| Pedley Street | £ 425,000 | 0 | 0.00 KM |
| Chalons Way | £ 210,000 | 0 | 0.00 KM |
| Queen's Drive | £ 220,000 | 0 | 0.00 KM |
| Eaton Avenue | £ 0 | 0 | 0.00 KM |
Nearby Transport
| Name | NLC | TLC | Distance |
|---|---|---|---|
| Ilkeston | 7783 | ILN | 2.20 KM |
| Langley Mill | 1761 | LGM | 6.42 KM |
| Long Eaton | 1829 | LGE | 9.20 KM |
Nearby Listings
| Address | Price | Type | Score | Distance |
|---|---|---|---|---|
| Stanley Street, ILKESTON | £ 350,000 | BUY | 7 / 10 | 0.00 KM |
| Stanley Street, Ilkeston | £ 325,000 | BUY | 6 / 10 | 0.00 KM |
| Union Road, Ilkeston | £ 145,000 | BUY | 6 / 10 | 0.07 KM |
| Black Hills Drive, Ilkeston, Derbyshire | £ 210,000 | BUY | 7 / 10 | 0.11 KM |
| Stanton Road, Ilkeston, Derbyshire, DE7 | £ 150,000 | BUY | 5 / 10 | 0.19 KM |
Nearby Properties
| Address | Price | Distance |
|---|---|---|
| 11 Stanley Street | £ 159,950 | 0.00 KM |
| 22 Stanley Street | £ 150,000 | 0.00 KM |
| 9 Stanley Street | £ 250,000 | 0.00 KM |
| 18 Stanley Street | £ 105,000 | 0.00 KM |
| 16 Stanley Street | £ 144,000 | 0.00 KM |