Haycroft Road, Brixton Hill, London, SW2
By Foxtons
£ 785,000
Reviews
3 out of 5 stars
Foxtons says ..
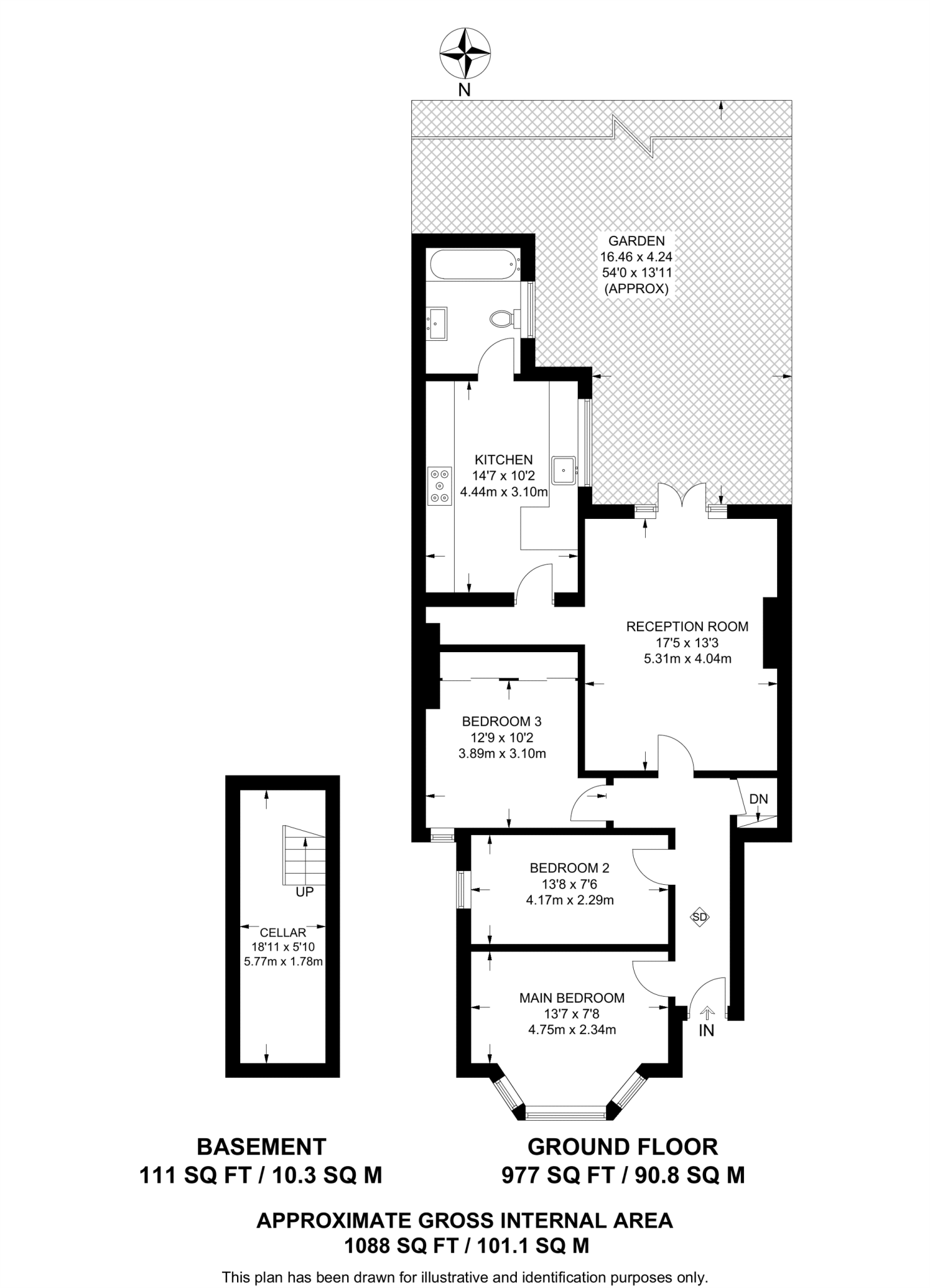
Set on the ground floor, this 3 bedroom flat boasts stylish accommodation including a large reception room, a contemporary kitchen and a delightful private garden with a hot tub.
Property Oracle says ..
This three-bedroom flat is situated on Haycroft Road in Brixton Hill, a vibrant and popular area of South London. The property benefits from a good location, being within reasonable proximity to Brixton station (Southeastern and Victoria lines), offering convenient access to central London and other parts of the city. There are also several highly-rated schools nearby, including Sudbourne Primary School (Outstanding Ofsted rating) and Trinity Academy (Good Ofsted rating), making it an attractive option for families. The flat itself appears to be in good condition, with modern amenities and a well-maintained garden. The images show a recently updated interior with a contemporary aesthetic. The list price of £785,000 is slightly above the average price for the area (£567,253), but considering the size (1,088 sq ft), the good condition, and the desirable location, it may represent reasonable value for money, especially when compared to similar properties in the immediate vicinity. The presence of a garden is also a significant advantage in this area, adding to the overall appeal.
Therefore, we give this property 7 / 10. *Disclaimer: This is our option and does constitute a recommendation or financial advice. Do your own research. *
- Price
- 7
- Condition
- 8
- Location
- 9
- Land
- 7
- Bedrooms
- 3
- Bathrooms
- 1
- Sqft (est)
- 1,088.00
The heatmap indicates the level of crime in the area. The color of the heatmap indicates the crime severity and recency.
Metrics Year-on-Year
- Average area value
- 695,454.00 £Increased by 5.83 %
- Est sale value
- 1,179,392.00 £Increased by 95.67 %
- Average area rental value
- 2,015.00 £/moDecreased by 9.96 %
- Est letting value
- 3,264.00 £/moIncreased by 200.00 %
- Est rental Yield
- 3.48 %Decreased by 14.91 %
- Crime Rate
- 4.00 %Unchanged by 0.00 %
Agent Activity
Foxtons created the listing.
Nearby Schools
| Name | Type | Ofsted | Distance |
|---|---|---|---|
| Corpus Christi Catholic Primary School | Academy Converter | 0.44 KM | |
| Trinity Academy | Free Schools | Good | 0.51 KM |
| South Bank Utc | University Technical College | Requires improvement | 0.51 KM |
| Harris Clapham Sixth Form | Free Schools 16 To 19 | 0.53 KM | |
| Sudbourne Primary School | Community School | Outstanding | 0.60 KM |
Images
Nearby Streets
| Name | Average Price | Average Sqft | Distance |
|---|---|---|---|
| Waterworks Road | £ 0 | 0 | 0.00 KM |
| Ellerslie Square | £ 0 | 0 | 0.00 KM |
| Lyham Road | £ 0 | 0 | 0.00 KM |
| King's Avenue | £ 0 | 0 | 0.00 KM |
| Brixton Hill | £ 445,833 | 0 | 0.00 KM |
Nearby Transport
| Name | NLC | TLC | Distance |
|---|---|---|---|
| Brixton | 5081 | BRX | 1.37 KM |
| Clapham High Street | 5301 | CLP | 1.41 KM |
| Streatham Hill | 5435 | SRH | 2.01 KM |
| Wandsworth Road | 5372 | WWR | 2.25 KM |
| Herne Hill | 5066 | HNH | 2.43 KM |
Nearby Listings
| Address | Price | Type | Score | Distance |
|---|---|---|---|---|
| Haycroft Road, Brixton, London, SW2 | £ 700,000 | BUY | 7 / 10 | 0.00 KM |
| Haycroft Road, Brixton Hill, London, SW2 | £ 785,000 | BUY | 7 / 10 | 0.00 KM |
| Lambert Road, London, SW2 | £ 675,000 | BUY | 5 / 10 | 0.05 KM |
| Lambert Road, Brixton, London | £ 450,000 | BUY | 6 / 10 | 0.05 KM |
| Lambert Road, Brixton, London | £ 500,000 | BUY | 8 / 10 | 0.05 KM |
Nearby Properties
| Address | Price | Distance |
|---|---|---|
| 21 Haycroft Road | £ 750,000 | 0.03 KM |
| 13a Haycroft Road | £ 650,000 | 0.03 KM |
| 3 Haycroft Road | £ 1,075,000 | 0.03 KM |
| 5 Haycroft Road | £ 310,000 | 0.03 KM |
| 13 Haycroft Road | £ 310,000 | 0.03 KM |