Goundrys says ..
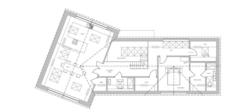
A rare opportunity to acquire a large and individual new build home with a choice of finishes to suit your taste. Situated on quiet lane on a good sized plot and offering a spacious living room, wonderful open plan kitchen/dining area, 4 double bedrooms with the master benefitting ...
Property Oracle says ..
This new build property in Wheal Rose, Redruth, Cornwall is presented as a modern, high-specification home. The architectural design is contemporary, featuring a striking combination of materials and large windows, maximizing natural light. The interior renders showcase a spacious and well-designed layout, with an open-plan living area, high-end finishes, and a generous number of bedrooms and bathrooms (4 bedrooms and 5 bathrooms). The property benefits from a substantial plot of land, providing ample outdoor space and privacy. The location offers a balance between rural tranquility and access to amenities and transport links, with relatively close proximity to well-regarded schools and Redruth train station. However, the absence of key details, such as the total square footage and a lack of physical photographs of the completed property, limits a more precise evaluation. The list price should be considered within the context of the overall package offered, including the size of the plot, the high-quality finish and the desirable location. Potential buyers should conduct thorough due diligence to assess the property’s value and suitability to their needs.
Therefore, we give this property 7 / 10. *Disclaimer: This is our option and does constitute a recommendation or financial advice. Do your own research. *
- Price
- 6
- Condition
- 8
- Location
- 7
- Land
- 7
- Bedrooms
- 4
- Bathrooms
- 5
The heatmap indicates the level of crime in the area. The color of the heatmap indicates the crime severity and recency.
Metrics Year-on-Year
- Average area value
- 592,492.00 £Increased by 21.25 %
- Average area rental value
- 900.00 £/moDecreased by 24.56 %
- Est rental Yield
- 1.82 %Decreased by 37.88 %
- Crime Rate
- 63.00 %Unchanged by 0.00 %
Agent Activity
Goundrys created the listing.
Nearby Schools
| Name | Type | Ofsted | Distance |
|---|---|---|---|
| Mount Hawke Academy | Academy Converter | Outstanding | 2.35 KM |
| Treleigh Community Primary School | Foundation School | Outstanding | 2.35 KM |
| Blackwater Community Primary School | Academy Converter | Good | 2.86 KM |
| Pennoweth Primary School | Academy Converter | 3.56 KM | |
| Redruth Children'S Centre | Children's Centre | 3.56 KM |
Images
Nearby Streets
| Name | Average Price | Average Sqft | Distance |
|---|---|---|---|
| Westway | £ 0 | 0 | 0.00 KM |
| Gwel Gwarthe | £ 0 | 0 | 0.00 KM |
| Treven Noweth | £ 209,875 | 0 | 0.00 KM |
| Beechtree Close | £ 0 | 0 | 0.00 KM |
| Homefield | £ 0 | 0 | 0.00 KM |
Nearby Transport
| Name | NLC | TLC | Distance |
|---|---|---|---|
| Redruth | 3530 | RED | 3.91 KM |
Nearby Listings
| Address | Price | Type | Score | Distance |
|---|---|---|---|---|
| Wheal Rose, Redruth, TR16 5DF | £ 550,000 | BUY | 6 / 10 | 0.00 KM |
| Wheal Rose, Redruth, TR16 5DF | £ 950,000 | BUY | 7 / 10 | 0.00 KM |
| Wheal Rose, Scorrier, Redruth, Cornwall, TR16 | £ 735,000 | BUY | 7 / 10 | 0.06 KM |
| Wheal Rose, Scorrier, Redruth | £ 650,000 | BUY | 8 / 10 | 0.16 KM |
| Wheal Rose, Scorrier | £ 250,000 | BUY | 7 / 10 | 0.18 KM |
Nearby Properties
| Address | Price | Distance |
|---|---|---|
| Tregaron | £ 327,500 | 0.01 KM |
| Trewan House | £ 520,000 | 0.01 KM |
| Goonearl Cottage | £ 500,000 | 0.01 KM |
| Kittiwake Cottage | £ 75,000 | 0.01 KM |
| Westway | £ 391,000 | 0.01 KM |