Gwastad Lane, Borth, Aberystwyth, SY24
By Morgan & Davies
£ 1
Reviews
3 out of 5 stars
Morgan & Davies says ..
Exciting new development of exceptional quality 4 bedroom homes with views over Cardigan Bay and the Dyfi Estuary. Borth. Near Ynyslas & Aberystwyth. West Wales.
Property Oracle says ..
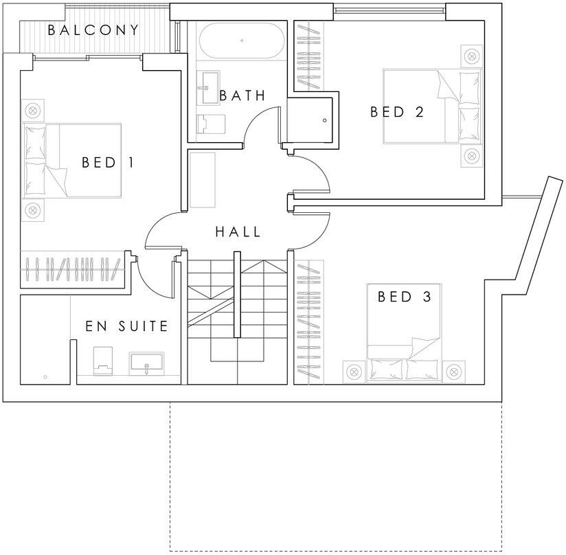
This is a modern detached property in Borth, offering 4 bedrooms and 3 bathrooms within a spacious 3,050 sqft. The images suggest high-quality construction and contemporary interior design. The location provides coastal views and access to local amenities. However, the listed price of £1 is highly suspect and likely an error, as comparable properties in the area are significantly more expensive. Potential buyers should verify the actual price with the estate agent.
Therefore, we give this property 6 / 10. *Disclaimer: This is our option and does constitute a recommendation or financial advice. Do your own research. *
- Price
- 3
- Condition
- 9
- Location
- 7
- Land
- 7
- Bedrooms
- 4
- Bathrooms
- 3
- Sqft (est)
- 3,050.00
The heatmap indicates the level of crime in the area. The color of the heatmap indicates the crime severity and recency.
Metrics Year-on-Year
- Average area value
- 398,765.00 £Decreased by 0.35 %
- Est sale value
- 1,207,800.00 £Increased by 20.73 %
- Average area rental value
- 1,263.00 £/moIncreased by 3.52 %
- Est letting value
- 3,050.00 £/moUnchanged by 0.00 %
- Est rental Yield
- 3.80 %Increased by 3.83 %
- Crime Rate
- 25.00 %Unchanged by 0.00 %
Agent Activity
Morgan & Davies created the listing.
Nearby Schools
| Name | Type | Ofsted | Distance |
|---|---|---|---|
| Ysgol Craig Yr Wylfa | Welsh Establishment | 0.34 KM | |
| Ysgol Rhydypennau | Welsh Establishment | 4.37 KM | |
| Ysgol Comins Coch | Welsh Establishment | 6.18 KM | |
| Ysgol Penglais | Welsh Establishment | 6.66 KM | |
| Ysgol Padarn Sant | Welsh Establishment | 7.30 KM |
Images
Nearby Streets
| Name | Average Price | Average Sqft | Distance |
|---|---|---|---|
| B4572 | £ 249,995 | 0 | 0.00 KM |
| Heol Rhyd-y-Garreg | £ 0 | 0 | 0.00 KM |
| Cliff Drive | £ 320,000 | 0 | 0.00 KM |
| London Place | £ 0 | 0 | 0.00 KM |
Nearby Transport
| Name | NLC | TLC | Distance |
|---|---|---|---|
| Borth | 4304 | BRH | 1.75 KM |
| Aberystwyth | 4303 | AYW | 7.55 KM |
| Aberdovey | 4435 | AVY | 7.63 KM |
| Penhelig | 4335 | PHG | 8.04 KM |
Nearby Listings
| Address | Price | Type | Score | Distance |
|---|---|---|---|---|
| Gwastad Lane, Borth, Aberystwyth, SY24 | £ 1 | BUY | 6 / 10 | 0.00 KM |
| Gwastad Lane, Borth, Aberystwyth, SY24 | £ 755,000 | BUY | 6 / 10 | 0.01 KM |
| Gwastad Lane, Borth, Aberystwyth, SY24 | £ 835,000 | BUY | 6 / 10 | 0.02 KM |
| Gwastad Lane, Borth, Aberystwyth, SY24 | £ 725,000 | BUY | 7 / 10 | 0.03 KM |
| Gwastad Lane, Borth, Aberystwyth, SY24 | £ 850,000 | BUY | 6 / 10 | 0.03 KM |
Nearby Properties
| Address | Price | Distance |
|---|---|---|
| 24 Heol Aberwennol | £ 117,500 | 0.19 KM |
| 48 Heol Aberwennol | £ 140,500 | 0.19 KM |
| 47 Heol Aberwennol | £ 133,000 | 0.19 KM |
| 40 Heol Aberwennol | £ 140,000 | 0.19 KM |
| 2 Heol Rhydygarreg | £ 82,500 | 0.22 KM |