Your Ipswich says ..
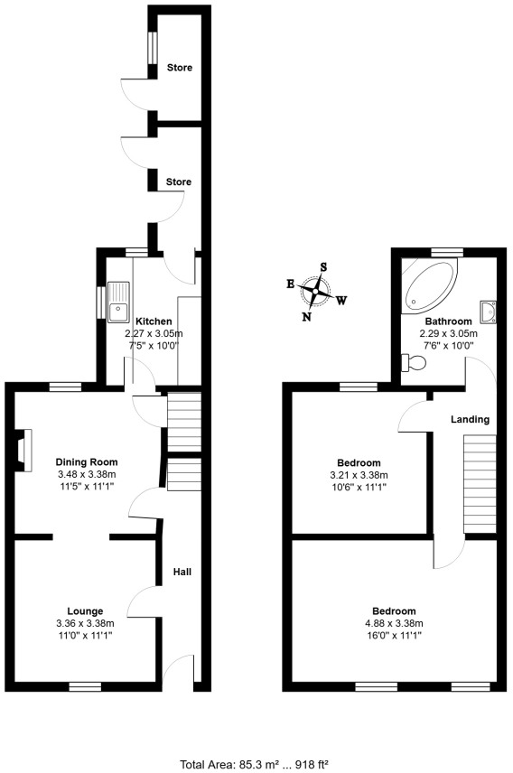
CHAIN FREE - A charming, over-passage cottage style attached home of larger proportions located to the favourite East of Ipswich, convenient to Copleston School, the Waterfront and town centre. The characterful accommodation has been freshly decorated throughout and briefly comprises; entrance ha...
Property Oracle says ..
Therefore, we give this property 7 / 10. *Disclaimer: This is our option and does constitute a recommendation or financial advice. Do your own research. *
- Price
- 9
- Condition
- 7
- Location
- 7
- Land
- 7
- Bedrooms
- 2
- Bathrooms
- 1
- Sqft (est)
- 918.16
The heatmap indicates the level of crime in the area. The color of the heatmap indicates the crime severity and recency.
Metrics Year-on-Year
- Average area value
- 570,435.00 £Increased by 16.78 %
- Est sale value
- 527,023.84 £Increased by 21.35 %
- Average area rental value
- 1,562.00 £/moIncreased by 10.39 %
- Est letting value
- 918.16 £/moUnchanged by 0.00 %
- Est rental Yield
- 3.29 %Decreased by 5.46 %
- Crime Rate
- 6.00 %Unchanged by 0.00 %
from 488,470.00 £
from 434,289.68 £
from 1,415.00 £/mo
from 918.16 £/mo
from 3.48 %
from 6.00 %
Agent Activity
Your Ipswich created the listing.
Nearby Schools
| Name | Type | Ofsted | Distance |
|---|---|---|---|
| St Helen'S Primary School | Academy Converter | Good | 0.46 KM |
| Suffolk New College | Further Education | Requires improvement | 0.59 KM |
| Clifford Road Primary School & Nursery | Community School | Good | 0.70 KM |
| Learning Support, Southern Area Education Office | Miscellaneous | 0.76 KM | |
| St Mary'S Catholic Primary School, Ipswich | Academy Converter | 0.81 KM |
Images
Nearby Streets
| Name | Average Price | Average Sqft | Distance |
|---|---|---|---|
| Warwick Road | £ 240,000 | 0 | 0.00 KM |
| Nursery Gardens | £ 235,000 | 0 | 0.00 KM |
| St. Helens Street | £ 0 | 0 | 0.00 KM |
| Bank Road | £ 270,000 | 0 | 0.00 KM |
| Russet Road | £ 0 | 0 | 0.00 KM |
Nearby Transport
| Name | NLC | TLC | Distance |
|---|---|---|---|
| Derby Road (Ipswich) | 7212 | DBR | 1.62 KM |
| Westerfield | 7226 | WFI | 2.70 KM |
| Ipswich | 7217 | IPS | 2.87 KM |
Nearby Listings
| Address | Price | Type | Score | Distance |
|---|---|---|---|---|
| Spring Road, Ipswich | £ 200,000 | BUY | 7 / 10 | 0.00 KM |
| Spring Road, Ipswich | £ 150,000 | BUY | 6 / 10 | 0.03 KM |
| Spring Road, Ipswich, Suffolk, IP4 | £ 230,000 | BUY | 6 / 10 | 0.04 KM |
| Nottidge Road, Ipswich, IP4 | £ 250,000 | BUY | 6 / 10 | 0.06 KM |
| Nottidge Road, Ipswich, IP4 | £ 190,000 | BUY | 6 / 10 | 0.07 KM |
Nearby Properties
| Address | Price | Distance |
|---|---|---|
| 7 Spring Road | £ 40,000 | 0.00 KM |
| 15 Spring Road | £ 141,000 | 0.00 KM |
| 13 Spring Road | £ 200,000 | 0.00 KM |
| 3b Spring Road | £ 200,000 | 0.00 KM |
| 9 Spring Road | £ 149,950 | 0.00 KM |