Cooke & Co says ..
No Forward Chain! Cooke & Co are delighted to present this...
Property Oracle says ..
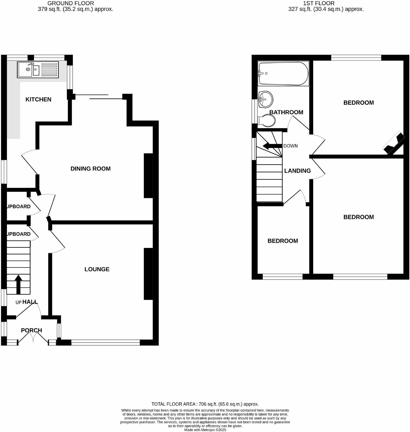
This three-bedroom semi-detached house in Nash Court Gardens, Margate, presents a mixed bag. Its location offers a good balance of convenience and proximity to amenities such as schools and transport links. Salmestone Primary and St Gregory’s Catholic Primary, both rated ‘Good’ by Ofsted, are within easy reach making it appealing for families. Margate railway station provides links to broader Kent and London. However, the property itself is in need of modernisation. The photographs reveal dated décor, carpets, and fixtures throughout the house. The kitchen and bathroom are particularly in need of updating. The garden, while of a decent size, is not exceptionally large. The inclusion of a shed provides additional storage.
The price of £290,000 sits within the range of comparable properties in the area, though there is noticeable variability, suggesting potential room for negotiation. Therefore, prospective buyers should factor in the costs of refurbishment and modernisation. A thorough survey before purchasing is essential to identify any significant structural issues that might affect value or increase refurbishment costs. Overall, the property offers potential but would require considerable investment to reach its full potential. It would appeal to buyers willing to undertake renovation projects or those seeking a property in a convenient location with a decent amount of outdoor space and a reasonable asking price.
Therefore, we give this property 6 / 10. *Disclaimer: This is our option and does constitute a recommendation or financial advice. Do your own research. *
- Price
- 7
- Condition
- 4
- Location
- 7
- Land
- 6
- Bedrooms
- 3
- Bathrooms
- 1
The heatmap indicates the level of crime in the area. The color of the heatmap indicates the crime severity and recency.
Metrics Year-on-Year
- Average area value
- 399,167.00 £Increased by 39.41 %
- Average area rental value
- 1,088.00 £/moDecreased by 5.39 %
- Est rental Yield
- 3.27 %Decreased by 32.16 %
- Crime Rate
- 2.00 %Unchanged by 0.00 %
Agent Activity
Cooke & Co created the listing.
Nearby Schools
| Name | Type | Ofsted | Distance |
|---|---|---|---|
| Salmestone Primary School | Academy Sponsor Led | Good | 0.46 KM |
| St Gregory'S Catholic Primary School, Margate | Academy Converter | Good | 0.54 KM |
| Six Bells Children'S Centre | Children's Centre | 0.99 KM | |
| Enterprise Learning Alliance | Pupil Referral Unit | Good | 1.12 KM |
| Drapers Mills Primary Academy | Academy Sponsor Led | Good | 1.14 KM |
Images
Nearby Streets
| Name | Average Price | Average Sqft | Distance |
|---|---|---|---|
| Rowe Close | £ 0 | 0 | 0.00 KM |
| Half Mile Ride | £ 242,165 | 0 | 0.00 KM |
| Alexandra Terrace | £ 0 | 0 | 0.00 KM |
| Homestead Close | £ 0 | 0 | 0.00 KM |
| Addiscombe Gardens | £ 0 | 0 | 0.00 KM |
Nearby Transport
| Name | NLC | TLC | Distance |
|---|---|---|---|
| Margate | 5018 | MAR | 1.75 KM |
| Ramsgate | 5023 | RAM | 4.56 KM |
| Westgate-On-Sea | 5195 | WGA | 5.11 KM |
| Dumpton Park | 5034 | DMP | 5.66 KM |
| Broadstairs | 5006 | BSR | 5.70 KM |
Nearby Listings
| Address | Price | Type | Score | Distance |
|---|---|---|---|---|
| Nash Court Gardens, Margate | £ 290,000 | BUY | 6 / 10 | 0.00 KM |
| Nash Court Gardens, Margate, Kent | £ 215,000 | BUY | Unknown | 0.04 KM |
| Nash Court Gardens, Margate, Kent | £ 325,000 | BUY | 7 / 10 | 0.04 KM |
| Nash Court Gardens, Margate, CT9 | £ 250,000 | BUY | 5 / 10 | 0.05 KM |
| Nash Court Gardens, Margate, Kent, CT9 | £ 325,000 | BUY | Unknown | 0.05 KM |
Nearby Properties
| Address | Price | Distance |
|---|---|---|
| 8 Nash Court Gardens | £ 155,000 | 0.05 KM |
| 49 Nash Court Gardens | £ 112,500 | 0.05 KM |
| 37 Nash Court Gardens | £ 216,000 | 0.05 KM |
| 27 Nash Court Gardens | £ 169,000 | 0.05 KM |
| 14 Nash Court Gardens | £ 245,000 | 0.05 KM |