Keatons says ..
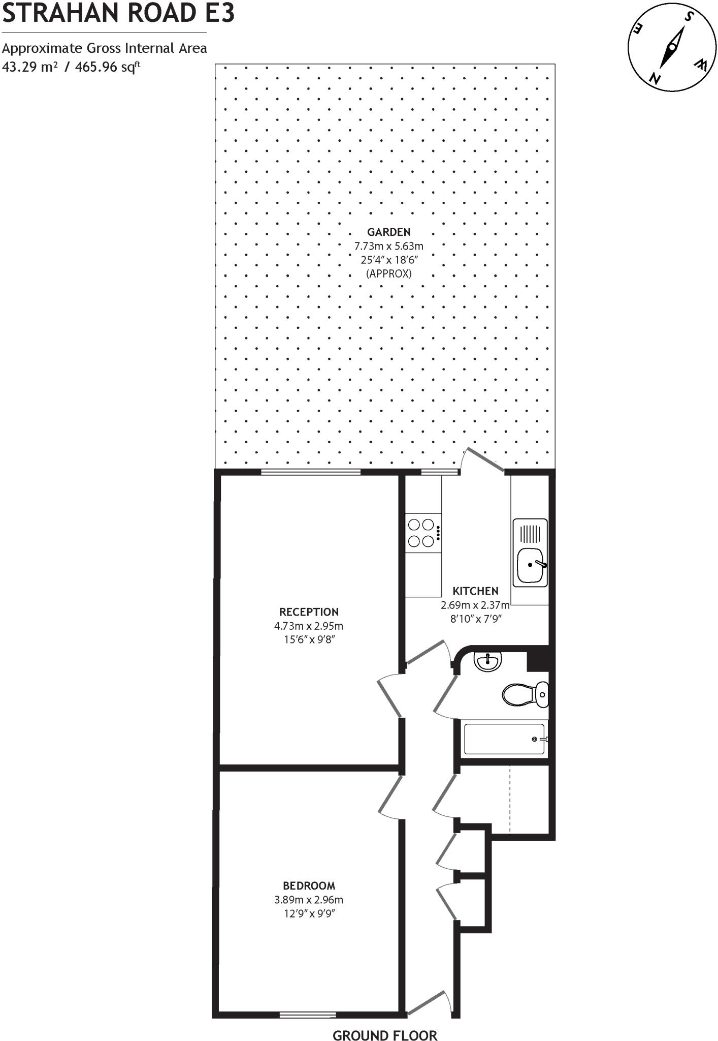
Located in the highly desirable Medway Road Conservation Area, this well-presented one-bedroom property offers a rare opportunity to own an apartment with a private garden. Beautifully maintained throughout, the property boasts a light-filled reception room, a spacious double bedroom, a modern ba...
Property Oracle says ..
Therefore, we give this property 7 / 10. *Disclaimer: This is our option and does constitute a recommendation or financial advice. Do your own research. *
- Price
- 7
- Condition
- 9
- Location
- 7
- Land
- 8
- Bedrooms
- 1
- Bathrooms
- 1
- Lot (est)
- 465.96
The heatmap indicates the level of crime in the area. The color of the heatmap indicates the crime severity and recency.
Metrics Year-on-Year
- Average area value
- 1,191,667.00 £Increased by 41.72 %
- Average area rental value
- 2,142.00 £/moDecreased by 20.75 %
- Est rental Yield
- 2.16 %Decreased by 44.04 %
- Crime Rate
- 4.00 %Unchanged by 0.00 %
from 840,833.00 £
from 2,703.00 £/mo
from 3.86 %
from 4.00 %
Agent Activity
Keatons marked this listing as sold.
Keatons created the listing.
Nearby Schools
| Name | Type | Ofsted | Distance |
|---|---|---|---|
| Olga Children'S Centre | Children's Centre Linked Site | 0.21 KM | |
| Olga Primary School | Community School | Good | 0.21 KM |
| Chisenhale Primary School | Community School | Good | 0.49 KM |
| Old Ford Primary - A Paradigm Academy | Academy Converter | 0.71 KM | |
| Solebay Primary - A Paradigm Academy | Free Schools | Good | 0.72 KM |
Images
Nearby Streets
| Name | Average Price | Average Sqft | Distance |
|---|---|---|---|
| Rhondda Grove | £ 0 | 0 | 0.00 KM |
| Whitman Road | £ 0 | 0 | 0.00 KM |
| Dane Place | £ 0 | 0 | 0.00 KM |
| Ford Road | £ 0 | 0 | 0.00 KM |
| Wennington Road | £ 592,475 | 0 | 0.00 KM |
Nearby Transport
| Name | NLC | TLC | Distance |
|---|---|---|---|
| Limehouse | 7491 | LHS | 1.86 KM |
| Hackney Wick | 6978 | HKW | 2.08 KM |
| Homerton | 6979 | HMN | 2.10 KM |
| Cambridge Heath | 6962 | CBH | 2.29 KM |
| Bethnal Green Rail | 6961 | BET | 2.58 KM |
Nearby Listings
| Address | Price | Type | Score | Distance |
|---|---|---|---|---|
| Strahan Road, Bow, London, E3 | £ 385,000 | BUY | 7 / 10 | 0.00 KM |
| Ground Floor Flat, 52 Strahan Road, Bow, London, E3 5DB | £ 315,000 | BUY | 5 / 10 | 0.03 KM |
| Strahan Road, Bow, London, E3 | £ 1,400,000 | BUY | 7 / 10 | 0.04 KM |
| Arbery Road, London E3 | £ 1,150,000 | BUY | Unknown | 0.05 KM |
| Arbery Road, Bow, London, E3 | £ 1,025,000 | BUY | 7 / 10 | 0.06 KM |
Nearby Properties
| Address | Price | Distance |
|---|---|---|
| 66 Arbery Road | £ 722,500 | 0.04 KM |
| 8 Arbery Road | £ 239,500 | 0.04 KM |
| 38 Arbery Road | £ 230,000 | 0.04 KM |
| 44 Arbery Road | £ 815,000 | 0.04 KM |
| 34 Arbery Road | £ 1,175,000 | 0.04 KM |