CALL NOW TO PICK YOUR PLOT - The Chantry, Sandbach
By Wright Marshall
£ 500,000
Reviews
3 out of 5 stars
Wright Marshall says ..
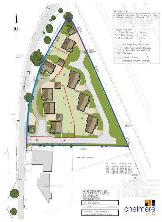
** SALES OFFICE OPEN FRIDAY 2-5, SATURDAY 10-12** ** PLOTS 1 & 8 NOW READY ** PLOT 7 NOW RESERVED** **INCENTIVES AVAILABLE** ENERGY EFFICIENT HOMES INCORPORATING TIMBER FRAME CONSTRUCTION AND WHOLE HOUSE VENTILATION AND HEAT RECOVERY SYSTEM. Arguably the finest detached ...
Property Oracle says ..
This new build four-bedroom detached home in Sandbach, Cheshire, offers a modern and well-appointed living space. The property boasts a contemporary design and features a spacious interior, including a well-equipped kitchen with high-quality appliances and a large open-plan living area which benefits from bifold doors opening onto the garden. The bedrooms and bathrooms are also well presented. The property is situated in a convenient location close to highly regarded schools, while being close to Sandbach town and train stations providing rail connections to Crewe, Manchester and beyond. Although the provided information about the plot size is missing or inaccurate, the property shows promise as a family home. The images suggest the property is high quality, and the layout appears suitable for a family. While the list price is in line with other new builds in the immediate area, a more thorough comparison with similar homes with accurate plot sizes would better inform a buyer’s decision. The lack of information regarding plot size is a significant omission. Future buyers should ensure that they fully understand the exact plot size, and not rely only on the images that accompany the listing.
Therefore, we give this property 7 / 10. *Disclaimer: This is our option and does constitute a recommendation or financial advice. Do your own research. *
- Price
- 7
- Condition
- 9
- Location
- 7
- Land
- 6
- Bedrooms
- 4
- Bathrooms
- 2
- Sqft (est)
- 1,762.48
The heatmap indicates the level of crime in the area. The color of the heatmap indicates the crime severity and recency.
Metrics Year-on-Year
- Average area value
- 374,679.00 £Increased by 54.52 %
- Est sale value
- 415,945.28 £Decreased by 15.71 %
- Average area rental value
- 1,600.00 £/moIncreased by 47.06 %
- Est letting value
- 1,762.48 £/moUnchanged by 0.00 %
- Est rental Yield
- 5.12 %Decreased by 4.83 %
- Crime Rate
- 197.00 %Unchanged by 0.00 %
Agent Activity
Wright Marshall created the listing.
Nearby Schools
| Name | Type | Ofsted | Distance |
|---|---|---|---|
| St John'S Cofe Primary School | Voluntary Aided School | Requires improvement | 0.10 KM |
| Offley Primary Academy | Academy Converter | Good | 2.52 KM |
| Sandbach Children'S Centre | Children's Centre | 3.03 KM | |
| Sandbach Primary Academy | Academy Converter | Good | 3.04 KM |
| Sandbach School | Free Schools | Good | 3.22 KM |
Images
Nearby Streets
| Name | Average Price | Average Sqft | Distance |
|---|---|---|---|
| The Chantry | £ 512,500 | 0 | 0.00 KM |
| Scholars Place | £ 0 | 0 | 0.00 KM |
| Heath Avenue | £ 375,000 | 0 | 0.00 KM |
| Manor Way | £ 0 | 0 | 0.00 KM |
| Larch Drive | £ 0 | 0 | 0.00 KM |
Nearby Transport
| Name | NLC | TLC | Distance |
|---|---|---|---|
| Sandbach | 1261 | SDB | 5.75 KM |
| Holmes Chapel | 1221 | HCH | 6.06 KM |
| Alsager | 1223 | ASG | 7.49 KM |
| Goostrey | 1220 | GTR | 8.77 KM |
Nearby Listings
| Address | Price | Type | Score | Distance |
|---|---|---|---|---|
| CALL NOW TO PICK YOUR PLOT - The Chantry, Sandbach | £ 500,000 | BUY | 7 / 10 | 0.00 KM |
| LARGE CORNER PLOT - The Chantry, Sandbach | £ 515,000 | BUY | 8 / 10 | 0.03 KM |
| ONLY 2 PLOTS REMAINING- The Chantry, Sandbach | £ 500,000 | BUY | 8 / 10 | 0.03 KM |
| Church Lane, Sandbach Heath, Sandbach, CW11 | £ 375,000 | BUY | 7 / 10 | 0.04 KM |
| CALL NOW TO PICK YOUR PLOT - The Chantry, Sandbach | £ 525,000 | BUY | 6 / 10 | 0.06 KM |
Nearby Properties
| Address | Price | Distance |
|---|---|---|
| 5 Church Lane | £ 144,500 | 0.04 KM |
| 15 Church Lane | £ 137,500 | 0.04 KM |
| 13 Church Lane | £ 197,000 | 0.04 KM |
| 1 Willow Drive | £ 173,000 | 0.13 KM |
| 4 Willow Drive | £ 195,000 | 0.13 KM |