Mudeford, Christchurch, Dorset, BH23
By Slades Estate Agents
£ 595,000
Reviews
3 out of 5 stars
Slades Estate Agents says ..
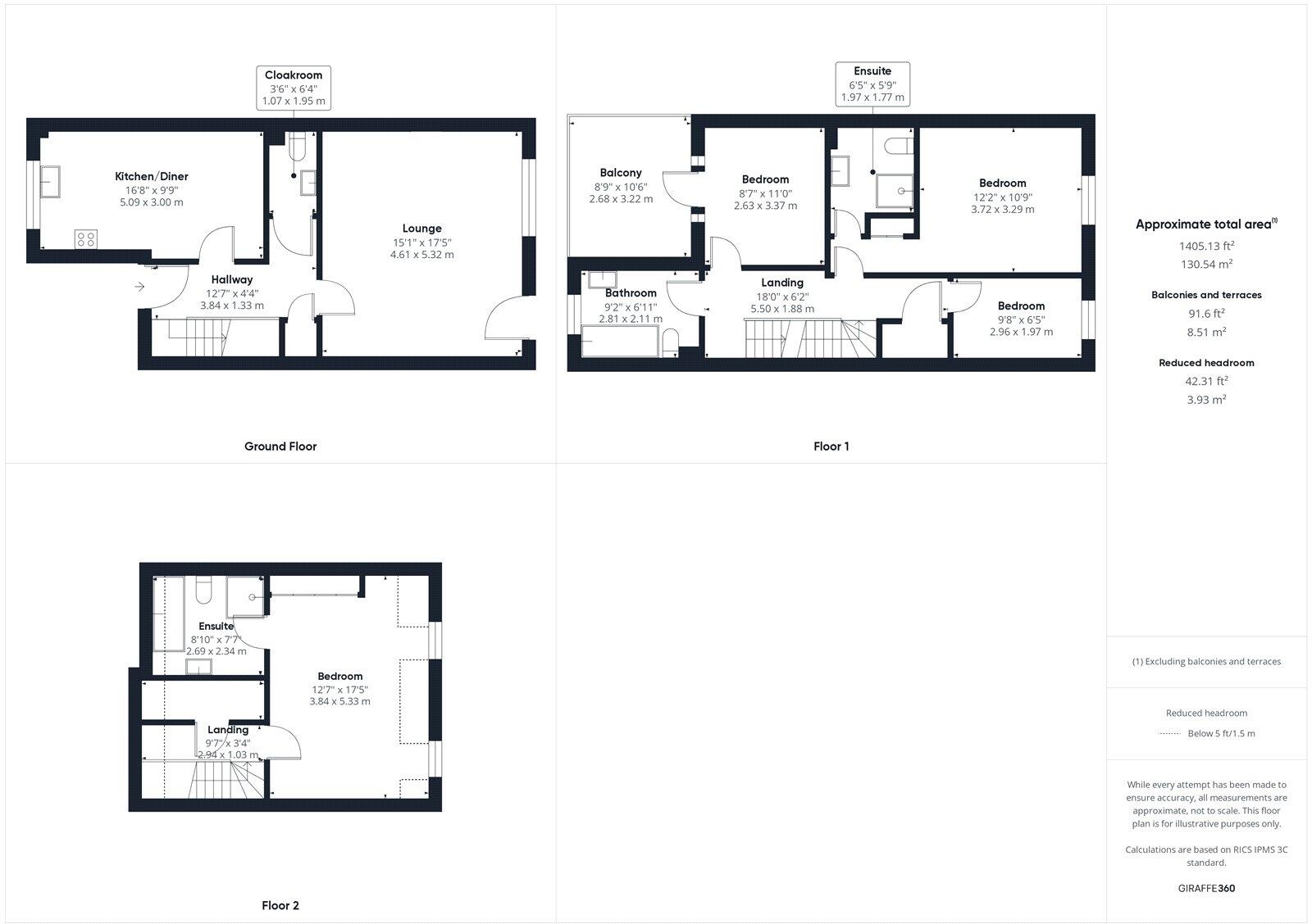
This IMPRESSIVE THREE/FOUR BEDROOM TOWN HOUSE will be sold with the benefit of NO ONWARD CHAIN. The property occupies an ENVIABLE POSITION on the doorstep of MUDEFORD QUAY and AVON BEACH as well as featuring OFF ROAD PARKING and a GARAGE
Property Oracle says ..
This property is a four-bedroom, three-bathroom house situated in the highly sought-after coastal location of Mudeford, Dorset. Mudeford is known for its attractive harbor, proximity to Avon Beach, and general desirability. The property’s proximity to good schools is a significant plus for families. The house itself appears to be well-maintained based on the provided photographs. The interior seems spacious and includes what looks like a modern, functional kitchen and bathrooms. The exterior is presented nicely, and while the photos suggest a relatively small garden space, it is still a useful addition. Although the property comes with what appears to be allocated parking, the details of this and plot size are missing. The listing price should be considered reasonable given the location, but lacks information regarding square footage. Therefore, a conclusive assessment of value-for-money is difficult to establish conclusively. More detailed information regarding property dimensions, plot size, and any additional features would assist in a more comprehensive valuation.
Therefore, we give this property 6 / 10. *Disclaimer: This is our option and does constitute a recommendation or financial advice. Do your own research. *
- Price
- 7
- Condition
- 7
- Location
- 9
- Land
- 3
- Bedrooms
- 4
- Bathrooms
- 3
The heatmap indicates the level of crime in the area. The color of the heatmap indicates the crime severity and recency.
Metrics Year-on-Year
- Average area value
- 487,500.00 £Decreased by 12.22 %
- Average area rental value
- 1,970.00 £/moIncreased by 18.96 %
- Est rental Yield
- 4.85 %Increased by 35.47 %
- Crime Rate
- 4.00 %Unchanged by 0.00 %
Agent Activity
Slades Estate Agents created the listing.
Nearby Schools
| Name | Type | Ofsted | Distance |
|---|---|---|---|
| Mudeford Junior School | Community School | Outstanding | 1.23 KM |
| St Joseph'S Catholic Primary School, Christchurch | Voluntary Aided School | Good | 1.86 KM |
| Somerford Primary School | Community School | Good | 1.94 KM |
| Somerford Children'S Centre | Children's Centre | 1.94 KM | |
| Mudeford Community Infants' School | Community School | Good | 1.96 KM |
Images
Nearby Streets
| Name | Average Price | Average Sqft | Distance |
|---|---|---|---|
| Viking Way | £ 0 | 0 | 0.00 KM |
| Mudeford Quay Dinghy Park | £ 0 | 0 | 0.00 KM |
| Mortimer Close | £ 640,000 | 0 | 0.00 KM |
| Partridge Close | £ 700,000 | 0 | 0.00 KM |
| Hunter Close | £ 0 | 0 | 0.00 KM |
Nearby Transport
| Name | NLC | TLC | Distance |
|---|---|---|---|
| Hinton Admiral | 5880 | HNA | 3.96 KM |
| Christchurch | 5879 | CHR | 5.03 KM |
| Pokesdown | 5885 | POK | 9.39 KM |
| New Milton | 5881 | NWM | 9.61 KM |
Nearby Listings
| Address | Price | Type | Score | Distance |
|---|---|---|---|---|
| Mudeford, Christchurch, Dorset, BH23 | £ 595,000 | BUY | 6 / 10 | 0.00 KM |
| Falcon Drive, Mudeford, Christchurch, Dorset, BH23 | £ 650,000 | BUY | Unknown | 0.05 KM |
| Mudeford, Christchurch, Dorset, BH23 | £ 499,950 | BUY | 6 / 10 | 0.06 KM |
| Falcon Drive, Mudeford, Christchurch, BH23 | £ 650,000 | BUY | 7 / 10 | 0.09 KM |
| Falcon Drive, Mudeford, Christchurch, Dorset, BH23 | £ 750,000 | BUY | 7 / 10 | 0.09 KM |
Nearby Properties
| Address | Price | Distance |
|---|---|---|
| 117 Mudeford | £ 1,400,000 | 0.04 KM |
| 119 Mudeford | £ 300,000 | 0.04 KM |
| 137 Mudeford | £ 420,000 | 0.04 KM |
| 131 Mudeford | £ 500,000 | 0.04 KM |
| 139 Mudeford | £ 115,000 | 0.04 KM |