Dewhurst Homes says ..
Set within one of Preston’s most desirable and picturesque locations, this charming traditional ground floor apartment offers an exceptional blend of period character, modern comfort, and a lifestyle of luxury. Nestled within a beautiful Grade II listed building, the property enjoys an enviable p...
Property Oracle says ..
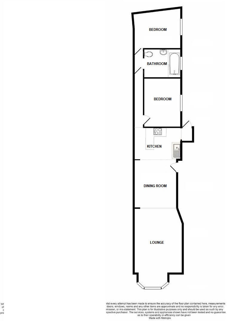
This property is a 2 bedroom apartment located on Bank Parade in Preston City Centre, Lancashire. The apartment is listed at £150,000 and has 825 sqft of living space. The average price for a property in the area is £384,318 with an average price per sqft of £399. The property appears to be in good condition, having undergone some modernisation whilst retaining traditional features. It benefits from a small, manageable rear yard. The location is excellent, being in the city centre, close to local amenities, transport links and schools. However, given the average price per sqft in the area, and the significantly lower price of this property, it is important to consider if there are any factors not disclosed in the listing which may affect value. The lack of plot size information may also be a factor.
Therefore, we give this property 6 / 10. *Disclaimer: This is our option and does constitute a recommendation or financial advice. Do your own research. *
- Price
- 6
- Condition
- 8
- Location
- 9
- Land
- 3
- Bedrooms
- 2
- Bathrooms
- 1
- Sqft (est)
- 825.00
The heatmap indicates the level of crime in the area. The color of the heatmap indicates the crime severity and recency.
Metrics Year-on-Year
- Average area value
- 322,952.00 £Decreased by 27.89 %
- Est sale value
- 283,800.00 £Decreased by 6.52 %
- Average area rental value
- 1,604.00 £/moDecreased by 7.50 %
- Est letting value
- 825.00 £/moUnchanged by 0.00 %
- Est rental Yield
- 5.96 %Increased by 28.17 %
- Crime Rate
- 5.00 %Unchanged by 0.00 %
Agent Activity
Dewhurst Homes created the listing.
Nearby Schools
| Name | Type | Ofsted | Distance |
|---|---|---|---|
| Stoneygate Nursery School | Local Authority Nursery School | Good | 0.46 KM |
| Stoneygate Children'S Centre | Children's Centre | 0.46 KM | |
| St Augustine'S Catholic Primary School | Voluntary Aided School | Good | 0.50 KM |
| Imam Muhammad Zakariya School | Other Independent School | Good | 0.52 KM |
| Frenchwood Community Primary School | Community School | Good | 0.70 KM |
Images
Nearby Streets
| Name | Average Price | Average Sqft | Distance |
|---|---|---|---|
| Tenby Road | £ 0 | 0 | 0.00 KM |
| Lennox Street | £ 0 | 0 | 0.00 KM |
| Rose Street | £ 49,950 | 0 | 0.00 KM |
| New Cock Yard | £ 0 | 0 | 0.00 KM |
| Back Grimshaw Street | £ 0 | 0 | 0.00 KM |
Nearby Transport
| Name | NLC | TLC | Distance |
|---|---|---|---|
| Preston (Lancs) | 2753 | PRE | 1.42 KM |
| Lostock Hall | 2689 | LOH | 3.40 KM |
| Bamber Bridge | 2561 | BMB | 4.88 KM |
| Leyland | 2710 | LEY | 6.17 KM |
| Buckshaw Parkway | 7501 | BSV | 9.73 KM |
Nearby Listings
| Address | Price | Type | Score | Distance |
|---|---|---|---|---|
| Bank Parade, Preston, PR1 | £ 150,000 | BUY | 6 / 10 | 0.00 KM |
| Bank Parade, Preston, Lancashire, PR1 | £ 60,000 | BUY | 5 / 10 | 0.01 KM |
| Bank Parade, Preston | £ 74,950 | BUY | 5 / 10 | 0.05 KM |
| Frenchwood Street, Preston | £ 149,950 | BUY | 5 / 10 | 0.08 KM |
| Frenchwood Street, Preston, PR1 | £ 125,000 | BUY | 5 / 10 | 0.13 KM |
Nearby Properties
| Address | Price | Distance |
|---|---|---|
| 4 Bank Parade | £ 115,000 | 0.01 KM |
| 10 Bank Parade | £ 99,000 | 0.01 KM |
| 3 Bank Parade | £ 305,000 | 0.01 KM |
| 11 Bank Parade | £ 350,000 | 0.01 KM |
| 12 Bank Parade | £ 380,000 | 0.01 KM |