KA
Thornby Villa, Thornby, CA7
By Kate Robson Estate Agent
£ 985,000
Reviews
3 out of 5 stars
Kate Robson Estate Agent says ..
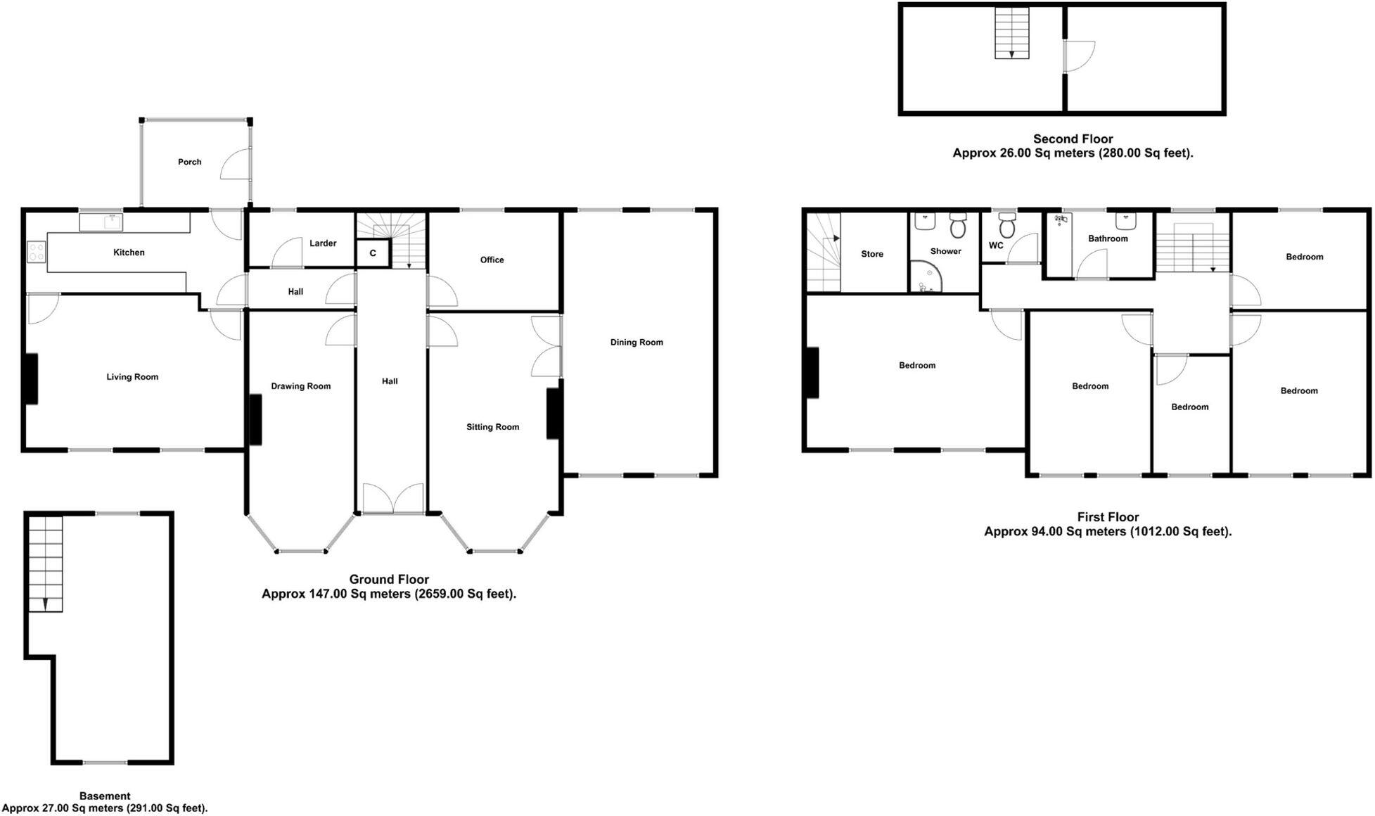
A rare opportunity to acquire a stunning country residence with land extending to 6.74acres (2.73ha) and range of agricultural outbuildings, which comes to the market for the first time since 1858.
Property Oracle says ..
Therefore, we give this property 6 / 10. *Disclaimer: This is our option and does constitute a recommendation or financial advice. Do your own research. *
- Price
- 5
- Condition
- 6
- Location
- 7
- Land
- 9
- Bedrooms
- 5
- Bathrooms
- 2
- Sqft (est)
- 1,582.29
The heatmap indicates the level of crime in the area. The color of the heatmap indicates the crime severity and recency.
Metrics Year-on-Year
- Average area value
- 801,167.00 £Decreased by 16.35 %
- Est sale value
- 958,867.74 £Increased by 23.17 %
- Average area rental value
- 1,142.00 £/moDecreased by 67.83 %
- Est letting value
- 0.00 £/moDecreased by 100.00 %
- Est rental Yield
- 1.71 %Decreased by 61.57 %
- Crime Rate
- 0.00 %
from 957,809.00 £
from 778,486.68 £
from 3,550.00 £/mo
from 1,582.29 £/mo
from 4.45 %
from 0.00 %
Agent Activity
Kate Robson Estate Agent created the listing.
Nearby Schools
| Name | Type | Ofsted | Distance |
|---|---|---|---|
| Wiggonby Cofe School | Voluntary Aided School | Good | 1.79 KM |
| St Cuthbert'S Catholic Primary School | Voluntary Aided School | Good | 5.74 KM |
| Kirkbampton Cofe School | Voluntary Controlled School | Requires improvement | 5.81 KM |
| The Nelson Thomlinson School | Voluntary Controlled School | Outstanding | 6.29 KM |
| Thomlinson Junior School | Community School | Good | 6.61 KM |
Images
Nearby Transport
| Name | NLC | TLC | Distance |
|---|---|---|---|
| Wigton | 2098 | WGT | 6.57 KM |
Nearby Listings
| Address | Price | Type | Score | Distance |
|---|---|---|---|---|
| Thornby Villa, Thornby, CA7 | £ 985,000 | BUY | 6 / 10 | 0.00 KM |
| Thornby, Wigton | £ 425,000 | BUY | 7 / 10 | 0.43 KM |
| Knox Cottage, Thornby | £ 265,000 | BUY | Unknown | 0.63 KM |
| Wiggonby, Wigton, Cumbria, CA7 | £ 420,000 | BUY | 7 / 10 | 1.83 KM |
Nearby Properties
| Address | Price | Distance |
|---|---|---|
| 2 Knox Cottage | £ 197,500 | 0.57 KM |
| 1 Knox Cottage | £ 225,000 | 0.57 KM |
| 1 Holme Lea | £ 58,000 | 1.83 KM |