Main Street, Bolton Percy, YO23
By Wishart Estate Agents
£ 450,000
Reviews
3 out of 5 stars
Wishart Estate Agents says ..
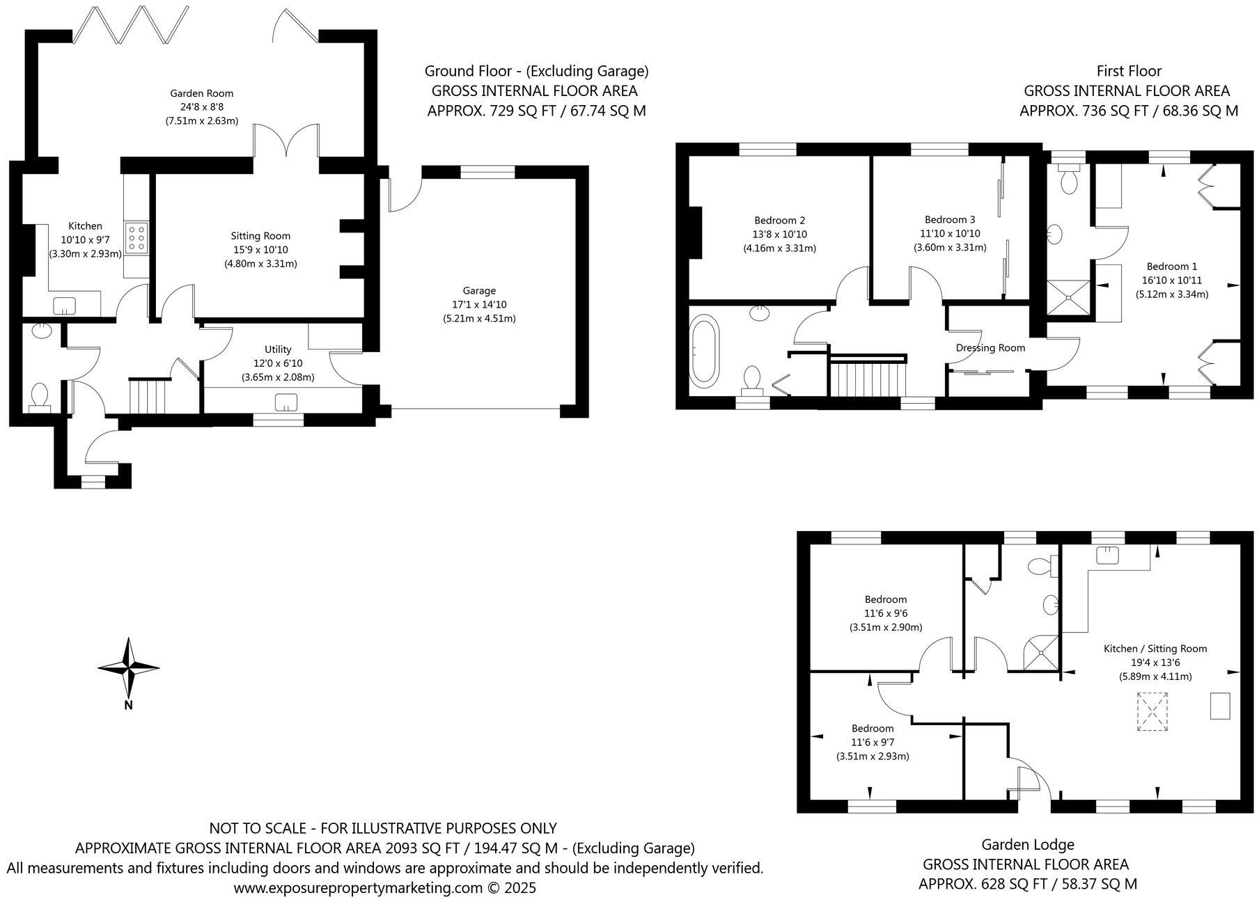
Stylish and spacious semi-detached 3 bedroom family home presented in turnkey condition. Offering excellent versatility, and a fully self-contained two-bedroom lodge annexe.
Property Oracle says ..
This is a well-presented semi-detached property located on Main Street in Bolton Percy, North Yorkshire. The house features three bedrooms and two bathrooms, with a total square footage of 1,753.85. The property benefits from a large garden with a patio area, greenhouse, and an additional outbuilding that includes a kitchen, bathroom and bedroom. The interior is modern and well-maintained, offering comfortable living spaces. The location is ideal, with close proximity to local schools and transportation links. Overall, this property represents a desirable family home in a sought-after village.
Therefore, we give this property 7 / 10. *Disclaimer: This is our option and does constitute a recommendation or financial advice. Do your own research. *
- Price
- 7
- Condition
- 8
- Location
- 7
- Land
- 9
- Bedrooms
- 3
- Bathrooms
- 2
- Sqft (est)
- 1,753.85
The heatmap indicates the level of crime in the area. The color of the heatmap indicates the crime severity and recency.
Metrics Year-on-Year
- Average area value
- 528,421.00 £Decreased by 9.69 %
- Est sale value
- 673,478.40 £Decreased by 4.48 %
- Average area rental value
- 725.00 £/moDecreased by 36.96 %
- Est letting value
- 0.00 £/mo
- Est rental Yield
- 1.65 %Decreased by 30.08 %
- Crime Rate
- 389.00 %Unchanged by 0.00 %
Agent Activity
Wishart Estate Agents created the listing.
Nearby Schools
| Name | Type | Ofsted | Distance |
|---|---|---|---|
| Appleton Roebuck Primary School | Academy Converter | 3.72 KM | |
| Kirk Fenton Church Of England Primary School | Academy Converter | 5.31 KM | |
| Fenton Grange School | Other Independent Special School | Good | 5.60 KM |
| St Mary'S Church Of England Voluntary Controlled Primary School | Voluntary Controlled School | Outstanding | 6.85 KM |
| Askham Bryan College | Further Education | Good | 7.06 KM |
Images
Nearby Streets
| Name | Average Price | Average Sqft | Distance |
|---|---|---|---|
| Glebe Close | £ 0 | 0 | 0.00 KM |
| Fairfax Close | £ 0 | 0 | 0.00 KM |
| Church View | £ 0 | 0 | 0.00 KM |
| Church Lane | £ 0 | 0 | 0.00 KM |
| Boggart Lane | £ 183,329 | 0 | 0.00 KM |
Nearby Transport
| Name | NLC | TLC | Distance |
|---|---|---|---|
| Ulleskelf | 8261 | ULL | 2.81 KM |
| Church Fenton | 8233 | CHF | 5.84 KM |
| Sherburn-In-Elmet | 8257 | SIE | 8.79 KM |
Nearby Listings
| Address | Price | Type | Score | Distance |
|---|---|---|---|---|
| Main Street, Bolton Percy, YO23 | £ 450,000 | BUY | 7 / 10 | 0.00 KM |
| Pump Alley, Bolton Percy, YO23 | £ 200,000 | BUY | 7 / 10 | 0.10 KM |
| Pump Alley, Bolton Percy, York, YO23 | £ 995,000 | BUY | Unknown | 0.10 KM |
| School Lane, Bolton Percy, York, North Yorkshire, YO23 | £ 495,000 | BUY | 7 / 10 | 0.11 KM |
| Pump Alley, Bolton Percy, York | £ 350,000 | BUY | 7 / 10 | 0.13 KM |
Nearby Properties
| Address | Price | Distance |
|---|---|---|
| Spinney House | £ 825,000 | 0.11 KM |
| 3 Fairfax Close | £ 500,000 | 0.22 KM |
| The Nook | £ 410,000 | 0.24 KM |
| Betula | £ 330,000 | 0.24 KM |
| The Shires | £ 315,000 | 0.24 KM |