Church Lane, Farley Hill, Reading, Berkshire, RG7
By Winkworth
£ 1,250,000
Reviews
3 out of 5 stars
Winkworth says ..
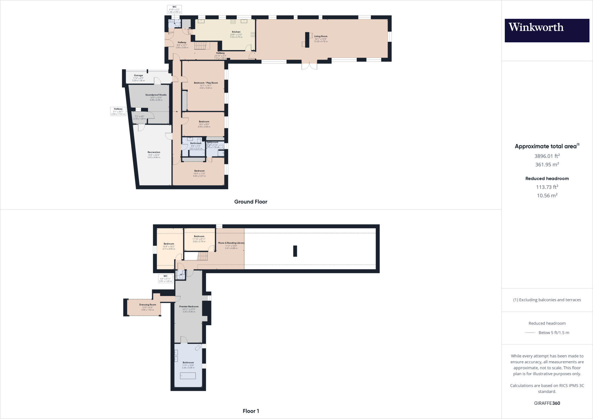
Let’s focus on the main reception area, which is nothing short of stunning. This open-plan living and dining space is beautifully proportioned, with a striking fireplace that offers some separation between the two areas. To give you a sense of scale, this room extends to around 50 feet in l...
Property Oracle says ..
This property is a charming barn conversion located in Farley Hill, Reading. It boasts six bedrooms and three bathrooms, and offers substantial living space of approximately 3,589 sqft. The property includes a sizeable garden, adding to its appeal. The conversion has retained many original features, such as exposed beams, which give the property character and charm. The kitchen appears modern and well-equipped. The location is desirable, being close to Farley Hill Primary School and other amenities. However, the asking price of £1,250,000 is significantly higher than the average house price in the area, which is £576,429. While the property is unique and has many appealing features, the price per sqft is higher than the average for the area, which needs to be considered.
Therefore, we give this property 7 / 10. *Disclaimer: This is our option and does constitute a recommendation or financial advice. Do your own research. *
- Price
- 4
- Condition
- 8
- Location
- 7
- Land
- 9
- Bedrooms
- 6
- Bathrooms
- 3
- Sqft (est)
- 3,589.76
- Lot (est)
- 3,896.00
The heatmap indicates the level of crime in the area. The color of the heatmap indicates the crime severity and recency.
Metrics Year-on-Year
- Average area value
- 200,000.00 £Decreased by 58.61 %
- Est sale value
- 1,906,162.56 £Increased by 26.73 %
- Average area rental value
- 2,175.00 £/moIncreased by 58.18 %
- Est letting value
- 17,948.80 £/moIncreased by 400.00 %
- Est rental Yield
- 13.05 %Increased by 282.70 %
- Crime Rate
- 20.00 %Unchanged by 0.00 %
Agent Activity
Winkworth created the listing.
Nearby Schools
| Name | Type | Ofsted | Distance |
|---|---|---|---|
| Farley Hill Primary School | Community School | Good | 0.44 KM |
| Bohunt School Wokingham | Academy Sponsor Led | Good | 2.51 KM |
| The Coombes Church Of England Primary School | Academy Sponsor Led | 2.58 KM | |
| St Neot'S School | Other Independent School | 3.29 KM | |
| Shinfield St Mary'S Cofe Junior School | Voluntary Aided School | Good | 4.25 KM |
Images
Nearby Streets
| Name | Average Price | Average Sqft | Distance |
|---|---|---|---|
| Church Lane | £ 0 | 0 | 0.00 KM |
| Church Road | £ 0 | 0 | 0.00 KM |
| The Mews | £ 0 | 0 | 0.00 KM |
| Quiller Avenue | £ 0 | 0 | 0.00 KM |
| Quiller Avenue | £ 0 | 0 | 0.00 KM |
Nearby Transport
| Name | NLC | TLC | Distance |
|---|---|---|---|
| Earley | 5694 | EAR | 7.17 KM |
| Winnersh Triangle | 5698 | WTI | 7.23 KM |
| Winnersh | 5697 | WNS | 7.39 KM |
| Wokingham | 5696 | WKM | 9.02 KM |
Nearby Listings
| Address | Price | Type | Score | Distance |
|---|---|---|---|---|
| Church Lane, Farley Hill, Reading, Berkshire, RG7 | £ 1,250,000 | BUY | 7 / 10 | 0.00 KM |
| Church Lane, Farley Hill, Berkshire, RG7 1UP | £ 975,000 | BUY | 7 / 10 | 0.22 KM |
| Church Lane, Farley Hill, Reading, Berkshire, RG7 | £ 1,250,000 | BUY | 8 / 10 | 0.35 KM |
| Church Road, Reading | £ 1,200,000 | BUY | 7 / 10 | 0.51 KM |
| Church Road, Farley Hill, Reading, RG7 | £ 900,000 | BUY | Unknown | 0.51 KM |
Nearby Properties
| Address | Price | Distance |
|---|---|---|
| Snooks Barn | £ 361,000 | 0.20 KM |
| Corner Cottage | £ 760,000 | 0.32 KM |
| Woodcot Cottage | £ 573,500 | 0.33 KM |
| Ivy Cottage | £ 1,050,000 | 0.33 KM |
| Castle Cottage | £ 1,150,000 | 0.33 KM |