Hunters says ..
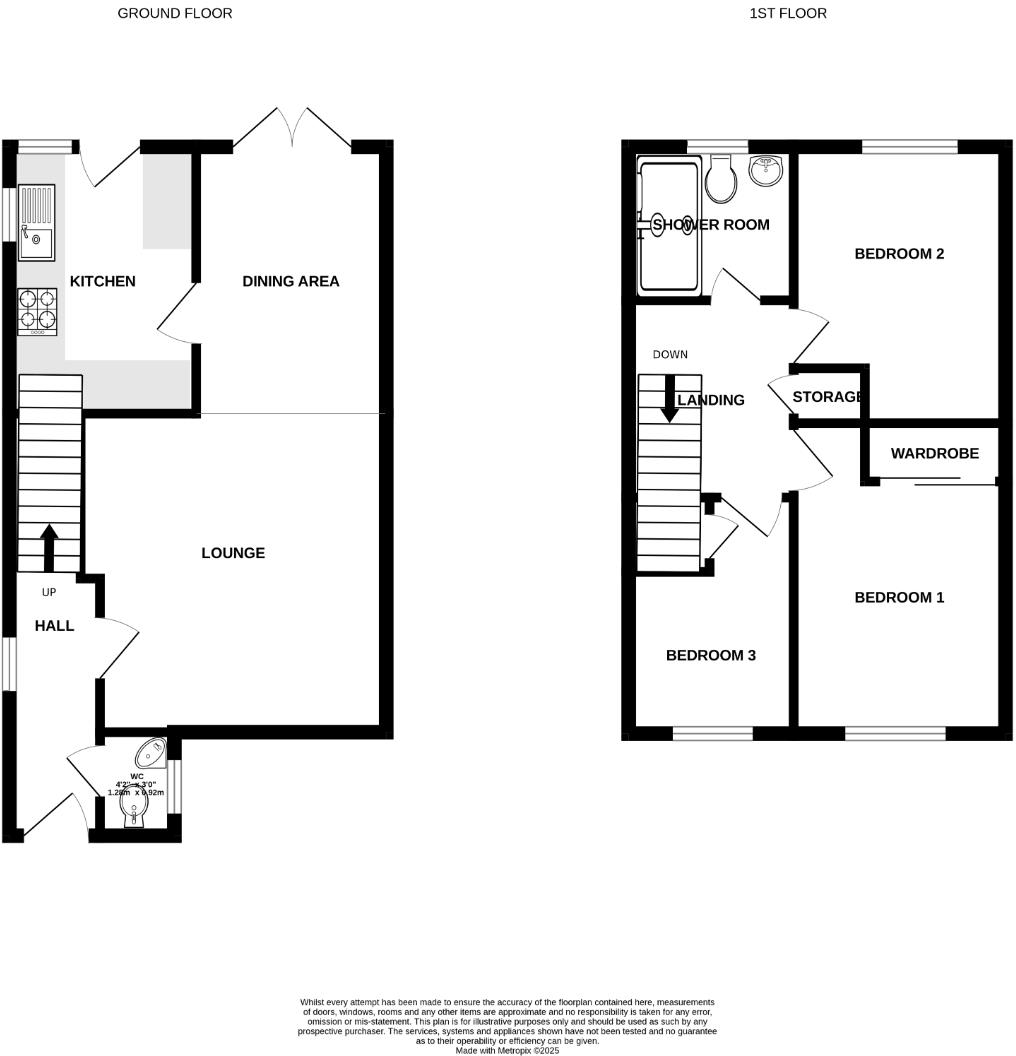
Nestled on the desirable Essella Road in Ashford, this well-presented three-bedroom semi-detached house offers a perfect blend of comfort and convenience. Its enviable location places you within easy reach of the town centre, the M20 motorway, and the high-speed train station, making it an ideal ...
Property Oracle says ..
Therefore, we give this property 7 / 10. *Disclaimer: This is our option and does constitute a recommendation or financial advice. Do your own research. *
- Price
- 6
- Condition
- 9
- Location
- 8
- Land
- 7
- Bedrooms
- 3
- Bathrooms
- 1
- Sqft (est)
- 1,047.00
The heatmap indicates the level of crime in the area. The color of the heatmap indicates the crime severity and recency.
Metrics Year-on-Year
- Average area value
- 257,097.00 £Decreased by 8.25 %
- Est sale value
- 345,510.00 £Increased by 14.98 %
- Average area rental value
- 956.00 £/moIncreased by 1.92 %
- Est letting value
- 1,047.00 £/mo
- Est rental Yield
- 4.46 %Increased by 10.95 %
- Crime Rate
- 5.00 %Unchanged by 0.00 %
from 280,201.00 £
from 300,489.00 £
from 938.00 £/mo
from 0.00 £/mo
from 4.02 %
from 5.00 %
Agent Activity
Hunters created the listing.
Nearby Schools
| Name | Type | Ofsted | Distance |
|---|---|---|---|
| Cornfields School | Other Independent Special School | Good | 0.17 KM |
| The North School | Academy Converter | 0.28 KM | |
| The Norton Knatchbull School | Academy Converter | Good | 0.34 KM |
| Waterside Children'S Centre | Children's Centre | 1.06 KM | |
| Ashford School | Other Independent School | 1.22 KM |
Images
Nearby Streets
| Name | Average Price | Average Sqft | Distance |
|---|---|---|---|
| Foxglove Road | £ 0 | 0 | 0.00 KM |
| Mill Court | £ 0 | 0 | 0.00 KM |
| Tannery Lane | £ 0 | 0 | 0.00 KM |
| Ellison Close | £ 0 | 0 | 0.00 KM |
| Newtown Road | £ 0 | 0 | 0.00 KM |
Nearby Transport
| Name | NLC | TLC | Distance |
|---|---|---|---|
| Ashford International | 5004 | AFK | 1.33 KM |
| Wye | 5031 | WYE | 6.39 KM |
| Ham Street | 5037 | HMT | 9.28 KM |
Nearby Listings
| Address | Price | Type | Score | Distance |
|---|---|---|---|---|
| Essella Park Ashford | £ 365,000 | BUY | 7 / 10 | 0.00 KM |
| Essella Park, Ashford TN24 8AQ | £ 240,000 | BUY | 6 / 10 | 0.03 KM |
| Essella Road, Ashford, TN24 | £ 375,000 | BUY | 7 / 10 | 0.16 KM |
| Town Farm Place, Ashford, TN24 | £ 385,000 | BUY | 6 / 10 | 0.17 KM |
| Essella Road, Ashford, Kent | £ 375,000 | BUY | 6 / 10 | 0.18 KM |
Nearby Properties
| Address | Price | Distance |
|---|---|---|
| 30 Essella Road | £ 210,000 | 0.06 KM |
| 18 Essella Road | £ 325,000 | 0.06 KM |
| 62 Essella Road | £ 250,000 | 0.06 KM |
| 56 Essella Road | £ 190,000 | 0.06 KM |
| 44 Essella Road | £ 275,000 | 0.06 KM |