Rendells says ..
A fantastic opportunity to purchase a prime real estate property in the heart of Totnes within easy walking distance of Fore Street, private vehicle parking and courtyard and uninterrupted views across to Sharpham and rolling countryside beyond. Being of stone construction building converted into...
Property Oracle says ..
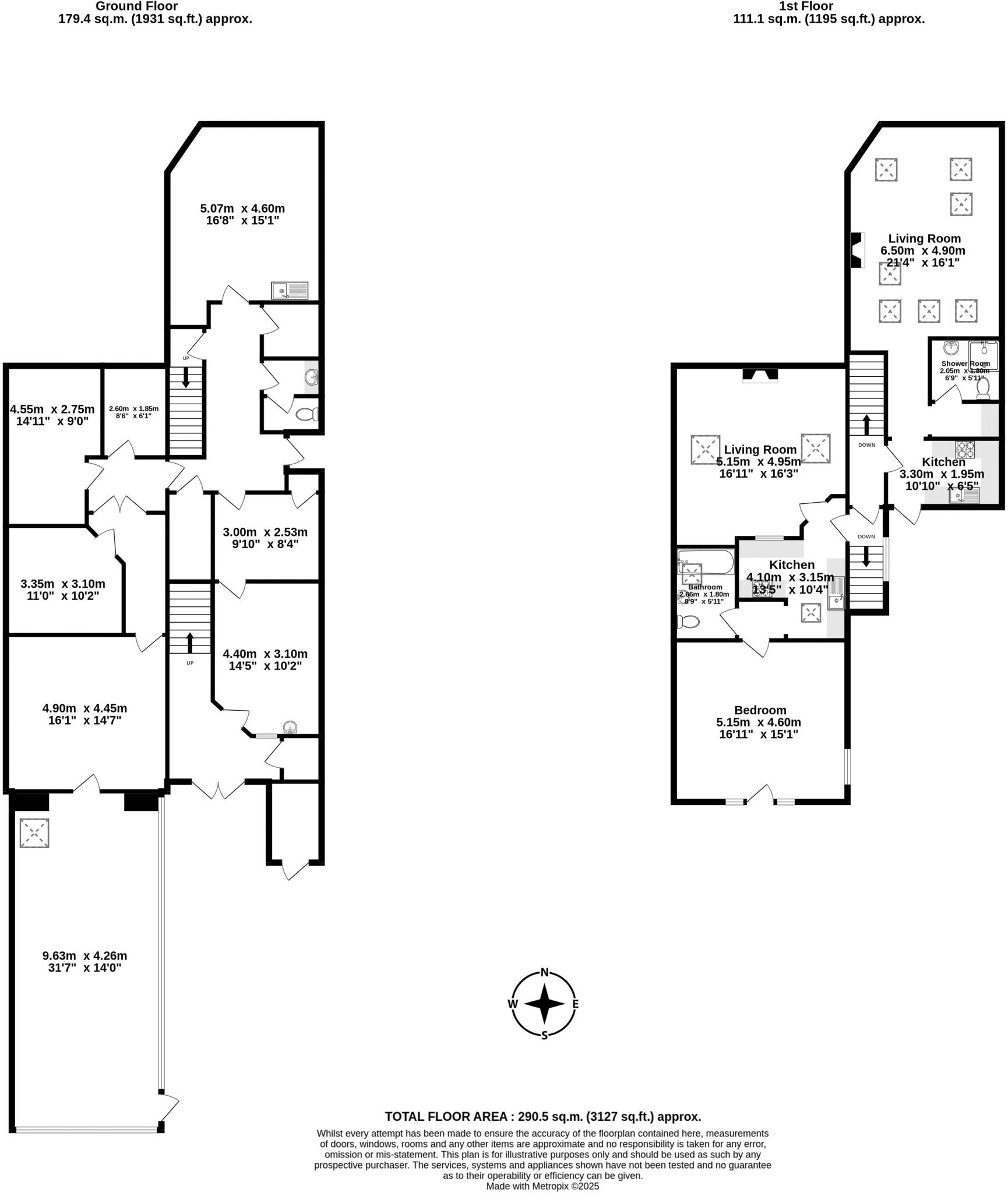
This detached property on Bank Lane, Totnes, presents a renovation opportunity in a sought-after location. While the house requires significant updating, its proximity to local amenities, schools, and transportation links enhances its appeal. The limited outdoor space might be a drawback for some buyers. The price reflects the need for renovation, making it a potentially attractive investment for those willing to undertake the necessary work.
Therefore, we give this property 5 / 10. *Disclaimer: This is our option and does constitute a recommendation or financial advice. Do your own research. *
- Price
- 6
- Condition
- 4
- Location
- 7
- Land
- 3
- Bedrooms
- 3
- Bathrooms
- 1
The heatmap indicates the level of crime in the area. The color of the heatmap indicates the crime severity and recency.
Metrics Year-on-Year
- Average area value
- 418,833.00 £Increased by 5.75 %
- Average area rental value
- 1,017.00 £/moDecreased by 11.64 %
- Est rental Yield
- 2.91 %Decreased by 16.62 %
- Crime Rate
- 58.00 %Unchanged by 0.00 %
Agent Activity
Rendells created the listing.
Nearby Schools
| Name | Type | Ofsted | Distance |
|---|---|---|---|
| The Grove School | Community School | Outstanding | 0.36 KM |
| On Track Education - Totnes | Other Independent Special School | Good | 0.60 KM |
| Roc College (Part Of United Response) | Special Post 16 Institution | Good | 0.74 KM |
| Daisy Play Centre Totnes And District Children'S Centre | Children's Centre | 0.80 KM | |
| Totnes St John'S Church Of England Primary School | Academy Sponsor Led | 0.96 KM |
Images
Nearby Streets
| Name | Average Price | Average Sqft | Distance |
|---|---|---|---|
| Mansion Way | £ 0 | 0 | 0.00 KM |
| Heath Court | £ 0 | 0 | 0.00 KM |
| North Street Mews | £ 325,000 | 0 | 0.00 KM |
| Priory Gardens | £ 0 | 0 | 0.00 KM |
| Chapel Lane | £ 0 | 0 | 0.00 KM |
Nearby Transport
| Name | NLC | TLC | Distance |
|---|---|---|---|
| Totnes | 3558 | TOT | 0.78 KM |
Nearby Listings
| Address | Price | Type | Score | Distance |
|---|---|---|---|---|
| 10 Bank Lane, Totnes | £ 350,000 | BUY | 5 / 10 | 0.00 KM |
| Totnes | £ 390,000 | BUY | 6 / 10 | 0.04 KM |
| Hawkes Way, Victoria Street, Totnes | £ 195,000 | BUY | 5 / 10 | 0.04 KM |
| St. Katherines Mews, St. Katherines Way, Totnes, Devon, TQ9 | £ 170,000 | BUY | 5 / 10 | 0.04 KM |
| St Katherines Mews, Totnes | £ 150,000 | BUY | 6 / 10 | 0.04 KM |
Nearby Properties
| Address | Price | Distance |
|---|---|---|
| 14 Victoria Street | £ 230,000 | 0.01 KM |
| 10 Victoria Street | £ 370,000 | 0.01 KM |
| 9 Bank Lane | £ 124,000 | 0.05 KM |
| 1 Times Mews | £ 125,000 | 0.06 KM |
| 9 Times Mews | £ 282,500 | 0.06 KM |