Water Tower Place, Water Tower Close, Beechin Wood Lane, Platt, TN15
By Trilogy
£ 1,300,000
Reviews
3 out of 5 stars
Trilogy says ..
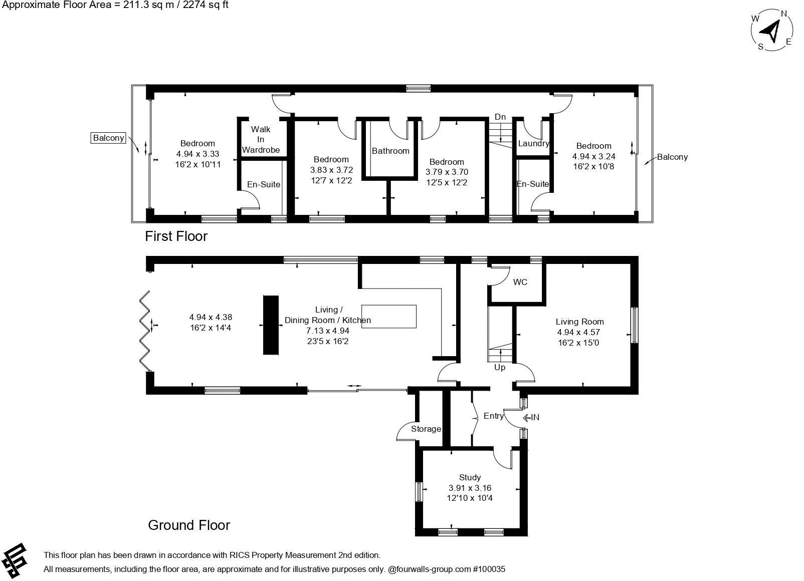
AVAILABLE NOW TO BUY OFF-PLAN! CONTACT US TODAY TO ARRANGE YOUR SITE VISIT! A striking, contemporary four bedroom detached home featuring exceptional contemporary design with incredible natural light throughout located in a rare & exclusive development of just 8 homes in the charmi...
Property Oracle says ..
This detached property at Water Tower Place, Platt, offers modern living in a semi-rural setting. The house features four bedrooms and three bathrooms, with a total area of 2,274.41 sqft. The interiors are contemporary, with high-quality finishes and modern amenities. The location provides a balance between rural tranquility and accessibility, with nearby schools and transportation links. While the listed price of £1,300,000 is above the area’s average price per square foot, the property’s excellent condition and modern features may justify the premium. The lack of detailed information on the plot size makes it challenging to fully assess the property’s value. Overall, this property is well-suited for families seeking a modern home in a desirable location with good schools and convenient transport links. The modern design and high-quality finishes make it a standout option in the area, though potential buyers should consider the price relative to comparable properties and the lack of specific details on the land size. The listing is managed by Trilogy.
Therefore, we give this property 7 / 10. *Disclaimer: This is our option and does constitute a recommendation or financial advice. Do your own research. *
- Price
- 6
- Condition
- 9
- Location
- 7
- Land
- 6
- Bedrooms
- 4
- Bathrooms
- 3
- Sqft (est)
- 2,274.41
The heatmap indicates the level of crime in the area. The color of the heatmap indicates the crime severity and recency.
Metrics Year-on-Year
- Average area value
- 573,333.00 £Increased by 4.59 %
- Est sale value
- 1,009,838.04 £Decreased by 3.27 %
- Average area rental value
- 2,650.00 £/moIncreased by 22.35 %
- Est letting value
- 4,548.82 £/moIncreased by 100.00 %
- Est rental Yield
- 5.55 %Increased by 17.09 %
- Crime Rate
- 0.00 %
Agent Activity
Trilogy created the listing.
Nearby Schools
| Name | Type | Ofsted | Distance |
|---|---|---|---|
| Platt Church Of England Voluntary Aided Primary School | Voluntary Aided School | Good | 1.10 KM |
| Borough Green Primary School | Foundation School | Good | 2.69 KM |
| Grange Park School | Community Special School | Good | 3.04 KM |
| Wrotham School | Academy Converter | Good | 3.04 KM |
| St George'S Church Of England Voluntary Controlled Primary School | Voluntary Controlled School | Outstanding | 4.02 KM |
Images
Nearby Streets
| Name | Average Price | Average Sqft | Distance |
|---|---|---|---|
| Paddock Close | £ 0 | 0 | 0.00 KM |
| MR296 | £ 0 | 0 | 0.00 KM |
| The Hurst | £ 0 | 0 | 0.00 KM |
Nearby Transport
| Name | NLC | TLC | Distance |
|---|---|---|---|
| Borough Green And Wrotham | 5130 | BRG | 2.98 KM |
| Kemsing | 5079 | KMS | 9.43 KM |
| West Malling | 5129 | WMA | 9.64 KM |
Nearby Listings
| Address | Price | Type | Score | Distance |
|---|---|---|---|---|
| Water Tower Place, Water Tower Close, Beechin Wood Lane, Platt, TN15 | £ 1,300,000 | BUY | 7 / 10 | 0.00 KM |
| Water Tower Place, Water Tower Close, Beechin Wood Lane, Platt, TN15 | £ 2,350,000 | BUY | 7 / 10 | 0.00 KM |
| Beechin Wood Lane, Platt, Sevenoaks | £ 1,000,000 | BUY | Unknown | 0.18 KM |
| Bone Ash Lane, Platt, Sevenoaks | £ 1,500,000 | BUY | 8 / 10 | 0.31 KM |
| Bone Ashe Lane, Platt, Sevenoaks, Kent, TN15 | £ 1,550,000 | BUY | 7 / 10 | 0.41 KM |
Nearby Properties
| Address | Price | Distance |
|---|---|---|
| Comp Shoot | £ 684,000 | 0.01 KM |
| Pigeons Green Cottage | £ 595,000 | 0.34 KM |
| The Barn | £ 885,000 | 0.34 KM |
| Hope Cottage | £ 800,000 | 0.34 KM |
| The Studio Cottage | £ 560,000 | 0.39 KM |