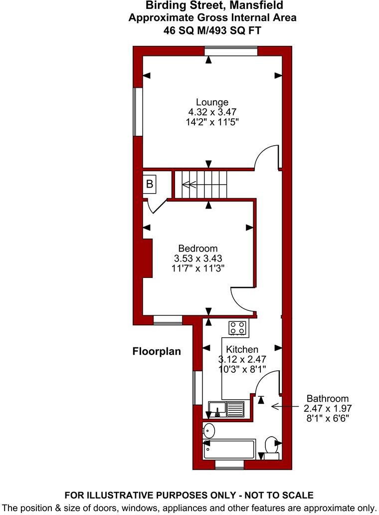
Birding Street, Mansfield
By Richard Watkinson & Partners
£ 62,500
Reviews
2 out of 5 stars
Richard Watkinson & Partners says ..
** NO CHAIN ** Attention first time buyers and investors (currently let for £525 p/cm). A first floor one bedroom flat in a central location close to the town centre.
Property Oracle says ..
This is a one-bedroom flat on Birding Street in Mansfield. The property is listed for £62,500 by Richard Watkinson & Partners. The flat’s location offers reasonable access to local schools and transportation, including the Mansfield and Mansfield Woodhouse stations. However, the images suggest that the property is in need of renovation. The interior appears dated, and the kitchen and bathroom show signs of wear. While the asking price is significantly lower than the average property price in the area, potential buyers should consider the cost of renovations.
Therefore, we give this property 5 / 10. *Disclaimer: This is our option and does constitute a recommendation or financial advice. Do your own research. *
- Price
- 8
- Condition
- 4
- Location
- 6
- Land
- 3
- Bedrooms
- 1
- Bathrooms
- 1
The heatmap indicates the level of crime in the area. The color of the heatmap indicates the crime severity and recency.
Metrics Year-on-Year
- Average area value
- 314,999.00 £Increased by 6.27 %
- Average area rental value
- 1,090.00 £/moIncreased by 10.89 %
- Est rental Yield
- 4.15 %Increased by 4.27 %
- Crime Rate
- 6.00 %Unchanged by 0.00 %
Agent Activity
Richard Watkinson & Partners created the listing.
Nearby Schools
| Name | Type | Ofsted | Distance |
|---|---|---|---|
| Real Alternative Provision School | Other Independent Special School | Good | 0.67 KM |
| The Brunts Academy | Academy Converter | Good | 0.94 KM |
| St Philip Neri With St Bede Catholic Voluntary Academy | Academy Converter | Good | 1.11 KM |
| St Edmund'S Cofe (C) Primary School | Voluntary Controlled School | Good | 1.15 KM |
| Saville House School | Other Independent School | 1.18 KM |
Images
Nearby Streets
| Name | Average Price | Average Sqft | Distance |
|---|---|---|---|
| Woodhouse Road | £ 17,500 | 0 | 0.00 KM |
| Muskham Court | £ 0 | 0 | 0.00 KM |
| Dunsil Road | £ 285,000 | 0 | 0.00 KM |
| Samuel Brunts Way | £ 250,000 | 0 | 0.00 KM |
| Oak Avenue | £ 0 | 0 | 0.00 KM |
Nearby Transport
| Name | NLC | TLC | Distance |
|---|---|---|---|
| Mansfield Woodhouse | 1728 | MSW | 1.32 KM |
| Mansfield | 1727 | MFT | 1.34 KM |
| Shirebrook | 1595 | SHB | 5.68 KM |
| Sutton Parkway | 1861 | SPK | 7.10 KM |
| Kirkby-In-Ashfield | 1867 | KKB | 8.75 KM |
Nearby Listings
| Address | Price | Type | Score | Distance |
|---|---|---|---|---|
| Birding Street, Mansfield | £ 62,500 | BUY | 5 / 10 | 0.00 KM |
| Birding Street, Mansfield, Nottinghamshire, NG19 | £ 120,000 | BUY | 5 / 10 | 0.04 KM |
| Dale Street, Mansfield, NG19 | £ 70,000 | BUY | 5 / 10 | 0.05 KM |
| Orchard Street, Mansfield, NG19 | £ 126,000 | BUY | 6 / 10 | 0.06 KM |
| Baggaley Crescent, Mansfield | £ 190,000 | BUY | 7 / 10 | 0.10 KM |
Nearby Properties
| Address | Price | Distance |
|---|---|---|
| 42 Birding Street | £ 105,000 | 0.03 KM |
| 34 Birding Street | £ 86,000 | 0.03 KM |
| 30a Birding Street | £ 46,500 | 0.03 KM |
| 32 Birding Street | £ 69,500 | 0.03 KM |
| 22 Dale Street | £ 125,000 | 0.05 KM |