Dybles says ..
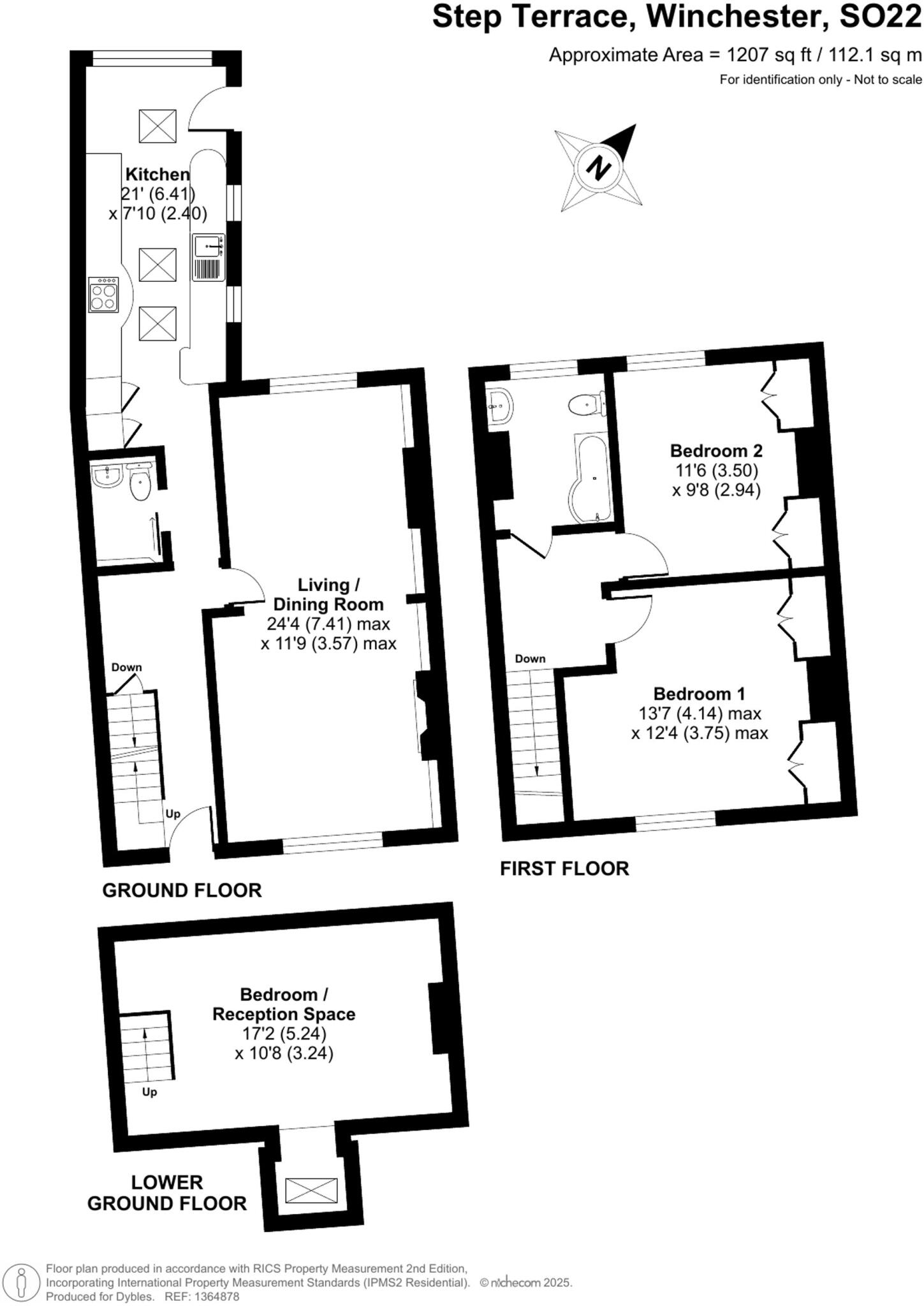
Three bedroom mid terrace home, located a short walk from Winchester City Centre.
Property Oracle says ..
This is a 3-bedroom terraced house in Winchester, Hampshire. The property is in good condition, with a modern kitchen and a well-maintained garden. The location is convenient, with nearby schools and transportation links. The price is slightly above the average for the area, but reflects the property’s condition and location. The property benefits from a fireplace and a patio. Overall, this property presents a desirable living space in a sought-after location.
Therefore, we give this property 7 / 10. *Disclaimer: This is our option and does constitute a recommendation or financial advice. Do your own research. *
- Price
- 6
- Condition
- 8
- Location
- 8
- Land
- 7
- Bedrooms
- 3
- Bathrooms
- 1
- Sqft (est)
- 916.64
The heatmap indicates the level of crime in the area. The color of the heatmap indicates the crime severity and recency.
Metrics Year-on-Year
- Average area value
- 670,260.00 £Decreased by 11.72 %
- Est sale value
- 569,233.44 £Increased by 33.84 %
- Average area rental value
- 1,555.00 £/moDecreased by 21.82 %
- Est letting value
- 916.64 £/moUnchanged by 0.00 %
- Est rental Yield
- 2.78 %Decreased by 11.46 %
- Crime Rate
- 5.00 %Unchanged by 0.00 %
Agent Activity
Dybles created the listing.
Nearby Schools
| Name | Type | Ofsted | Distance |
|---|---|---|---|
| Swanwick Lodge | Secure Units | 0.50 KM | |
| University Of Winchester | Higher Education Institutions | 0.54 KM | |
| Lanterns Nursery School And Children'S Centre | Children's Centre | 0.83 KM | |
| The Westgate School | Community School | Good | 0.85 KM |
| Peter Symonds College | Further Education | Outstanding | 0.88 KM |
Images
Nearby Streets
| Name | Average Price | Average Sqft | Distance |
|---|---|---|---|
| Middle Road | £ 0 | 0 | 0.00 KM |
| B3420 | £ 345,000 | 0 | 0.00 KM |
| Station Road | £ 750,000 | 0 | 0.00 KM |
| Gladstone Street | £ 0 | 0 | 0.00 KM |
| Winchester Station footbridge | £ 0 | 0 | 0.00 KM |
Nearby Transport
| Name | NLC | TLC | Distance |
|---|---|---|---|
| Winchester | 5924 | WIN | 0.60 KM |
| Shawford | 5929 | SHW | 4.66 KM |
Nearby Listings
| Address | Price | Type | Score | Distance |
|---|---|---|---|---|
| Step Terrace, Winchester, SO22 | £ 790,000 | BUY | 7 / 10 | 0.00 KM |
| Step Terrace, Oram's Arbour, Winchester, SO22 | £ 725,000 | BUY | 7 / 10 | 0.00 KM |
| West End Terrace, Winchester, SO22 | £ 1,500,000 | BUY | 7 / 10 | 0.08 KM |
| West End Terrace, Winchester, Hampshire, SO22 | £ 895,000 | BUY | 7 / 10 | 0.10 KM |
| West End Terrace, Winchester, SO22 | £ 1,450,000 | BUY | 7 / 10 | 0.11 KM |
Nearby Properties
| Address | Price | Distance |
|---|---|---|
| 3 Step Terrace | £ 390,000 | 0.00 KM |
| 1 Step Terrace | £ 880,000 | 0.00 KM |
| 8 Step Terrace | £ 525,000 | 0.00 KM |
| 4 Step Terrace | £ 675,000 | 0.00 KM |
| 9 Step Terrace | £ 1,175,000 | 0.00 KM |