Godfrey And Barr says ..
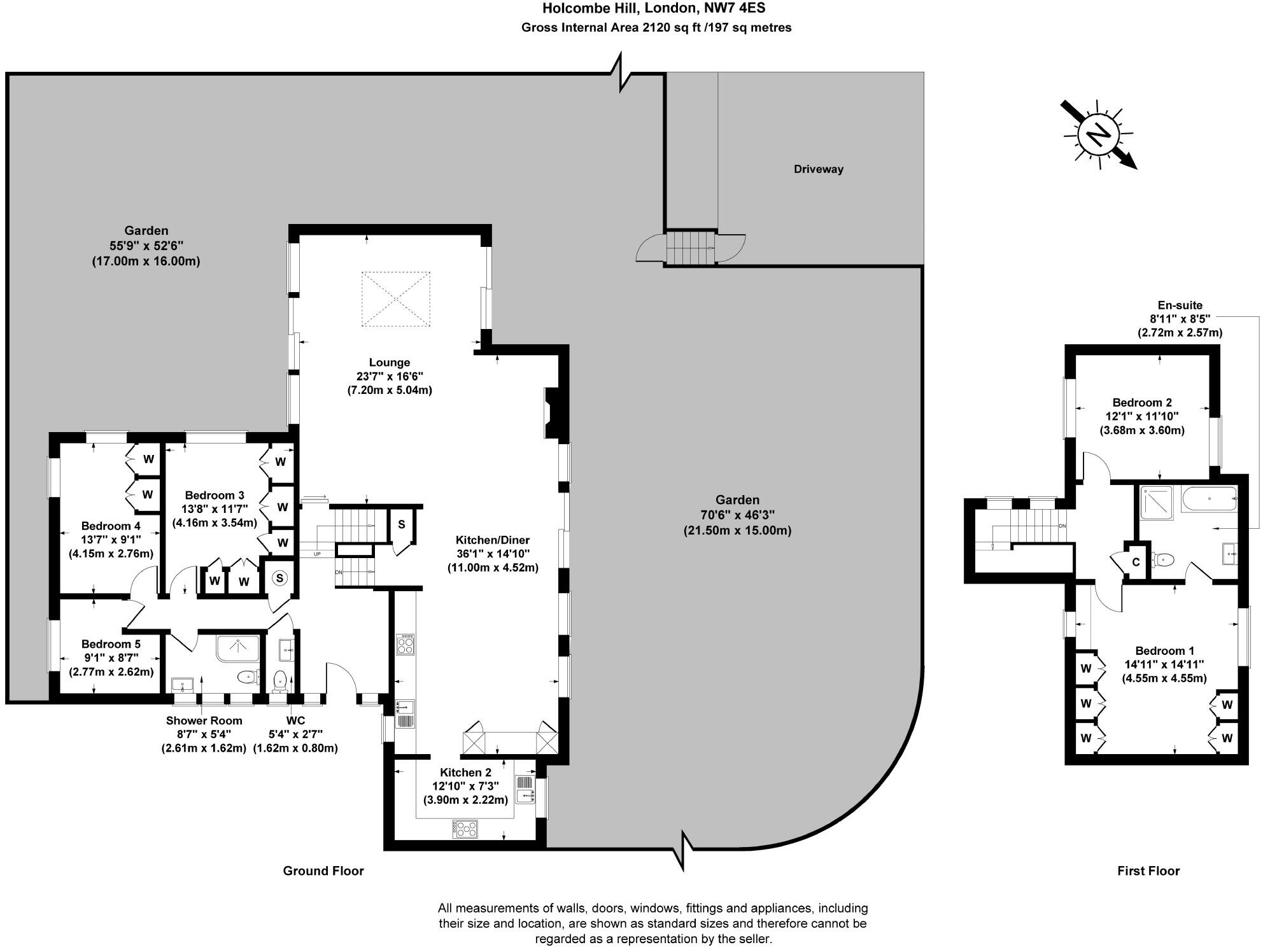
A unique, detached house with landscaped wrap around garden, set back from the road in an elevated position in this fabulous location within Just under a mile of Mill Hill Broadway’s multiple coffee shops, restaurants, shops and Thameslink station. Featuring 2100 sq ft of acco...
Property Oracle says ..
This four-bedroom property in Mill Hill, Barnet, is presented in what appears to be good condition, boasting a modern extension and updated interior visible in the photographs. The location is a strong selling point, given the proximity to excellent schools – particularly Ellern Mede School which is rated Outstanding by Ofsted – and Mill Hill Broadway station, offering convenient access to central London via the Thameslink line. The images showcase a well-designed living space with extensive glazing providing plenty of natural light. There is also a patio area and an easily maintainable sized garden which is nice additional to the property. The list price of £1,700,000 falls within the range of similar properties in the area, however, the lack of precise plot size and detailed internal specifications prevents a definitive assessment of value per square foot and therefore accurate comparative market analysis. Prospective buyers should commission a comprehensive survey and conduct thorough due diligence before making an offer.
Therefore, we give this property 7 / 10. *Disclaimer: This is our option and does constitute a recommendation or financial advice. Do your own research. *
- Price
- 7
- Condition
- 8
- Location
- 9
- Land
- 7
- Bedrooms
- 4
- Bathrooms
- 0
- Sqft (est)
- 2,120.49
The heatmap indicates the level of crime in the area. The color of the heatmap indicates the crime severity and recency.
Metrics Year-on-Year
- Average area value
- 696,062.00 £Decreased by 2.02 %
- Est sale value
- 1,100,534.31 £Decreased by 10.05 %
- Average area rental value
- 2,443.00 £/moDecreased by 15.35 %
- Est letting value
- 2,120.49 £/moDecreased by 50.00 %
- Est rental Yield
- 4.21 %Decreased by 13.55 %
- Crime Rate
- 11.00 %Unchanged by 0.00 %
Agent Activity
Godfrey And Barr created the listing.
Nearby Schools
| Name | Type | Ofsted | Distance |
|---|---|---|---|
| Ellern Mede School | Other Independent School | Outstanding | 0.10 KM |
| St Paul'S Cofe Primary School Nw7 | Voluntary Aided School | Outstanding | 0.73 KM |
| Goodwyn School | Other Independent School | 0.85 KM | |
| Mill Hill School Foundation | Other Independent School | 0.93 KM | |
| Etz Chaim Jewish Primary School | Free Schools | Good | 1.22 KM |
Images
Nearby Streets
| Name | Average Price | Average Sqft | Distance |
|---|---|---|---|
| Millers Close | £ 0 | 0 | 0.00 KM |
| Nan Clark's Lane | £ 0 | 0 | 0.00 KM |
| Marsh Lane | £ 2,044,158 | 0 | 0.00 KM |
| Wiltshire Close | £ 0 | 0 | 0.00 KM |
| Mill Hill Circus | £ 0 | 0 | 0.00 KM |
Nearby Transport
| Name | NLC | TLC | Distance |
|---|---|---|---|
| Mill Hill Broadway | 1527 | MIL | 1.94 KM |
| Hendon | 1522 | HEN | 5.00 KM |
| Elstree And Borehamwood | 1542 | ELS | 5.76 KM |
| New Barnet | 6018 | NBA | 7.49 KM |
| Cricklewood | 1519 | CRI | 7.85 KM |
Nearby Listings
| Address | Price | Type | Score | Distance |
|---|---|---|---|---|
| Holcombe Hill, Mill Hill | £ 1,700,000 | BUY | 7 / 10 | 0.00 KM |
| The Ridgeway, London, NW7 | £ 2,500,000 | BUY | 8 / 10 | 0.15 KM |
| Kirkstall House, London, NW7 | £ 1,750,000 | BUY | 8 / 10 | 0.15 KM |
| The Ridgeway, Mill Hill, London, NW7 | £ 2,375,000 | BUY | 8 / 10 | 0.15 KM |
| The Ridgeway, Mill Hill | £ 2,375,000 | BUY | 9 / 10 | 0.16 KM |
Nearby Properties
| Address | Price | Distance |
|---|---|---|
| The Knoll | £ 675,000 | 0.23 KM |
| Middlemarch Lodge | £ 1,285,000 | 0.23 KM |
| Satyr Cottage | £ 482,500 | 0.23 KM |
| 5 Lawrence Gardens | £ 1,150,000 | 0.38 KM |
| 41 Lawrence Gardens | £ 420,000 | 0.38 KM |