Lawrence Rand says ..
This stylish ground-floor two-bedroom maisonette is ready to move straight into, offering modern living with immaculate interiors throughout.
Property Oracle says ..
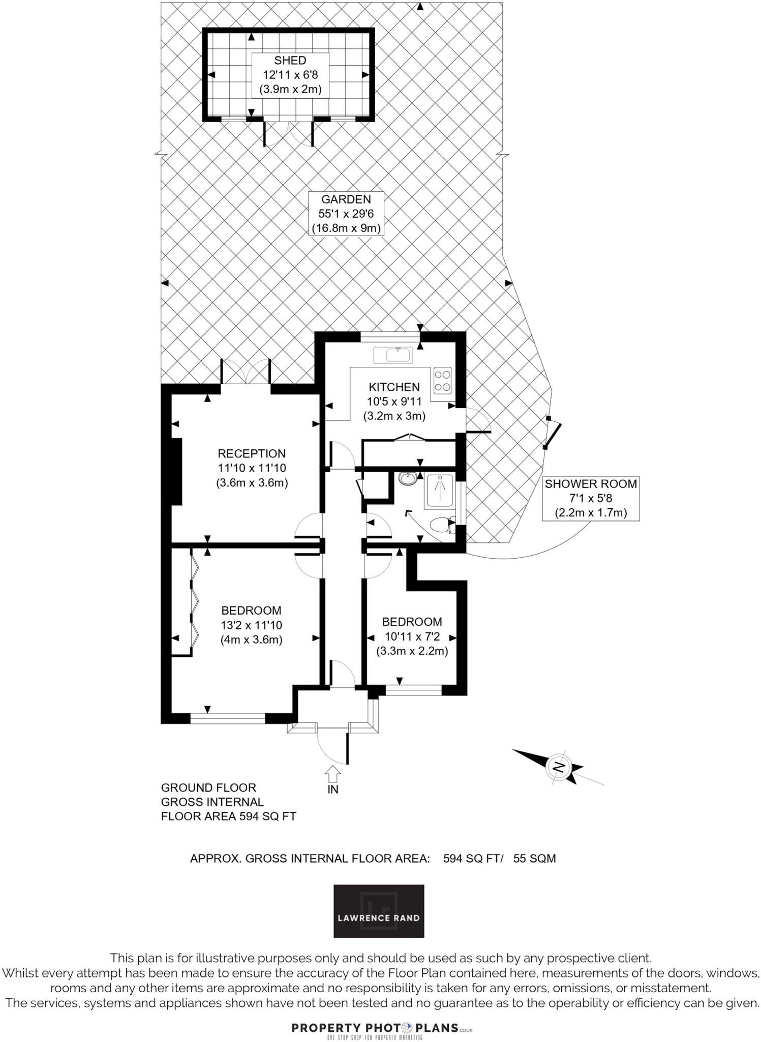
This is a 2-bedroom flat in Ivy Close, Harrow. The property appears to be in good condition, with a modern kitchen and bathroom. It benefits from a garden. The location is reasonably convenient, with nearby schools and transportation links. The price is on the higher end but reflects the property’s condition and features.
Therefore, we give this property 7 / 10. *Disclaimer: This is our option and does constitute a recommendation or financial advice. Do your own research. *
- Price
- 7
- Condition
- 8
- Location
- 7
- Land
- 6
- Bedrooms
- 2
- Bathrooms
- 1
- Sqft (est)
- 594.00
The heatmap indicates the level of crime in the area. The color of the heatmap indicates the crime severity and recency.
Metrics Year-on-Year
- Average area value
- 341,429.00 £Increased by 9.95 %
- Est sale value
- 185,922.00 £Decreased by 25.65 %
- Average area rental value
- 875.00 £/moDecreased by 18.53 %
- Est letting value
- 0.00 £/moDecreased by 100.00 %
- Est rental Yield
- 3.08 %Decreased by 25.78 %
- Crime Rate
- 5.00 %Unchanged by 0.00 %
Agent Activity
Lawrence Rand created the listing.
Nearby Schools
| Name | Type | Ofsted | Distance |
|---|---|---|---|
| Earlsmead Primary School | Academy Sponsor Led | Good | 0.23 KM |
| Rooks Heath School | Academy Converter | Good | 0.46 KM |
| Harrow Independent College | Other Independent School | Good | 0.47 KM |
| Heathland School | Academy Converter | 0.66 KM | |
| Northolt High School | Foundation School | Good | 0.79 KM |
Images
Nearby Streets
| Name | Average Price | Average Sqft | Distance |
|---|---|---|---|
| Kenilworth Avenue | £ 0 | 0 | 0.00 KM |
| Silverdale Close | £ 0 | 0 | 0.00 KM |
| Eastcote Lane North | £ 542,500 | 0 | 0.00 KM |
| Lynton Road | £ 0 | 0 | 0.00 KM |
| Hurst Close | £ 645,000 | 0 | 0.00 KM |
Nearby Transport
| Name | NLC | TLC | Distance |
|---|---|---|---|
| Northolt Park | 1478 | NLT | 1.72 KM |
| South Ruislip | 3057 | SRU | 2.71 KM |
| Greenford | 3136 | GFD | 3.73 KM |
| Sudbury Hill Harrow | 1484 | SDH | 4.32 KM |
| Harrow-On-The-Hill | 598 | HOH | 4.71 KM |
Nearby Listings
| Address | Price | Type | Score | Distance |
|---|---|---|---|---|
| Ivy Close, Harrow, HA2 | £ 425,000 | BUY | 7 / 10 | 0.00 KM |
| Walton Avenue, Harrow, HA2 | £ 220,000 | BUY | 6 / 10 | 0.08 KM |
| Ivy Close, South Harrow, Harrow, HA2 | £ 335,000 | BUY | 6 / 10 | 0.12 KM |
| Walton Avenue, Harrow, Middlesex, HA2 | £ 600,000 | BUY | 6 / 10 | 0.14 KM |
| Ivy Close, Harrow, HA2 8RX | £ 340,000 | BUY | Unknown | 0.14 KM |
Nearby Properties
| Address | Price | Distance |
|---|---|---|
| 78 Walton Avenue | £ 460,000 | 0.06 KM |
| 114 Walton Avenue | £ 246,000 | 0.06 KM |
| 126 Walton Avenue | £ 261,500 | 0.06 KM |
| 116 Walton Avenue | £ 267,000 | 0.06 KM |
| 24 Walton Avenue | £ 335,000 | 0.06 KM |