Yopa says ..
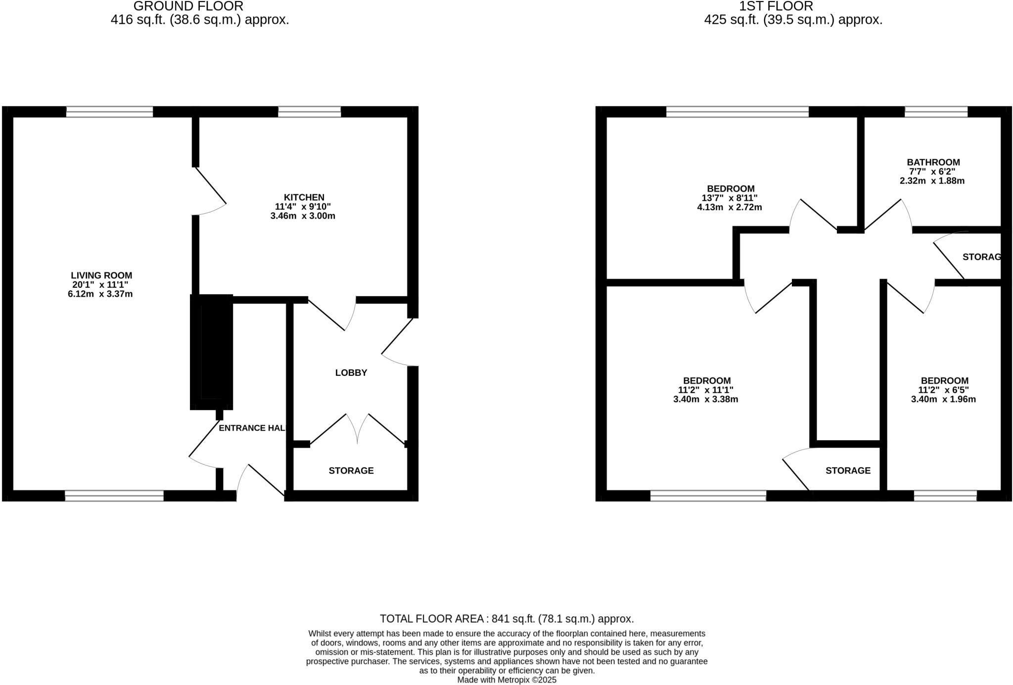
*** Offered for sale is this superb 3 bedroom semi detached home boasting spacious living room, large front & rear gardens and a quiet, popular residential location ***
Property Oracle says ..
Therefore, we give this property 6 / 10. *Disclaimer: This is our option and does constitute a recommendation or financial advice. Do your own research. *
- Price
- 8
- Condition
- 5
- Location
- 7
- Land
- 7
- Bedrooms
- 3
- Bathrooms
- 1
- Sqft (est)
- 697.20
The heatmap indicates the level of crime in the area. The color of the heatmap indicates the crime severity and recency.
Metrics Year-on-Year
- Average area value
- 420,000.00 £Decreased by 24.04 %
- Est sale value
- 610,747.20 £Increased by 140.00 %
- Average area rental value
- 1,475.00 £/moDecreased by 37.68 %
- Est letting value
- 2,091.60 £/moIncreased by 200.00 %
- Est rental Yield
- 4.21 %Decreased by 18.09 %
- Crime Rate
- 32.00 %Unchanged by 0.00 %
from 552,933.00 £
from 254,478.00 £
from 2,367.00 £/mo
from 697.20 £/mo
from 5.14 %
from 32.00 %
Agent Activity
Yopa created the listing.
Nearby Schools
| Name | Type | Ofsted | Distance |
|---|---|---|---|
| Airedale Children'S Centre | Children's Centre | 0.21 KM | |
| Airedale Academy | Academy Converter | Good | 0.23 KM |
| Castleford Townville Infants' School | Community School | Requires improvement | 0.31 KM |
| Fairburn View Primary School, Castleford | Community School | Good | 0.47 KM |
| Airedale Infant School | Academy Converter | Good | 0.59 KM |
Images
Nearby Streets
| Name | Average Price | Average Sqft | Distance |
|---|---|---|---|
| Park Crescent | £ 0 | 0 | 0.00 KM |
| Frisian Close | £ 0 | 0 | 0.00 KM |
| Hillcrest Close | £ 0 | 0 | 0.00 KM |
| Stansfield Road | £ 0 | 0 | 0.00 KM |
| Elliots Close | £ 260,000 | 0 | 0.00 KM |
Nearby Transport
| Name | NLC | TLC | Distance |
|---|---|---|---|
| Pontefract Monkhill | 8548 | PFM | 2.88 KM |
| Pontefract Tanshelf | 8541 | POT | 3.31 KM |
| Glasshoughton | 8360 | GLH | 3.60 KM |
| Pontefract Baghill | 8540 | PFR | 3.64 KM |
| Castleford | 8359 | CFD | 4.64 KM |
Nearby Listings
| Address | Price | Type | Score | Distance |
|---|---|---|---|---|
| Lodge Avenue, Castleford, WF10 | £ 150,000 | BUY | 6 / 10 | 0.00 KM |
| Lodge Avenue, Castleford, West Yorkshire | £ 130,000 | BUY | 6 / 10 | 0.00 KM |
| Poplar Avenue, Castleford, West Yorkshire | £ 150,000 | BUY | Unknown | 0.18 KM |
| Camden Road, Castleford | £ 150,000 | BUY | Unknown | 0.21 KM |
| Crewe Road, Castleford, West Yorkshire | £ 145,000 | BUY | 7 / 10 | 0.21 KM |
Nearby Properties
| Address | Price | Distance |
|---|---|---|
| 10 Lodge Avenue | £ 79,000 | 0.02 KM |
| 43 Lodge Avenue | £ 97,000 | 0.02 KM |
| 41 Lodge Avenue | £ 61,000 | 0.02 KM |
| 24 Lodge Avenue | £ 137,500 | 0.02 KM |
| 33 Lodge Avenue | £ 120,000 | 0.02 KM |