Nested says ..
Nestled on a peaceful no-through road in the very heart of Shoreham, this bright and beautifully presented three-bedroom home offers the perfect combination of style, convenience and tranquillity.
Property Oracle says ..
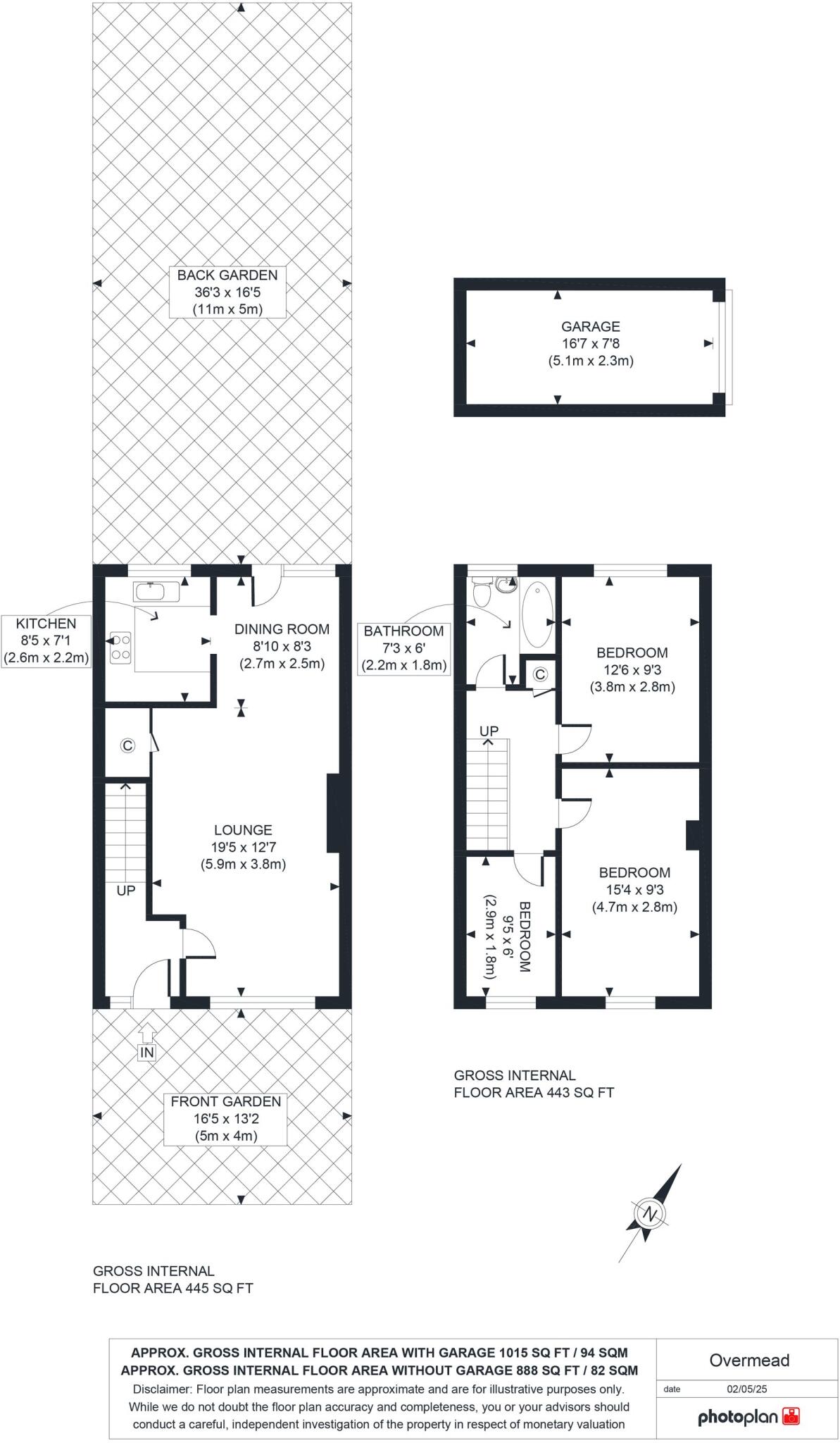
This three-bedroom terraced house in Shoreham-by-Sea is listed at £440,000. The property benefits from a modern interior with a recently updated kitchen and bathroom. It also includes a garden, which is a desirable feature in this market. The location is convenient, with nearby schools and a train station providing easy access to Brighton and other areas. However, the plot size is quite small, and the average price per square foot in the area is slightly lower than the asking price. Considering the average price in the area is £367,691 and the average price per sqft is £330, while this property is £440,000 and 1011.81 sqft, this suggests the asking price may be slightly high compared to similar properties in the area. More information on the property’s condition and the specifics of the plot size would be beneficial for a more accurate valuation.
Therefore, we give this property 7 / 10. *Disclaimer: This is our option and does constitute a recommendation or financial advice. Do your own research. *
- Price
- 7
- Condition
- 8
- Location
- 9
- Land
- 4
- Bedrooms
- 3
- Bathrooms
- 1
- Sqft (est)
- 1,011.81
The heatmap indicates the level of crime in the area. The color of the heatmap indicates the crime severity and recency.
Metrics Year-on-Year
- Average area value
- 456,875.00 £Increased by 1.27 %
- Est sale value
- 434,066.49 £Increased by 22.57 %
- Average area rental value
- 1,264.00 £/moDecreased by 16.90 %
- Est letting value
- 1,011.81 £/moUnchanged by 0.00 %
- Est rental Yield
- 3.32 %Decreased by 18.02 %
- Crime Rate
- 1.00 %Unchanged by 0.00 %
Agent Activity
Nested created the listing.
Nearby Schools
| Name | Type | Ofsted | Distance |
|---|---|---|---|
| Swiss Gardens Primary School | Community School | Good | 0.32 KM |
| Buckingham Park Primary School | Community School | Good | 0.73 KM |
| Shoreham Beach Primary School | Community School | Good | 1.50 KM |
| St Peter'S Catholic Primary School, Shoreham-By-Sea | Voluntary Aided School | Good | 1.54 KM |
| Kingston Buci Children & Family Centre | Children's Centre | 1.79 KM |
Images
Nearby Streets
| Name | Average Price | Average Sqft | Distance |
|---|---|---|---|
| Bridges Bank | £ 0 | 0 | 0.00 KM |
| High Street | £ 289,975 | 0 | 0.00 KM |
| John Street | £ 449,982 | 0 | 0.00 KM |
| Western Road | £ 287,500 | 0 | 0.00 KM |
| St Mary's Road | £ 349,975 | 0 | 0.00 KM |
Nearby Transport
| Name | NLC | TLC | Distance |
|---|---|---|---|
| Shoreham-By-Sea | 5277 | SSE | 0.70 KM |
| Southwick | 5286 | SWK | 4.59 KM |
| Lancing | 5275 | LAC | 5.22 KM |
| Fishersgate | 5284 | FSG | 6.39 KM |
| Portslade | 5276 | PLD | 7.94 KM |
Nearby Listings
| Address | Price | Type | Score | Distance |
|---|---|---|---|---|
| Overmead, Shoreham-By-Sea, BN43 | £ 440,000 | BUY | 7 / 10 | 0.00 KM |
| Victoria Road, Shoreham-By-Sea | £ 399,950 | BUY | 5 / 10 | 0.10 KM |
| Victoria Road, Shoreham, West Sussex, BN43 | £ 550,000 | BUY | 6 / 10 | 0.10 KM |
| Victoria Road, Shoreham by Sea | £ 700,000 | BUY | 6 / 10 | 0.12 KM |
| Victoria Road, Shoreham-by-sea, BN43 | £ 350,000 | BUY | 7 / 10 | 0.14 KM |
Nearby Properties
| Address | Price | Distance |
|---|---|---|
| 33 Overmead | £ 381,000 | 0.01 KM |
| 1 Overmead | £ 595,000 | 0.01 KM |
| 24 Overmead | £ 355,000 | 0.01 KM |
| 41 Overmead | £ 400,000 | 0.01 KM |
| 14 Overmead | £ 395,000 | 0.01 KM |