Frances Street, Fulford, York YO10 4DP
By Bishops Personal Agents
£ 299,950
Reviews
3 out of 5 stars
Bishops Personal Agents says ..
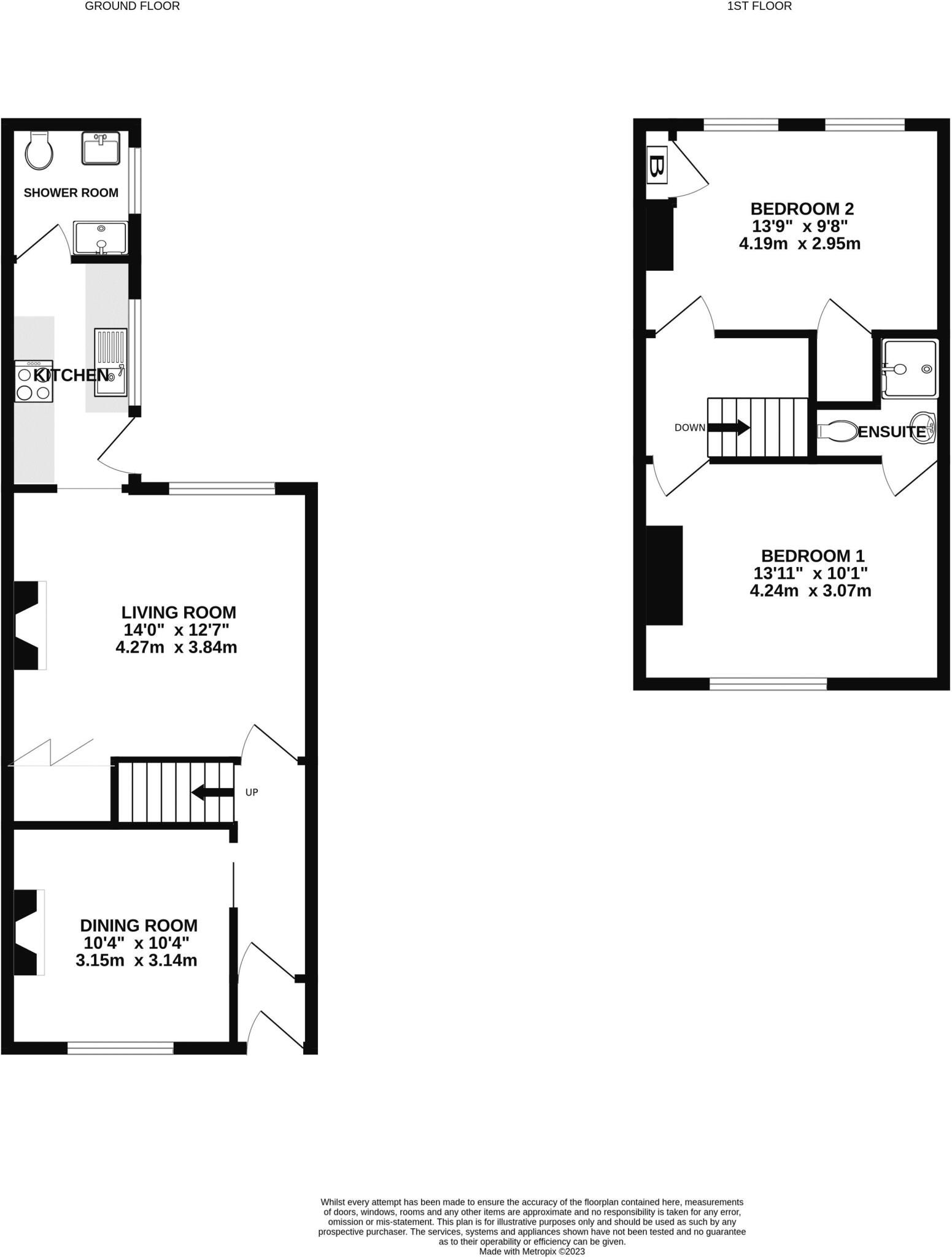
Bishops Personal Agents offer for sale an opportunity to purchase a two-bedroom mid terraced house, situated in one of York's most sought-after locations on Frances Street in Fulford. This property is sure to be very popular to all purchasers, including first time buyers, commuters, those loo...
Property Oracle says ..
This is a two-bedroom terraced house on Frances Street, Fulford, York. The property features a modern kitchen and two bathrooms. While the square footage isn’t specified, the house includes a small rear garden. The location is favorable, with nearby schools and transport links. The property appears to be in a generally acceptable condition, although some areas could benefit from updating. The asking price of £299,950 seems appropriate for the area and property type.
Therefore, we give this property 6 / 10. *Disclaimer: This is our option and does constitute a recommendation or financial advice. Do your own research. *
- Price
- 7
- Condition
- 6
- Location
- 7
- Land
- 4
- Bedrooms
- 2
- Bathrooms
- 2
The heatmap indicates the level of crime in the area. The color of the heatmap indicates the crime severity and recency.
Metrics Year-on-Year
- Average area value
- 391,421.00 £Increased by 20.41 %
- Average area rental value
- 1,243.00 £/moDecreased by 1.97 %
- Est rental Yield
- 3.81 %Decreased by 18.59 %
- Crime Rate
- 3.00 %Unchanged by 0.00 %
Agent Activity
Bishops Personal Agents created the listing.
Nearby Schools
| Name | Type | Ofsted | Distance |
|---|---|---|---|
| Danesgate Community | Pupil Referral Unit | Good | 0.38 KM |
| York Steiner School | Other Independent School | Inadequate | 0.48 KM |
| St George'S Catholic Primary School - A Catholic Voluntary Academy | Academy Converter | 0.56 KM | |
| Fishergate Primary School | Community School | Good | 0.59 KM |
| Knavesmire Children'S Centre | Children's Centre | 1.34 KM |
Images
Nearby Streets
| Name | Average Price | Average Sqft | Distance |
|---|---|---|---|
| Dower Court | £ 0 | 0 | 0.00 KM |
| St Ann's Court | £ 0 | 0 | 0.00 KM |
| Garden Court | £ 0 | 0 | 0.00 KM |
| Bishopthorpegate Street | £ 230,000 | 0 | 0.00 KM |
| Bishopgate Street | £ 0 | 0 | 0.00 KM |
Nearby Transport
| Name | NLC | TLC | Distance |
|---|---|---|---|
| York | 8263 | YRK | 2.13 KM |
| Poppleton | 8254 | POP | 8.50 KM |
Nearby Listings
| Address | Price | Type | Score | Distance |
|---|---|---|---|---|
| Frances Street, Fulford, York YO10 4DP | £ 279,950 | BUY | 6 / 10 | 0.00 KM |
| Frances Street, Fulford, York YO10 4DP | £ 299,950 | BUY | 6 / 10 | 0.00 KM |
| Frances Street, Fulford | £ 290,000 | BUY | 6 / 10 | 0.01 KM |
| Frances Street, York | £ 335,000 | BUY | Unknown | 0.05 KM |
| Ambrose Street, York, YO10 4DR | £ 300,000 | BUY | 7 / 10 | 0.05 KM |
Nearby Properties
| Address | Price | Distance |
|---|---|---|
| 81 Frances Street | £ 185,000 | 0.01 KM |
| 71 Frances Street | £ 280,000 | 0.01 KM |
| 48 Frances Street | £ 300,000 | 0.01 KM |
| 55 Frances Street | £ 163,500 | 0.01 KM |
| 82 Frances Street | £ 220,000 | 0.01 KM |