Canonbie Road, London, SE23
WI

Canonbie Road, London, SE23

By Winkworth

£ 925,000

Reviews

3 out of 5 stars

Winkworth says ..

Canonbie Road is widely regarded as one of the most desirable locations in Forest Hill, offering a rare combination of charm, convenience, and community. Its appeal is drawn from its tranquil, tree-lined atmosphere, which creates a serene residential setting while being just moments away from the...

Property Oracle says ..

This property is located in the Forest Hill area of South East London. Forest Hill is a popular residential area known for its Victorian and Edwardian architecture, independent shops, and good transport links. The property itself is a three-bedroom semi-detached house with a garden. While the images show the property to be in need of some modernisation, the location and plot size are attractive features. The list price is higher than the average price for the area, but comparable to other similar properties on Canonbie Road. Therefore, the price may be considered reasonable given the location and size of the property.

Therefore, we give this property 7 / 10. *Disclaimer: This is our option and does constitute a recommendation or financial advice. Do your own research. *

Price
7
Condition
6
Location
8
Land
7
Bedrooms
3
Bathrooms
1
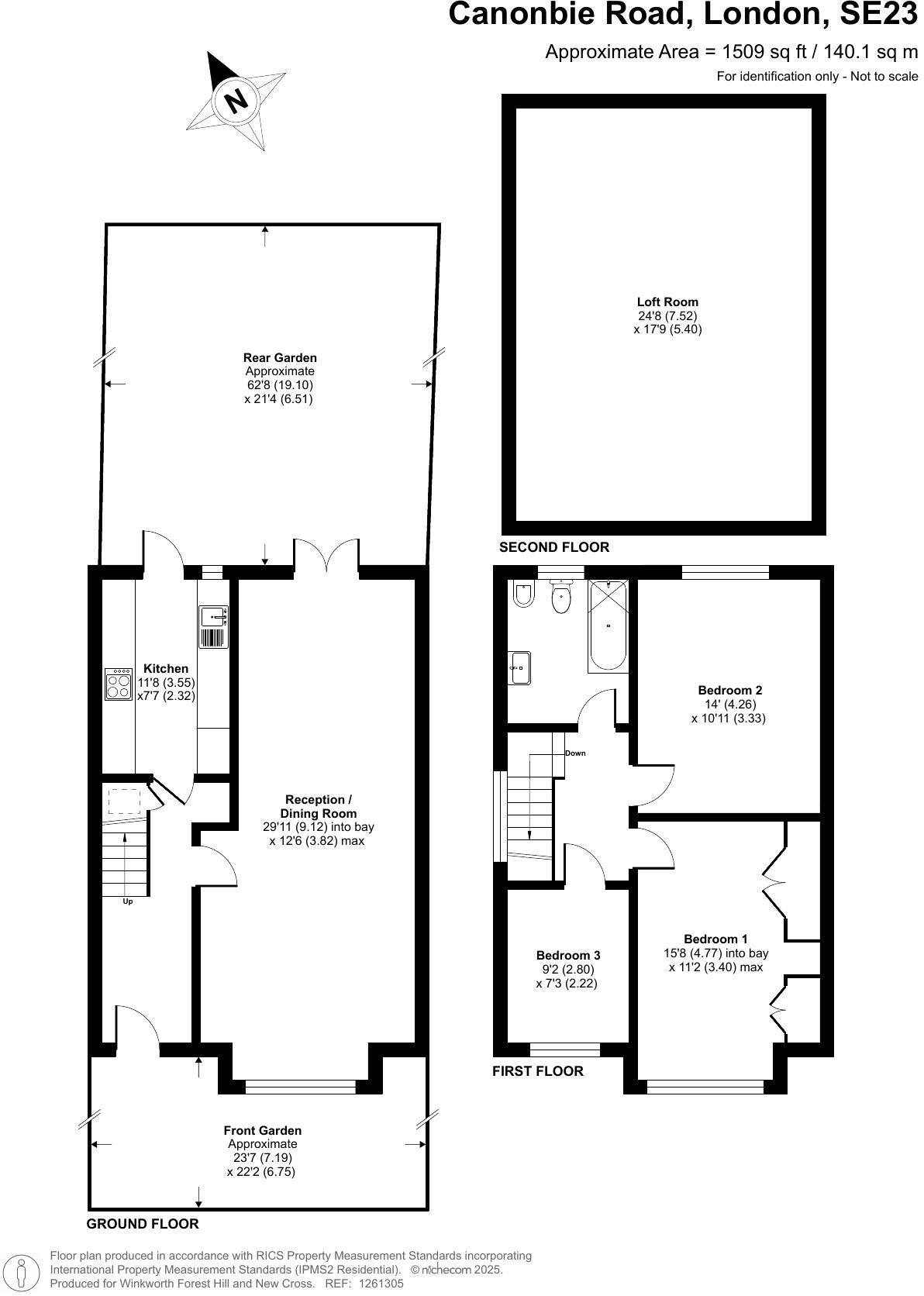
Sqft (est)
1,256.00
Lot (est)
1,509.00

The heatmap indicates the level of crime in the area. The color of the heatmap indicates the crime severity and recency.

Metrics Year-on-Year

Average area value
497,222.00 £
Decreased by 1.69 %
from 505,752.00 £
Est sale value
749,832.00 £
Increased by 3.83 %
from 722,200.00 £
Average area rental value
1,971.00 £/mo
Decreased by 2.23 %
from 2,016.00 £/mo
Est letting value
2,512.00 £/mo
Unchanged by 0.00 %
from 2,512.00 £/mo
Est rental Yield
4.76 %
Decreased by 0.42 %
from 4.78 %
Crime Rate
3.00 %
Unchanged by 0.00 %
from 3.00 %

Agent Activity

  • Winkworth created the listing.

Nearby Schools

NameTypeOfstedDistance
Fairlawn Primary SchoolCommunity SchoolGood0.17 KM
St Francesca Cabrini Primary SchoolVoluntary Aided SchoolGood0.40 KM
Horniman Primary SchoolCommunity SchoolGood0.47 KM
Allenby Tutorial TrustMiscellaneous1.05 KM
St George'S Cofe Primary SchoolAcademy Converter1.06 KM

Images

Picture No. 02 Picture No. 04 Picture No. 14 Picture No. 06 Picture No. 18 Picture No. 21 Picture No. 03 Picture No. 12 Picture No. 15 Picture No. 13 Picture No. 09 Picture No. 08 Picture No. 07 Picture No. 17 Picture No. 16 Picture No. 19 Picture No. 11 Picture No. 10 Picture No. 20 Picture No. 22 Picture No. 23 Picture No. 26

Nearby Streets

NameAverage PriceAverage SqftDistance
Ivestor Terrace £ 675,00000.00 KM
Churchwood Gardens £ 350,00000.00 KM
One Tree Hill £ 000.00 KM
Horniman Nature Trail £ 499,99500.00 KM
King Garth Mews £ 674,97500.00 KM

Nearby Transport

NameNLCTLCDistance
Forest Hill5362FOH0.82 KM
Honor Oak Park5418HPA1.21 KM
Sydenham5437SYD2.12 KM
Nunhead5068NHD2.33 KM
Crofton Park5078CFT2.35 KM

Nearby Listings

AddressPriceTypeScoreDistance
Manor Way, London £ 400,000BUYUnknown0.05 KM
Honor Oak Road £ 925,000BUY8 / 100.12 KM
Canonbie Road, London, SE23 £ 350,000BUY7 / 100.16 KM
Greystead Road, London, SE23 3SD £ 399,950BUY6 / 100.21 KM
Greystead Road, Forest Hill, London, SE23 3SD £ 425,000BUY8 / 100.21 KM

Nearby Properties

AddressPriceDistance
97 Canonbie Road £ 900,0000.08 KM
77 Canonbie Road £ 945,0000.09 KM
59 Canonbie Road £ 1,050,0000.09 KM
83 Canonbie Road £ 500,0000.09 KM
95 Canonbie Road £ 260,0000.09 KM