Stratford Road, Stroud, GL5
By R A Bennett & Partners
£ 500,000
Reviews
3 out of 5 stars
R A Bennett & Partners says ..
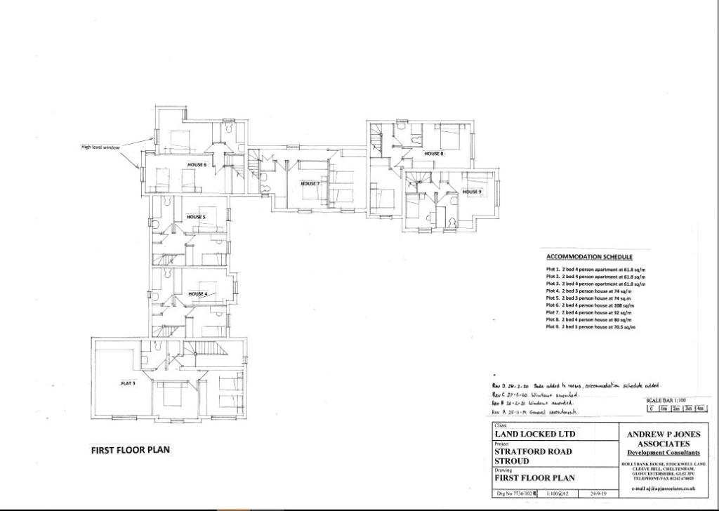
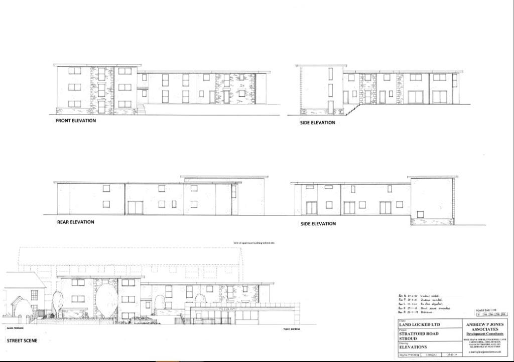
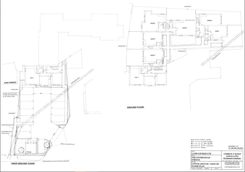
The site was previously used as a petrol station and bakery with the main part now redeveloped as a Tesco Extra shop. The site has consented outline planning permission from Stroud District Council Reference S.23/0796/OUT for up to 9 dwellings with all matters reserved except access. This was gar...
Property Oracle says ..
This property listing presents a unique investment opportunity focused on land redevelopment rather than an existing, finished property. The site, located on Stratford Road in Stroud, Gloucestershire, has consented outline planning permission for the construction of up to 9 dwellings. The provided architectural plans detail the proposed layout and design of the development, suggesting a modern housing scheme. The plans illustrate multiple two and three-bedroom units and associated parking. The nearby area shows relatively close proximity to transport links and a variety of schools, making the location promising for potential future residents. However, the current state of the site is under development, meaning no assessment of the structure’s current condition can be provided. The price of £500,000 is placed for the land itself and the planned construction of multiple units. Further information on individual property specifications and precise completion dates would be needed to provide a complete and detailed value assessment for individual properties upon completion.
Therefore, we give this property 6 / 10. *Disclaimer: This is our option and does constitute a recommendation or financial advice. Do your own research. *
- Price
- 6
- Condition
- 4
- Location
- 7
- Land
- 8
- Bedrooms
- 0
- Bathrooms
- 0
The heatmap indicates the level of crime in the area. The color of the heatmap indicates the crime severity and recency.
Metrics Year-on-Year
- Average area value
- 251,538.00 £Increased by 21.55 %
- Average area rental value
- 754.00 £/moDecreased by 18.22 %
- Est rental Yield
- 3.60 %Decreased by 32.71 %
- Crime Rate
- 16.00 %Unchanged by 0.00 %
Agent Activity
R A Bennett & Partners created the listing.
Nearby Schools
| Name | Type | Ofsted | Distance |
|---|---|---|---|
| Archway School | Community School | Requires improvement | 0.32 KM |
| Marling School | Academy Converter | Outstanding | 0.36 KM |
| Stroud High School | Academy Converter | 0.49 KM | |
| Callowell Primary School | Community School | Requires improvement | 0.77 KM |
| St Matthew'S Church Of England Primary School | Academy Sponsor Led | 1.09 KM |
Images
Nearby Streets
| Name | Average Price | Average Sqft | Distance |
|---|---|---|---|
| Paganhill Lane | £ 0 | 0 | 0.00 KM |
| Strachan's Close | £ 0 | 0 | 0.00 KM |
| Stanton Road | £ 0 | 0 | 0.00 KM |
| Redlers Waterside | £ 0 | 0 | 0.00 KM |
| Cotswold Road | £ 0 | 0 | 0.00 KM |
Nearby Transport
| Name | NLC | TLC | Distance |
|---|---|---|---|
| Stroud (Gloucs) | 4771 | STD | 1.93 KM |
| Stonehouse | 4770 | SHU | 4.78 KM |
Nearby Listings
| Address | Price | Type | Score | Distance |
|---|---|---|---|---|
| Stratford Road, Stroud, GL5 | £ 500,000 | BUY | 6 / 10 | 0.00 KM |
| Stroud, Gloucestershire, GL5 | £ 399,950 | BUY | 5 / 10 | 0.12 KM |
| Farmhill Lane, Stroud, Gloucestershire, GL5 | £ 485,000 | BUY | 7 / 10 | 0.15 KM |
| Downfield, Stroud, GL5 | £ 785,000 | BUY | Unknown | 0.16 KM |
| Stratford Road, Stroud, Gloucestershire, GL5 | £ 400,000 | BUY | 6 / 10 | 0.21 KM |
Nearby Properties
| Address | Price | Distance |
|---|---|---|
| 90 Stratford Road | £ 160,000 | 0.00 KM |
| 129 Stratford Road | £ 155,000 | 0.00 KM |
| 145 Stratford Road | £ 302,000 | 0.00 KM |
| 139 Stratford Road | £ 129,000 | 0.00 KM |
| 117 Stratford Road | £ 280,000 | 0.00 KM |