Tamesis Strand, Gravesend, DA12
By Keller Williams
£ 400,000
Reviews
3 out of 5 stars
Keller Williams says ..
GUIDE PRICE £400K-£425K - TURN-KEY HOME - BEAUTIFULLY RENOVATED 3 BEDROOM SEMI- DETACHED FAMILY HOME - POPULAR RIVERVIEW PARK, GRAVESEND - CALL AGENT USING EXT NO.110
Property Oracle says ..
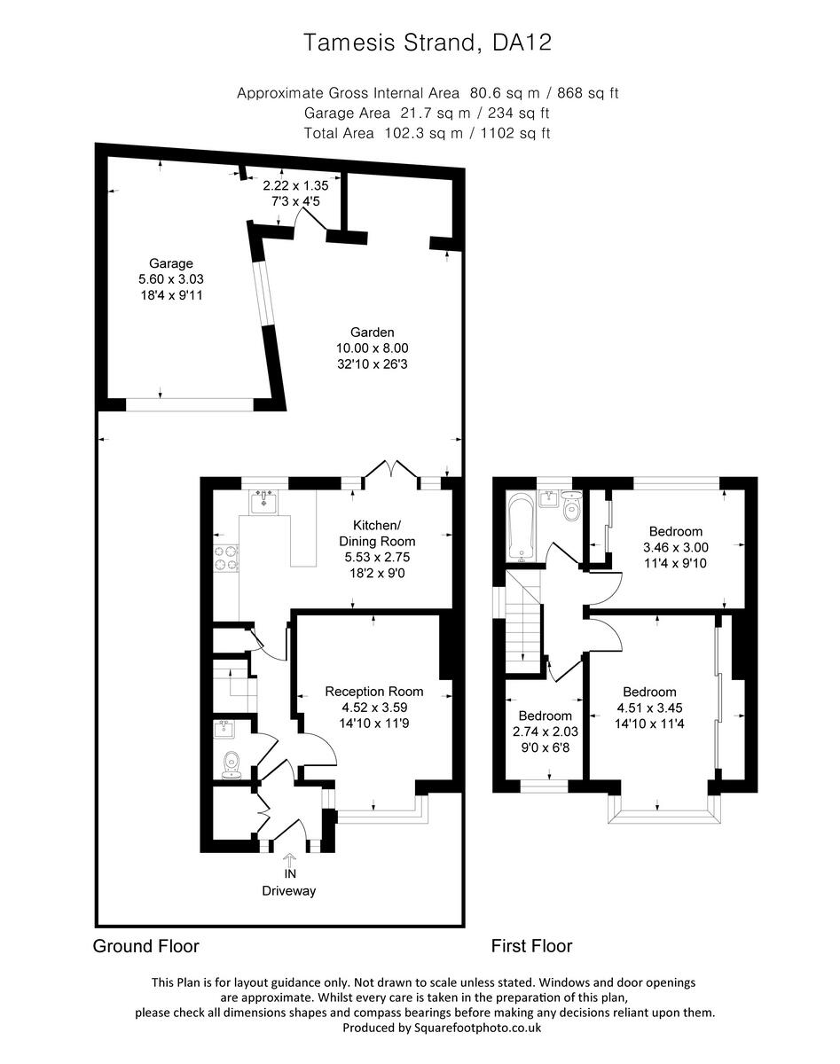
This property is a 3-bedroom, 2-bathroom semi-detached house located in Gravesend, Kent. The property benefits from a modern kitchen and has been recently renovated to a good standard. It also has a well-maintained garden with a patio area and shed. The location is convenient, with nearby schools and transportation links. The asking price of £400,000 is slightly above the average price for the area, but considering the property’s condition, size, and location, it appears to be a reasonable price.
Therefore, we give this property 7 / 10. *Disclaimer: This is our option and does constitute a recommendation or financial advice. Do your own research. *
- Price
- 7
- Condition
- 9
- Location
- 8
- Land
- 7
- Bedrooms
- 3
- Bathrooms
- 2
- Sqft (est)
- 1,101.15
The heatmap indicates the level of crime in the area. The color of the heatmap indicates the crime severity and recency.
Metrics Year-on-Year
- Average area value
- 257,500.00 £Increased by 0.03 %
- Est sale value
- 453,673.80 £Increased by 62.85 %
- Average area rental value
- 1,610.00 £/moIncreased by 45.31 %
- Est letting value
- 2,202.30 £/moIncreased by 100.00 %
- Est rental Yield
- 7.50 %Increased by 45.35 %
- Crime Rate
- 1.00 %Unchanged by 0.00 %
Agent Activity
Keller Williams created the listing.
Nearby Schools
| Name | Type | Ofsted | Distance |
|---|---|---|---|
| Riverview Junior School | Academy Sponsor Led | 0.27 KM | |
| Riverview Infant School | Academy Converter | Good | 0.27 KM |
| Tymberwood Academy | Academy Sponsor Led | Good | 0.79 KM |
| Singlewell Primary School | Community School | Good | 0.99 KM |
| Thamesview School | Foundation School | Good | 1.11 KM |
Images
Nearby Streets
| Name | Average Price | Average Sqft | Distance |
|---|---|---|---|
| Ryecroft | £ 450,000 | 0 | 0.00 KM |
| Virginia Pathway | £ 335,000 | 0 | 0.00 KM |
| St. Chad's Drive | £ 299,500 | 0 | 0.00 KM |
| Saint Dunstan's Drive | £ 375,000 | 0 | 0.00 KM |
| Bristol Road | £ 410,000 | 0 | 0.00 KM |
Nearby Transport
| Name | NLC | TLC | Distance |
|---|---|---|---|
| Gravesend | 5172 | GRV | 3.83 KM |
| Sole Street | 5126 | SOR | 3.93 KM |
| Meopham | 5116 | MEP | 4.97 KM |
| Tilbury Town | 7462 | TIL | 6.52 KM |
| Northfleet | 5120 | NFL | 8.01 KM |
Nearby Listings
| Address | Price | Type | Score | Distance |
|---|---|---|---|---|
| Tamesis Strand, Gravesend, DA12 | £ 400,000 | BUY | 7 / 10 | 0.00 KM |
| Frobisher Way, Riverview Park, Gravesend | £ 425,000 | BUY | 6 / 10 | 0.06 KM |
| Marling way, Gravesend, Kent, DA12 | £ 375,000 | BUY | 6 / 10 | 0.11 KM |
| Judeth Gardens, Gravesend, DA12 | £ 300,000 | BUY | Unknown | 0.12 KM |
| Marling Way, Gravesend, Kent, DA12 | £ 400,000 | BUY | Unknown | 0.13 KM |
Nearby Properties
| Address | Price | Distance |
|---|---|---|
| 6 Tamesis Strand | £ 272,000 | 0.04 KM |
| 14 Tamesis Strand | £ 290,000 | 0.04 KM |
| 1 Tamesis Strand | £ 395,000 | 0.04 KM |
| 11 Tamesis Strand | £ 300,000 | 0.04 KM |
| 9 Tamesis Strand | £ 268,000 | 0.04 KM |