Greenways, Egham
By Aspen Estate Agents Limited
£ 530,000
Reviews
3 out of 5 stars
Aspen Estate Agents Limited says ..
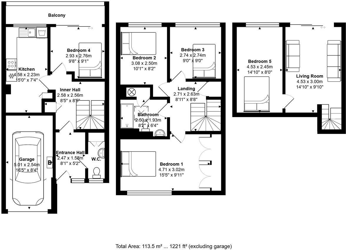
This superb 'Investment property' is let until 22nd July 2026 with the new tenants moving in the summer this year paying a rent of £3,500pcm; that's a brilliant yield of 8%!! A lot of large expenditure took place in 2024, with a new boiler and new roof fitted, with a 10 year guarantee! T...
Property Oracle says ..
This property is a 5-bedroom house located in Egham, Surrey. The location is convenient, with nearby transportation links and schools. The property itself appears to be in reasonable condition, though some minor updating might enhance its appeal. The presence of a garden is a positive aspect. Considering the average price per square foot in the area and comparable properties, the list price seems slightly higher than average but not unreasonable given the number of bedrooms.
Therefore, we give this property 7 / 10. *Disclaimer: This is our option and does constitute a recommendation or financial advice. Do your own research. *
- Price
- 7
- Condition
- 7
- Location
- 8
- Land
- 6
- Bedrooms
- 5
- Bathrooms
- 1
- Sqft (est)
- 1,124.63
- Lot (est)
- 1,221.00
The heatmap indicates the level of crime in the area. The color of the heatmap indicates the crime severity and recency.
Metrics Year-on-Year
- Average area value
- 438,000.00 £Decreased by 24.23 %
- Est sale value
- 494,837.20 £Decreased by 16.35 %
- Average area rental value
- 1,843.00 £/moIncreased by 15.12 %
- Est letting value
- 1,124.63 £/moUnchanged by 0.00 %
- Est rental Yield
- 5.05 %Increased by 52.11 %
- Crime Rate
- 16.00 %Unchanged by 0.00 %
Agent Activity
Aspen Estate Agents Limited marked this listing as sold.
Aspen Estate Agents Limited created the listing.
Nearby Schools
| Name | Type | Ofsted | Distance |
|---|---|---|---|
| Royal Holloway And Bedford New College | Higher Education Institutions | 1.18 KM | |
| Manorcroft Primary School | Community School | Good | 1.47 KM |
| St Jude'S Cofe Infant School | Voluntary Aided School | 1.51 KM | |
| St Jude'S Church Of England Junior School | Voluntary Aided School | Good | 1.84 KM |
| St Cuthbert'S Catholic Primary School, Englefield Green | Voluntary Aided School | Outstanding | 1.90 KM |
Images
Nearby Streets
| Name | Average Price | Average Sqft | Distance |
|---|---|---|---|
| Alder Close | £ 0 | 0 | 0.00 KM |
| Kinburn Drive | £ 0 | 0 | 0.00 KM |
| Clarence Street | £ 0 | 0 | 0.00 KM |
| Johnson Close | £ 0 | 0 | 0.00 KM |
| Clarence Street | £ 0 | 0 | 0.00 KM |
Nearby Transport
| Name | NLC | TLC | Distance |
|---|---|---|---|
| Egham | 5669 | EGH | 1.21 KM |
| Virginia Water | 5676 | VIR | 3.13 KM |
| Wraysbury | 5673 | WRY | 3.58 KM |
| Sunnymeads | 5675 | SNY | 4.54 KM |
| Staines | 5670 | SNS | 6.01 KM |
Nearby Listings
| Address | Price | Type | Score | Distance |
|---|---|---|---|---|
| Greenways, Egham | £ 530,000 | BUY | 7 / 10 | 0.00 KM |
| Greenways, Egham, with a view. | £ 535,000 | BUY | 7 / 10 | 0.00 KM |
| 5 Bed close to Royal Holloway | £ 535,000 | BUY | 7 / 10 | 0.00 KM |
| Greenways, Egham, Surrey, TW20 | £ 530,000 | BUY | Unknown | 0.03 KM |
| Spring Rise, Egham, Surrey, TW20 | £ 725,000 | BUY | 6 / 10 | 0.09 KM |
Nearby Properties
| Address | Price | Distance |
|---|---|---|
| 4 Greenways | £ 310,000 | 0.01 KM |
| 3 Greenways | £ 430,000 | 0.01 KM |
| 5 Greenways | £ 310,000 | 0.01 KM |
| 17 Greenways | £ 453,500 | 0.01 KM |
| 8 Greenways | £ 110,000 | 0.01 KM |