Golf Club Road, St George's Hill, Weybridge, Surrey, KT13
By Knight Frank
£ 7,500,000
Reviews
3 out of 5 stars
Knight Frank says ..
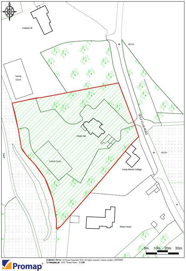
A stunning, level building plot of around 2.1 acres within St George's Hill Estate and backing the golf course. The plot is located off Golf Club Road in the heart of the Estate, and occupies one of the most exquisite locations between two parts of the golf course. The site is already cleared o...
Property Oracle says ..
This listing is for a building plot on the prestigious St George’s Hill Estate in Weybridge, Surrey. Knight Frank, a reputable estate agent, markets this property as a ‘stunning, level building plot of around 2.1 acres within St George’s Hill Estate and backing the golf course.’ The photos reveal a largely undeveloped plot with some existing vegetation. The location is undoubtedly a significant advantage, given St George’s Hill’s reputation for exclusivity and high property values. Neighbouring properties and land plots command significantly higher prices, indicating the desirability of this area. The lack of building on the plot, as well as the absence of specific details regarding square footage and the condition of the land, make precise evaluation difficult, but the relatively high list price can likely be explained by the large size and desirable address. Buyers should be aware of the costs associated with preparing the land for construction which are likely significant. Potential buyers should also factor in the cost of building their new residence, bringing the overall financial commitment well above the listing price.
Therefore, we give this property 6 / 10. *Disclaimer: This is our option and does constitute a recommendation or financial advice. Do your own research. *
- Price
- 7
- Condition
- 4
- Location
- 9
- Land
- 7
- Bedrooms
- 0
- Bathrooms
- 0
The heatmap indicates the level of crime in the area. The color of the heatmap indicates the crime severity and recency.
Metrics Year-on-Year
- Average area value
- 2,713,636.00 £Increased by 69.90 %
- Average area rental value
- 4,007.00 £/moIncreased by 11.27 %
- Est rental Yield
- 1.77 %Decreased by 34.69 %
- Crime Rate
- 0.00 %
Agent Activity
Knight Frank created the listing.
Nearby Schools
| Name | Type | Ofsted | Distance |
|---|---|---|---|
| Manby Lodge Infant School | Community School | Good | 2.14 KM |
| Brooklands College | Further Education | Good | 2.22 KM |
| Heathside School | Academy Converter | Good | 2.34 KM |
| Weybridge Sure Start Children'S Centre | Children's Centre | 2.62 KM | |
| Feltonfleet | Other Independent School | 2.73 KM |
Images
Nearby Streets
| Name | Average Price | Average Sqft | Distance |
|---|---|---|---|
| Caenswood Hill | £ 6,750,000 | 0 | 0.00 KM |
| Bentley Drive | £ 0 | 0 | 0.00 KM |
| The Heath | £ 849,950 | 0 | 0.00 KM |
| St George’s Avenue | £ 0 | 0 | 0.00 KM |
| St George’s Avenue | £ 762,250 | 0 | 0.00 KM |
Nearby Transport
| Name | NLC | TLC | Distance |
|---|---|---|---|
| Weybridge | 5577 | WYB | 1.56 KM |
| Byfleet And New Haw | 5689 | BFN | 3.47 KM |
| Addlestone | 5550 | ASN | 4.59 KM |
| Walton-On-Thames | 5575 | WAL | 4.67 KM |
| Shepperton | 5605 | SHP | 5.22 KM |
Nearby Listings
| Address | Price | Type | Score | Distance |
|---|---|---|---|---|
| Golf Club Road, St George's Hill, Weybridge, Surrey, KT13 | £ 7,500,000 | BUY | 6 / 10 | 0.00 KM |
| Cricket's Hill, Golf Club Road, Weybridge, Surrey, KT13 0NJ | £ 17,000,000 | BUY | Unknown | 0.06 KM |
| Golf Club Road, Surrey, KT13 | £ 17,000,000 | BUY | Unknown | 0.10 KM |
| Yaffle Road, St George's Hill, Weybridge, Surrey, KT13 | £ 5,250,000 | BUY | 8 / 10 | 0.30 KM |
| Golf Club Road, St George's Hill, Weybridge, Surrey, KT13. | £ 17,000,000 | BUY | 8 / 10 | 0.31 KM |
Nearby Properties
| Address | Price | Distance |
|---|---|---|
| Laurelwood | £ 1,500,000 | 0.42 KM |
| Bylands | £ 841,000 | 0.42 KM |
| Woodlands | £ 11,700,000 | 0.42 KM |
| Bylands Cottage | £ 975,000 | 0.42 KM |
| Chedworth | £ 6,235,000 | 0.46 KM |