Cooke & Co says ..
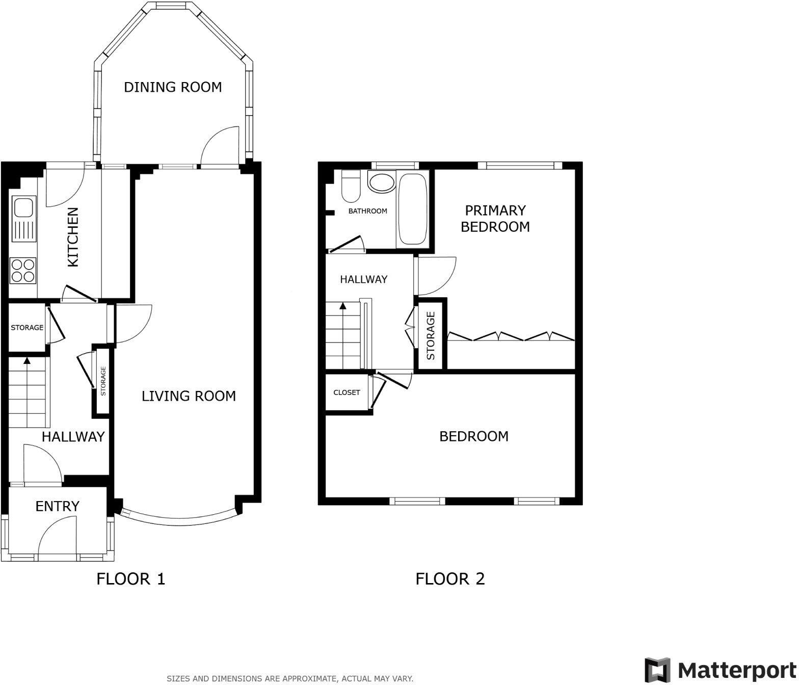
Cooke & Co are delighted to offer this chain-free, two-bedroom mid-terraced home, ideally situated in a central location close to Westwood Cross Shopping Centre, local schools, and excellent bus routes. Ready to move into, this well-presented property is perfect for first-time buyers or those se...
Property Oracle says ..
Therefore, we give this property 7 / 10. *Disclaimer: This is our option and does constitute a recommendation or financial advice. Do your own research. *
- Price
- 8
- Condition
- 6
- Location
- 7
- Land
- 7
- Bedrooms
- 2
- Bathrooms
- 1
The heatmap indicates the level of crime in the area. The color of the heatmap indicates the crime severity and recency.
Metrics Year-on-Year
- Average area value
- 617,280.00 £Increased by 8.39 %
- Average area rental value
- 2,682.00 £/moIncreased by 50.76 %
- Est rental Yield
- 5.21 %Increased by 38.93 %
- Crime Rate
- 3.00 %Unchanged by 0.00 %
from 569,523.00 £
from 1,779.00 £/mo
from 3.75 %
from 3.00 %
Agent Activity
Cooke & Co created the listing.
Nearby Schools
| Name | Type | Ofsted | Distance |
|---|---|---|---|
| St Laurence In Thanet Church Of England Junior Academy | Academy Sponsor Led | Good | 0.55 KM |
| Ellington Infant School | Community School | Good | 0.60 KM |
| Ramsgate Arts Primary School | Free Schools | Good | 0.77 KM |
| Small Haven School | Other Independent Special School | Good | 0.87 KM |
| The Royal Harbour Academy | Foundation School | Requires improvement | 0.93 KM |
Images
Nearby Streets
| Name | Average Price | Average Sqft | Distance |
|---|---|---|---|
| Pinewood Close | £ 313,999 | 0 | 0.00 KM |
| Bradley Road | £ 263,750 | 0 | 0.00 KM |
| Beverley Way | £ 281,667 | 0 | 0.00 KM |
| Elizabeth Kemp Court | £ 146,590 | 0 | 0.00 KM |
| Oakdene Road | £ 310,833 | 0 | 0.00 KM |
Nearby Transport
| Name | NLC | TLC | Distance |
|---|---|---|---|
| Ramsgate | 5023 | RAM | 0.27 KM |
| Dumpton Park | 5034 | DMP | 2.34 KM |
| Broadstairs | 5006 | BSR | 3.75 KM |
| Margate | 5018 | MAR | 5.99 KM |
| Westgate-On-Sea | 5195 | WGA | 8.53 KM |
Nearby Listings
| Address | Price | Type | Score | Distance |
|---|---|---|---|---|
| Lorina Road, Ramsgate | £ 220,000 | BUY | 7 / 10 | 0.00 KM |
| Lorina Road, Ramsgate | £ 240,000 | BUY | 7 / 10 | 0.05 KM |
| Lorina Road, Ramsgate, CT12 6DD | £ 250,000 | BUY | 7 / 10 | 0.08 KM |
| Lorina Road, Ramsgate, Kent | £ 250,000 | BUY | Unknown | 0.12 KM |
| Westminster Walk, Whitehall Road, Ramsgate | £ 195,000 | BUY | 6 / 10 | 0.18 KM |
Nearby Properties
| Address | Price | Distance |
|---|---|---|
| 17 Lorina Road | £ 275,000 | 0.08 KM |
| 9 Lorina Road | £ 125,000 | 0.08 KM |
| 20 Lorina Road | £ 170,000 | 0.08 KM |
| 22 Lorina Road | £ 112,000 | 0.08 KM |
| 10 Lorina Road | £ 130,000 | 0.08 KM |